K

Kristýna Vyslychová - Komunitní sportovní centrum pod Nuselským mostem

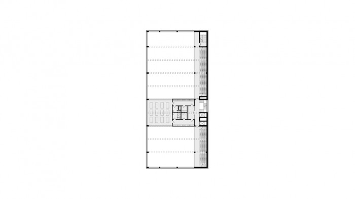
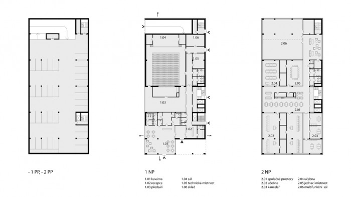
Nuselské údolí má jako svou naprostou dominantu Nuselský most, který prochází přes celé Nuselské údolí. Navrhované komunitní centrum je navrženo jako solitér přímo pod Nuselským mostem s využitím ploché střechy pro podpoření střešní krajiny v území. Pro dotvoření celkového prostorového konceptu jsou doplněny nedokončené východní bloky novou zástavbou. Jako solitérní dům má jasně danou pozici vymezenou náměstím. Náměstí je zpevněné velkoformátovou dlažbou. Konstrukce centra je betonový skelet, fasadá je tvořena polykarbonátovými panely. 

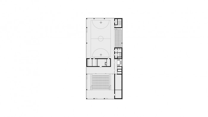
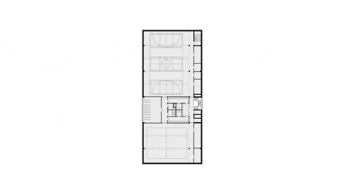
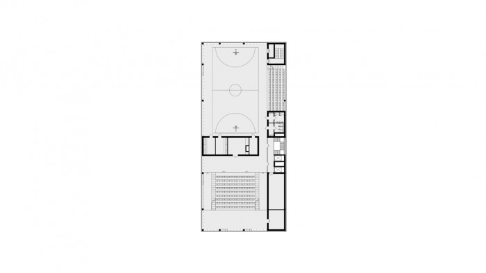
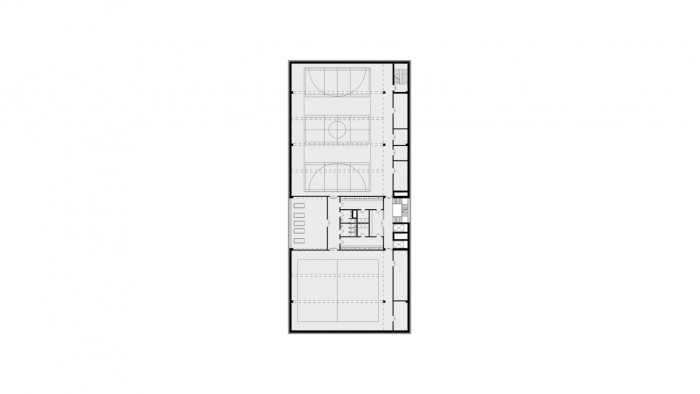
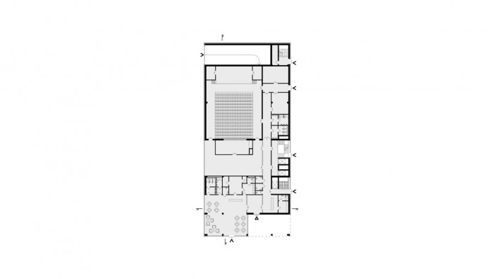
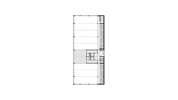
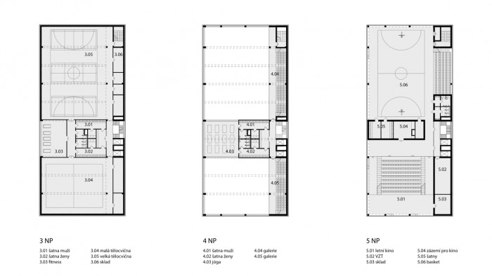
Jednotlivé funknce jsou rozděleny do jednotlivých podlaží. Vzdělávací a volnočasové centrum je umístěno v druhém podlaží. Ostatní patra jsou pak vyhrazena sportu. V parteru se nachází kavárna a multifunkční společenský sál. Plochá střecha je využita pro basketové hřiště, které je obklopeno zvýšenou konstrukcí se sítí, a také pro letní kino. Vzdělávací a volnočasové centrum funguje na základě jednotlivých kurzů spolu se svými lektory. Jedná se o kurzy jako například zlepšování počítačových znalostí, jazykových schopností, sebereprezntace, trénink paměti pro seniory, marketing apod. Nabízí také pomoc při hledání zaměstnání. 

Sportovní část centra tvoří jedna velká a malá tělocvična spolu s menšími místnostmi pro fitness a sportovní kurzy. Obě tělocvičny jsou multifunkční a dají se využít pro různé příležitosti. Pomocí kruzů, keré probíhají celý den, je budova živá a je schopna přitáhnout lidi z širšího okolí. 

Celý koncept komunitního centra je tedy založen na co největší variabilitě a multifunkčnosti, aby se zde mohly odehrávat veškeré společné aktivity a aby si zde každý našel to svoje. 

  • Autoři: Kristýna Vyslychová
  • Země: Česká republika
  • Škola: FA ČVUT v Praze
  • Město: Praha 4 - Nusle
  • Datum projektu: 2019

Související architekti

Generální partner
Hlavní partneři