Kuklica Smerek architekti - Likérka
Mestský dom v Trenčianskych Tepliciach je svojou polohou predurčený na spoločenskú funkciu. Svojou kratšou fasádou uzatvára Kúpeľnú ulicu a následne sa z boku otvára do parku. Objekt pôvodne z 20. rokov slúžil ako mäsiarstvo, obchod a nakoniec ako herňa. Pri jednotlivých zmenách majiteľov v čase prišlo k absolútnemu znehodnoteniu stavby, ako interiéru tak aj exteriéru.
Klienti nás oslovili s ideou premeniť tento dom na výrobňu likérku, kaviareň a malý obchodík. Od začiatku sme uvažovali o nutnosti objekt očistiť od nánosov rôznych dôb a prinavrátiť mu genia loci. Na základe historických fotografií sme upravili okenné otvory do pôvodných polôh. Abstrahovali sme pôvodné drevené priečelie objektu smerom do ulice v podobe plastických novotvarov z dreva no zároveň vo farbe omietky. Nesnažili sme sa objekt pamiatkársky reštaurovať ale v jemných odkazoch prerozprávať historickú podstatu do dnešnej doby.
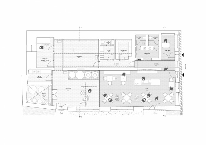
Osou dispozície prechádza chodba, ktorá delí prevádzku na štyri základné celky, ktoré majú každý svoju vizuálnu a priestorovú charakteristiku podľa ich funkcie. Obchodík s výkladom je kompaktný biely box, navodzujúci lekárenský charakter, kde však namiesto liekov dostanete kúpiť Gin a Likér vyrobený priamo v objekte s prímesou mnohých liečivých bylinek. Predsieň toaliet je v tmavozelenej farbe, toalety sú šedé. Ostatné technické priestory, sklady či kotolňa sú v bielom obklade. Keramický obklad či dlažba je spoločným charakteristickým prvkom, ktorý sa objavuje v každej z miestností.
Kaviareň je zemitým, béžovým odbytovým priestorom. Použitie ornamentu má v priestore umocniť dobový charakter objektu a povahy výrobkov, ktoré tu vznikajú. Výrazových prostriedkov či materiálov je v tomto spoločenskom prostredí najväčšie množstvo. Mäkké čalúnené sedenie, závesy, zrkadlá, či decentné ambientné osvetlenie z opálových svietidiel podporuje kaviarenskú atmosféru a socializáciu návštevníkov. Dominantou priestoru je dlhý barový pult z drevených tyčí v zelenej farbe so zábarím vnoreným do nosnej steny.
Obchod a kaviareň je opticky prepojená skrz centrálnu osu chodby dvojicou rovnako veľkých portálov v nosných stenách. Likérka je jeden objekt, v ktorom sa odohráva viacero svetov. Chodec pohybujúci sa v exteriéri pozdĺž perforácií na čelnej fasáde nadobúda dojem, že je vo vnútri domu viacero odbytových priestorov, čo bolo želaným efektom.
Samotná výroba a príprava sú si farebnými protikladmi v čiernej a bielej farbe, Technologická časť funguje ako black box v ktorej na čiernom pozadí „zasvietia“ destilačné nádoby a zrecie sudy. Technológia vládne tomuto priestoru a sprostredkúva divákovi z kaviarne skrz celopresklenú stenu predstavu o samotnom procese výroby. Táto kulisa podtrhuje samotnú podstatu celého objektu a toho čo sa v ňom odohráva.
Veľkou devízou celého priestoru je jednoduchá terasa dláždená čadičovými kockami orientovaná do mestského parku. Tá je prepojená s kaviarňou na východnej fasáde skrz okenné otvory s dverami. Rozkladá sa pod mohutnými lipami, ktoré v lete vytvárajú príjemný tieň. Vzhľadom na polohu terasy voči mestskej promenáde je oddychovým miestom počas prechádzok a podieľa sa na oživovaní pohybu v meste.
Práve v tomto bode je najlepšie počas teplých dní vidieť spoločný výsledok snaženia nie len zrevitalizovať objekt, ale oživiť celý okolitý priestor.
- Autoři: Juraj Hubinský, Peter Kuklica, Martin Smerek
- Ateliér: Kuklica Smerek architekti
- Země: Slovensko
- Město: Trenčínské Teplice
- Ulice, číslo: Kúpeľná 574/1
- PSČ: 91451
- Suma: 450 000.00
- Měna: EUR
- Datum projektu: 2018
- Realizace: 2020
- Užitná plocha: 214.40m2
- Investor: Spirit company s.r.o.
Související projekty
Související architekti
Související ateliéry a firmy
Mohlo by vás zajímat