L

LANG BENEDEK ASSOCIATED ARCHITECTS - Rekonstrukce mezonetového bytu v Bratislavě

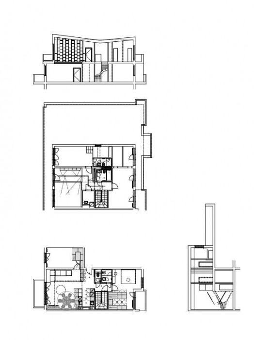
Rekonstrukce mezonetu, který je součástí patnáct let staré developerské výstavby v bratislavské Dúbravce, představovala velkou výzvu – o to větší, že investor, zastupující pětičlennou rodinu, požadoval rekonstrukci radikální. Pozornost a největší péče byla proto věnována společně sdíleným prostorům, jejich maximálnímu zkvalitnění a dokonce rozšíření.

Foto: EARCH

Do společného prostoru byla vestavbou ochozu/galerie nově zahrnuta velká terasa o rozloze téměř dvou třetin bytu, původně nešťastně přístupná pouze ze dvou pokojů v horním patře. Tato platforma nyní navíc slouží jako knihovna a čtecí relaxační místo. Její tvar volně opisuje siluetu zkoseného stropu posledního bytu budovy v místě, kde lze nejen číst, ale mít pod rodičovskou kontrolou dění v celém bytě současně. Průsvitné rolety v horním patře nemají zatemňovat, ale naopak změkčit a rozptýlit vstupující světlo tak, aby bylo uvnitř člověku příjemně, i když ho exteriér pohledově unaví.

Foto: EARCH

Ústředním motivem interiéru je měkká malba světlem a stínem, podpořená hrou s vizuálním rytmem – obojí komponované použitými materiály a barvami. Základem jsou jemně laděné povrchy v tónech bílé, šedé, béžové, jako například podlaha z přírodního linolea nebo stěny s hliněným výrazem. Pečlivě zvolenými kontrapunkty nastoleného barveného klidu jsou pak antracitový kruh jídelního stolu z břidlice a dva sytě modré ortogonální prvky (obě díla autorky Patrície Koyšové) umělecky pojednaný televizní stolek a obraz na protější stěně.

Efekt střídání barevných lomených tónů se odráží i v jemné konstrukci úložných prostor řešených truhlářskou výrobou na míru. Maximálně využitý prostor vstupní chodby, mimimalisticky řešená šatna či dveře nenápadně zapuštěné do stěny obývacího pokoje dávají vyznít geometrii bytových doplňků.

Foto: EARCH

Svislé smrkové latě jsou zde v různých situacích dekorem, zábradlím nebo obložením, umocňují výšku mezonetu a vertikalitu bytové kompozice, ve které jsou jedním z nejmarkantnějších estetických zásahů architektů. Elegantní blok kuchyňské linky je, stejně jako další hlavní úložné prostory, navržen na míru s bezúchytkovými zásuvkami a dveřmi otevíranými na magnet. Cílem bylo dosažení čistého dojmu monochromatické plochy geometricky členěné linkami spár. Černá ocelová spřažení latí, černá svítidla a stínidla i židle nebo knihovna jsou pak dalšími geometrickými, až kresebnými vstupy, korespondující s jasným konceptem subtilních linek a linií.

Foto: EARCH

Generální partner
Hlavní partneři