Malý penthouse v Praze

Byt pro mladé sympatické manžele (z nichž se záhy stali moji dobří přátelé) a jejich malinkého syna vznikl jako kompletní rekonstrukce a propojení dvou malých bytů. Ty se nacházely v posledním ustoupeném patře činžovního domu z 30. let, kde celou délku fasády lemuje prostorná terasa s nádherným výhledem na Prahu a jižní orientací.
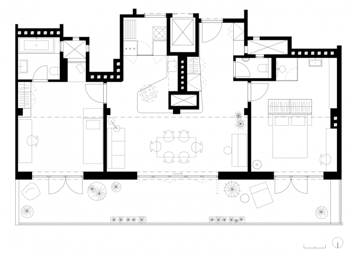
Záměrem tedy logicky bylo docela malý a kvůli komínům a světlíkům celkem komplikovaný vnitřek co nejvíce otevřít a rozšířit ho i směrem ven. Díky propojení a několika zásadním úpravám se tak z těchto dvou stísněných bytů stal rozlohou malý, ale pocitově prostorný penthouse.
Z původních dispozic zůstaly v podstatě jen nosné konstrukce, do nichž byly vloženy nové příčky a vestavné nábytky zarovnávající nežádoucí výčnělky a křivosti. Provozně tvoří byt tři hlavní části. Jádrem je společný obytný prostor uprostřed dispozice, na který přímo navazuje předsíň a na druhé straně kuchyňský kout. Ten je i přes omezený prostor řešený jako částečný kuchyňský ostrůvek (korunovaný atypickou digestoří vyrobenou na míru), v rámci vestavné stěny za ním se ještě skrývá průchod do malé ale velmi užitečné technické místnosti s pračkou.
Společný obytný prostor pak z obou stran lemují ložnice, aby rodičům zůstalo určité soukromí, v souvislosti s tím jsou řešené i koupelny. Ložnice rodičů je členěna pouze pomocí atypického nábytku na míru na průchozí šatnu a zahrnuje i umyvadlo a sprchový kout. Vedle dveří do ložnice se pak z předsíně dá jít na samostatné wc, které slouží i pro návštěvy.
Dětský pokoj na opačné straně bytu má u sebe vlastní koupelnu s vanou a druhým wc. Každá z těchto tří hlavních částí má svůj vlastní výlez na terasu a – díky nově řešeným otvorům – možnost sem v letním období expandovat.
Pro alespoň pocitové zvětšení prostoru byly předělány i podhledy, získaly nejen dodatečné zateplení ale v obytné části a ložnici i nový tvar – v části podél oken podhled kopíruje původní betonové trámky tvořící stropní konstrukci a tak působí vyšším dojmem.
Propojení interiéru s exteriérem pak posiluje i dřevěná podlaha, která ve stejném směru a v jedné rovině prochází ven na terasu. To bylo důležité hlavně v obytném prostoru, kde se díky tomu a také velkému skládacímu oknu terasa stane přímou součástí interiéru a například jídelní stůl se dá v létě postavit napůl ven a napůl dovnitř. S ohledem na přesouvání stolu je vybraná i stropní lampa na nastavitelném rameni, kterou se také dá uhnout při promítání, aby nebránila pohledu na plátno (jinak schované za tvarováním stropu).
Atmosféru bytu pak dotváří odhalené betonové sloupy tvořící nosnou konstrukci domu a například originální staré kliky, obojí jako připomínka původního charakteru domu.
- Autoři: Lenka Míková
- Ateliér: Lenka Míková Architekti
- Spolupráce: Ivan Boroš
- Země: Česká republika
- Město: Praha
- Datum projektu: 2012
- Realizace: 2014
- Užitná plocha: 108.00m2
- Poznámka: Foto © Michal Šeba
Související projekty
Související architekti
Související ateliéry a firmy
Mohlo by vás zajímat















