Markéta Bromová, Lenka Míková - Byt s tajnou koupelnou

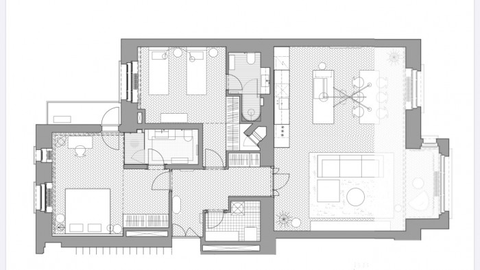
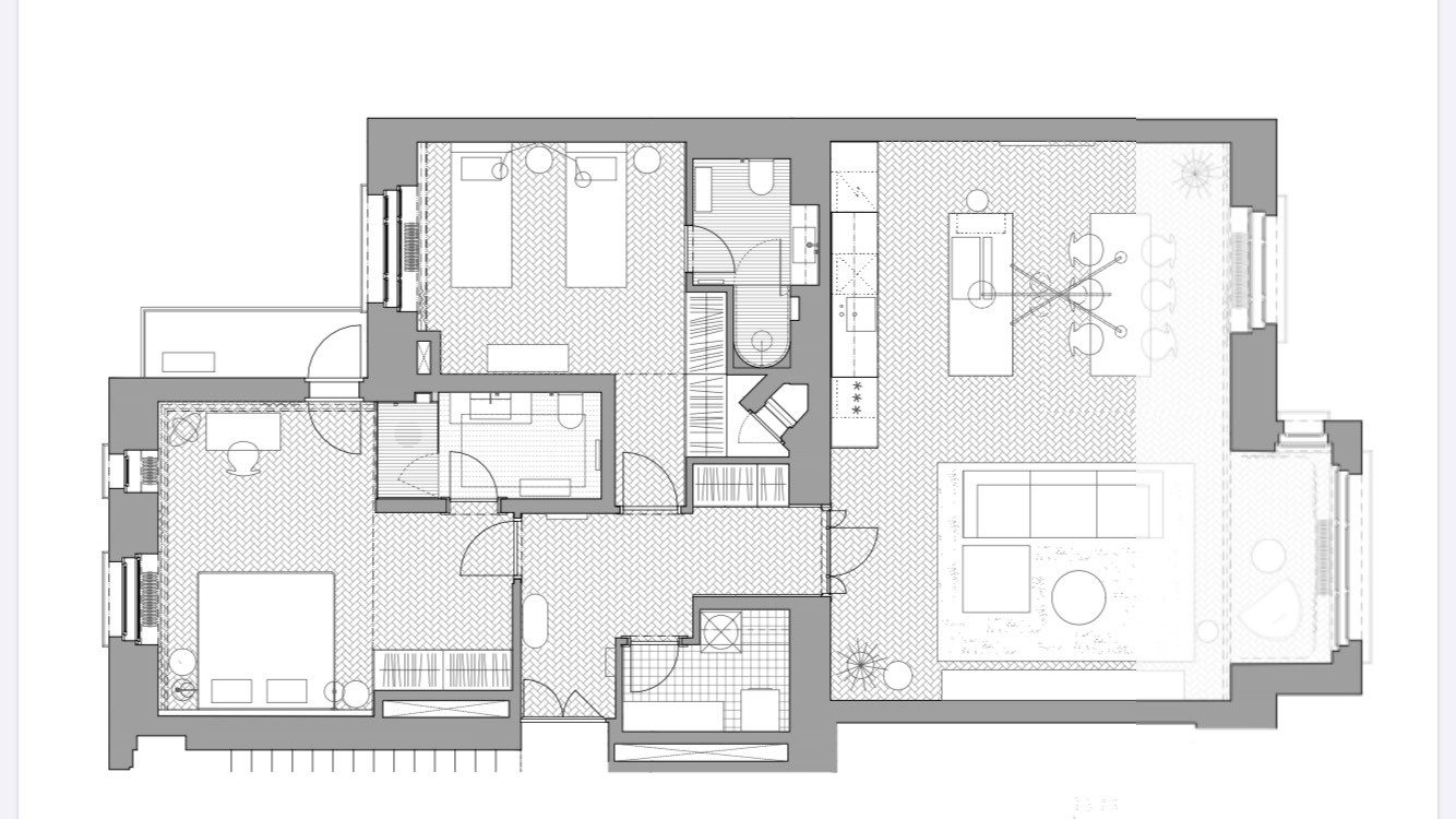
Byt se nachází v srdci Starého Města v secesním domě, jehož charakter se propisuje i do interiéru skrz okna a vnitřní dveře v původním historickém vzhledu a vysoké stropy. Dům i bytové jednotky už před naším zásahem prošly celkovou rekonstrukcí, na kterou bylo nutno navázat. Dispozice bytu se skládá ze dvou částí s odlišným charakterem, a tak i hlavní koncept návrhu tvoří dva opačné a doplňující se principy. Do velkorysého obytného prostoru jsou přiznaně vložené minimalistické prvky interiéru zdůrazněné tmavou barvou, v menších místnostech ve zbytku bytu se naopak interiérové prvky stávají součástí stěn skrz kazetové obklady navazující členěním i barvou na historické dveře a okna.
Drobné stavební úpravy napravují dispozici tak, aby místo malých oddělených šaten v každé ložnici vzniklo více úložného prostoru a zároveň místnosti byly prostornější. Vestavné šatny jsou nově integrované v rámci obkladu celých stěn s kazetovým členěním, které vychází z rozměrů historických dveří, nicméně otvíravé díly skříní se na něj záměrně úplně nevážou a tím decentně prozrazují svou funkci a současný původ. Kazetové stěny vytvářejí hlavní interiérový prvek v ložnicích i předsíni jako jednotící linka i když pokaždé trochu jinak, zároveň prostory zabydlují. V hlavní ložnici obklad zahrnuje i polstrované čelo postele, v hostinském pokoji v sobě skrývá dveře do koupelny a skříně, v chodbě maskuje šatnu i technické prvky a zdůrazňuje průchod do obývacího prostoru.
Ten s ložnicemi kontrastuje vzdušností a otevřeností prostoru a proto se zde obrací i princip řešení interiéru - do volného prostoru jsou vsazené hlavní kusy vestavného i volného nábytku jako solitéry - vysoká skříň s kuchyní, varný ostrůvek, jídelní stůl, sofa a dlouhá komoda s TV. Kazetový obklad se zde redukuje pouze na vysoký sokl podlahy, stěny zůstávají volné a změkčené šmouhatou teple šedou malbou, která dává celé místnosti intimnější náladu.
Propojujícím prvkem obou částí dispozice je parketová podlaha, zachovaná z původní rekonstrukce, ale upravená barevně tak, aby dřevo bylo tmavší a živější a povrch už rovnou nesl lehkou patinu. V interiéru se také záměrně opakují povrchy z přírodního mramoru, které v různém užití a barevnosti dávají každému místu vlastní atmosféru, ale zároveň nesou podobný charakter jako nadčasový a solidní materiál i přírodní dekor. Odřezky kamenných desek se použily i na odkládací stolky, další nábytky navržené na míru doplňují materiálovou škálu interiéru o ořechovou dýhu a masivní mosaz (např. skříňky v koupelnách, zrcadlo, aj.).
Spoluautorky vedou v současné době každá vlastní ateliér, tento projekt je jejich poslední společná realizace, která navazovala na jejich volnou spolupráci v předchozích letech na několika jiných projektech (např. café Parlor nebo interiér třípodlažního bytu Maisonette).
- Autoři: Markéta Bromová, Lenka Míková
- Země: Česká republika
- Generální dodavatel: Gigaline
- Město: Praha 1-Staré Město
- Realizace: 2019
Související projekty
Související architekti
Mohlo by vás zajímat





















