Martin Kožnar - Hide in City

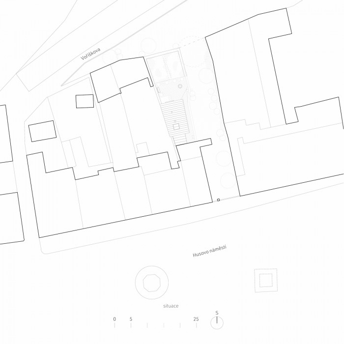
Domek ve Vamberku stojí blízko náměstí, na protáhlém dvorku mezi prvním a druhým plánem budov, tvořící figuru starého města. Pak už je výšková hrana na skále směrem k řece Zdobnici a tam stojí ruina bývalé likérky. Je to v českém kontextu běžná urbanistická situace a je velmi silná. Pohled z této hrany dolů do údolí, na továrny a dál za ně na vzdálený horizont do krajiny, je skvělý. Říkáme mu Lhotákův pohled. Architektura rekonstrukce domečku na toto vše reaguje.

Kamarád Vladimír se rozhodl domeček rekonstruovat na víkendové pobyty a zkultivovat toto pusté místo. Domek je starý cca 120 let a byl využíván jako sklad. Dvorek je intimní, tichý prostor, a tak je s ním domek maximálně propojen velkými okny a terasou. Dalším z důvodů je orientace ke slunci, jelikož má domek pouze dvě fasády-východ a sever.

Zbourali jsme v domku pár kleneb a otevřeli prostor do střechy. Vznikl jeden společný, obytný a spací prostor. Aby se prostor více nadechl, zdvihli jsme střechu o 75cm výše. Vznikla knihovna, vzniklo místo, kde člověk více vnímá Bytí, a kde přichází chuť odpočívat a integrovat. Severní lehací okno vsazené do knihovny směrem k ruině, je živým, romantickým obrazem, který potvrzuje genius loci místa.

Kuchyňka s jídelnou ve vstupu je minimální, trochu technicistní, účelová. Je do ní vložen dřez od skvělého architekta Michel de Klerka. Koupelna je ještě menší, a tak je obložena místním pískovcem s nádhernou vnitřní kresbou.

Interiér je tvořen kletovanou omítkou a fasády omítkou hlazenou. Vše v přírodních odstínech bílé. Téměř všechny rohy jsou oblé, aby to více plynulo a změklo. Přiznali jsme v interiéru opukovou zeď, ke které je domek přilepen a která prochází celou parcelou. Z opuky a pískovce jsou staré Vamberské domy a zídky doslova poslepované. Dřevěné prvky jsme jemně lízli bílou lazurou. Okna jsou modřínová v naturální barevnosti. Kovové prvky jsou černé nebo zinkované. Dalším z artefaktů je stará litinová „kočka“ tvořící lustr. 

 

Důležitým elementem je oheň. 

Malému domku dominuje velká terasa. Když se otevře posuvné okno, oba prostory se propojí a jsou jedním.

Milujeme materiály a řemeslo. Hlavním architektem je kontext. 

Aby byla tato touha sdílena, vzniklo „Hide in City“.

Děkuji Ti Vladimíre.

  • Autoři: Martin Kožnar
  • Spolupráce: Jaroslav Schwarz
  • Země: Česká republika
  • Realizace: 2020
  • Město: Vamberk
  • Realizace: 2020
  • Investor: Hide in City, Vladimír Pešek
Generální partner
Hlavní partneři