Mimosa - Rodinný dům ve Zbraslavi

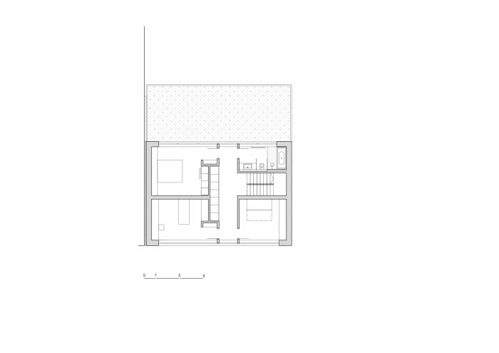
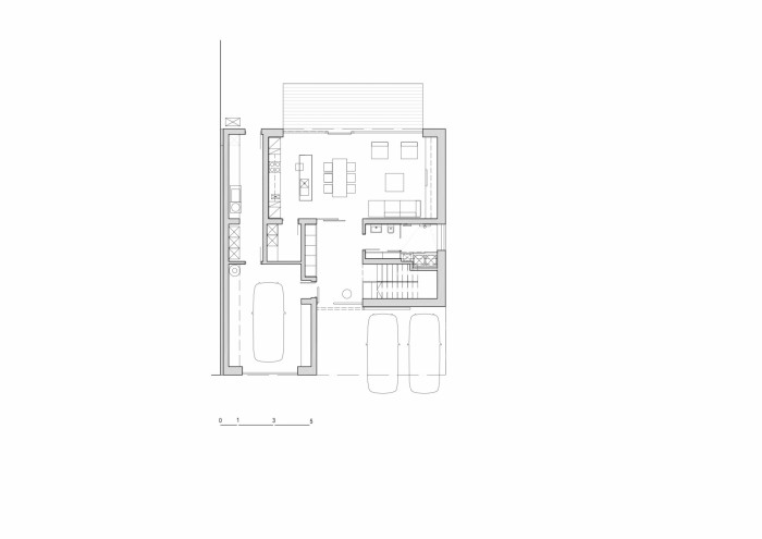
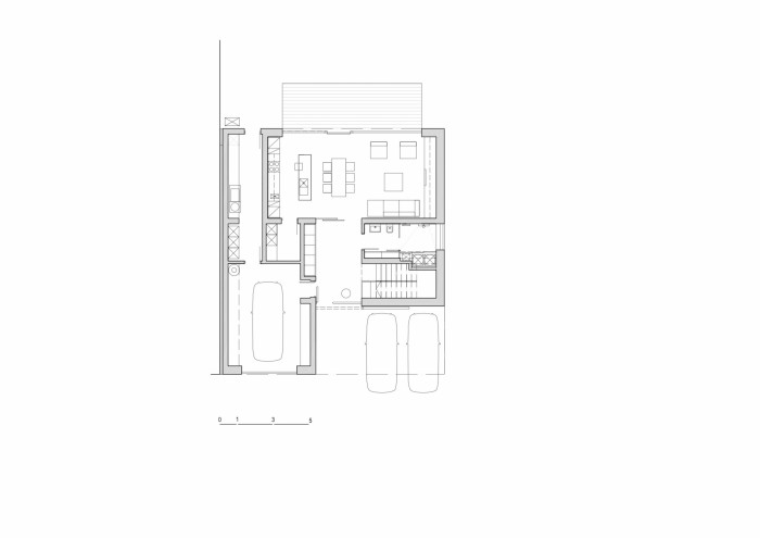
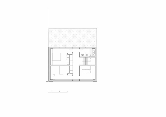
Dům ve Zbraslavi „roste za sluncem“. Jeho tvar, orientace vnitřních prostor, jejich proporce a vazby jsou v podmínkách nevelkého pozemku ve stávající zástavbě, navíc stíněného při jižní hraně sousedními objekty, odvozeny z touhy dostat do domu co nejvíce světla a slunce.
V zimě na pozemek slunce zasvítí jen slabě, chvíli před západem. Převýšeným prostorem obývacího pokoje s jídelnou a kuchyní ale pás slunečního svitu přesto projde v době oběda, aby se po schovávané za štítem protější stodoly slunce vrátilo k večeři. Se začínajícím jarem se přestane schovávat a vydrží mu to až do pozdního podzimu. Čím výše dům roste, tím více se slunci otevírá. V pokojích v patře mohou jeho obyvatelé vstávat s ranním sluncem nebo usínat s podvečerním.
Třetí patro odstoupené k severní hraně domu poskytuje dostatek světla a slunce po celý rok, stejně tak navazující terasa. Otevřené výhledy na nedaleký Husův sbor, Belvedér, poslední kopec Brd Havlín a keltské hradiště Závist za údolím Vltavy vyvažují uzavřenost zahrady.
- Ateliér: Mimosa Architekti
- Země: Česká republika
- Město: Praha- Zbraslav
- Realizace: 2018
- Foto ©: Tomáš Souček
Související projekty
Související ateliéry a firmy
Mohlo by vás zajímat



























