Mjolk - lesní vila

Lesní vila stojí na okraji rozsáhlého lužního lesa nedaleko Prahy. Klienti si vybrali úžasné místo mezi vzrostlými stromy, situováno nedaleko vesnice, která historicky sloužila jako zdroj pracovní síly pro císařské lesy.
Prostředí domu bylo naší hlavní inspirací. Zatímco se organický tvar střechy proplétá mezi stromy, dolní, více racionální část jsme navrhli především s ohledem na fascinující výhledy do lesa.
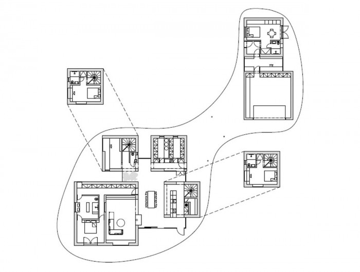
Střecha zakrývá dva hlavní objemy. První skrývá ateliér, hostinskou část a garáž. Druhý je plnohodnotným domem pro rodinu. V dolní části je situován velkorysý obytný prostor s obývákem, kuchyní, pracovnou a ložnicí rodičů. O patro výš navazují na dolní dispozici dětské pokoje, které jako jediné objemy převyšují střechu domu. Dětské pokoje jsou identické. Každý z nich má svoje vlastní hygienické zázemí a malou šatnu.
Střecha vytváří kryté prostory mezi oběma domy i v jejich zákoutích. Předsunutý strop akcentuje venkovní prostředí a zvětšuje kontrast mezi venkovními obrazy a interiérem, který ve sjednocených dřevěných podhledech prostupuje do exteriéru. Dům je zděný, s železo-betonovou konstrukcí střechy.
- Ateliér: Mjölk architekti
- Země: Česká republika
- Město: Stará Boleslav
- Datum projektu: 2013
- Realizace: 2017
- Zastavěná plocha: 322.00m2
- fotografie: BoysPlayNice
Související projekty
Související ateliéry a firmy
Mohlo by vás zajímat




























