MOLO architekti - Dům u Tiché Orlice

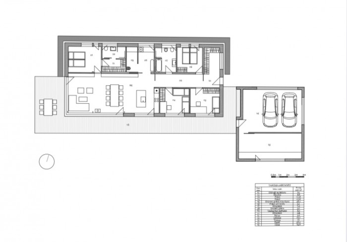
Dům má výrazný horizontální charakter podpořený linií ploché střechy, která propojuje objekty domu a garáže a její kšilt zároveň kryje dřevěnou terasu i vstup do zádveří. Černobílá neutrální barevnost domu zvenku i v interiéru kontrastuje s měnící se barevností zahrady. Na severní straně je stavba mírně zapuštěná do terénu – důvodem je pohodlné napojení jižní terasy na přilehlý terén. Orientace domu je na jih, s výhledem do zahrady a s dálkovým výhledem na Tichou Orlici, na sever jsou otočené místnosti zázemí a pokoje, které se využívají zejména v noci - ložnice rodičů a pokoj pro hosty.
Obývací prostor je otevřený přes velkorysé prosklení na západní a jižní stranu, na sever je fasáda uzavřenější, vstup do domu je z východní strany. Podél celé jižní a západní strany je dřevěná terasa chráněná před sluncem a deštěm přesahem střechy.
Konstrukce domu je hybridní. Střecha je tvořena dřevěným nosným roštem uloženým na ocelových sloupech a průvlacích a zateplená nadkrokevní izolací. K zateplení obvodového pláště bylo použito souvrství reflexních fólií v tloušťce cca 30 mm, doplněné akustickou izolací. Stavba je založena na patkách. Konstrukce podlahy je tvořena betonovou mazaninou, protiradonovou izolací, tepelnou izolací a dále roznášecí a nášlapnou vrstvou.
- Autoři: Mária Horecká Nalevanková, Patrik Zamazal
- Ateliér: MOLO ARCHITEKTI
- Země: Česká republika
- Realizace: 2019
- Užitná plocha: 134.00m2
- Zastavěná plocha: 165.00m2
Související projekty
Související architekti
Související ateliéry a firmy
Mohlo by vás zajímat












