Nové kanceláře Kiwi.com
Nové kanceláře se řešily ruku v ruce s rebrandingem. Skypicker se změnil v Kiwi.com. Nebylo zcela jasné, v jakou firmu se tehdy ještě Skypicker vlastně přerodí. Měnila se barevnost, logo a návrh prostor na to museli bleskově reagovat.
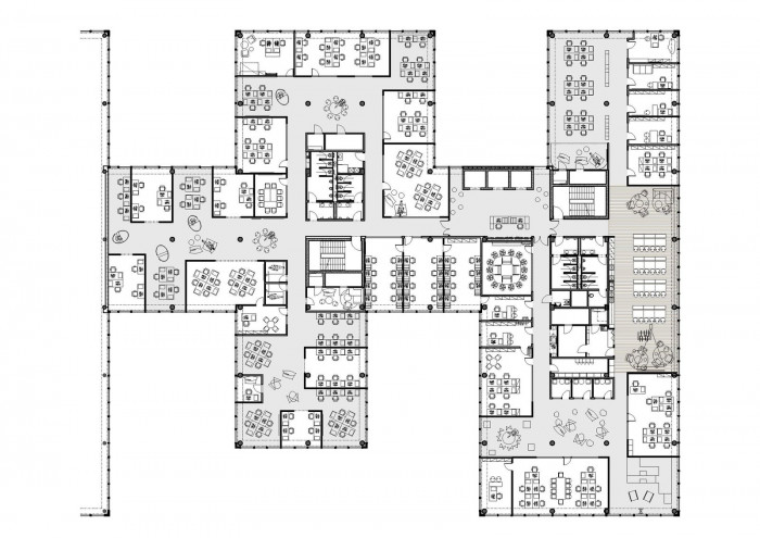
Vyvíjela se také struktura zaměstnanců, stále přibývali noví, a to nejen do callcentra, ale také do všech pater managementu. Mnohé kaceláře se navrhovaly jako výhledové, ale již při nastěhování byly plně obsazené.
Samotné zadání se tak rodilo v souběhu s návrhy a jeho neustálé zpřesňování probíhalo až do kolaudace. V době, když atelíér začal na zakázce pracovat, sídlil Skypicker v prvorepublikové vile v Masarykově čtvrti. V každé místnosti se tlačily týmy programátorů spolu s facility managementem, HR i finančním oddělením, vše bylo velmi rodinné a velice specifické. "Některá jednání probíhala na lavičce v zahradě, některá v nádherné kruhové pracovně ve vile. Jedním z požadavků klienta tak pochopitelně bylo, abychom se pokusili tuto neopakovatelnou atmosféru přenést také do nových prostor," osvětluje způsob jednání architekt Libor Kaplan.
Půdorys programátorského patra je proto velice členitý s mnohými zákoutími, je zde použito mnoho pestrých materiálů a struktur. Zaměstnanci si mohou oblíbit jednotlivé části a vzniká tak zcela jiné pouto k místu, než je tomu u neosobních velkoprostorových kanceláří.
Důležitá část projektu je věnovaná i relaxačním a zábavním prvkům, které mimo jiné zahrnují relaxační místnosti, houpačkové jednací kouty, travnaté posezení s výhledem na západ slunce, kinosál, fitness či saunu s masérnou. Kanceláře managementu jsou už střídmější, ale koncepčně blízké IT. Nikdy nespící call centrum, které zajišťuje non-stop péči klientům z celého světa, je naopak řešeno maximálně efektivně a jednoduše. Téma nikdy nespícího města se odrazilo i v hravých uzamykatelných skříňkách a tapetách.
Mohlo by vás zajímat