OK PLAN ARCHITECTS - Chata Hradečanka

Zásadní rekonstrukce historického horského penzionu v jedné z nejmalebnějších horských vesnic Krkonoš s úžasným výhledem na masív Sněžky nabídne milovníkům hor zajímavý dialog mezi horskou tradicí a současným architektonickým názorem. Zadáním byla adaptace objektu na moderní rekreační zařízení, které by v dnešní době mělo být spojeno s kvalitní gastronomií a relaxací ve wellness zóně přímo v komplexu zařízení. Zvolený koncept se snaží o citlivý přístup k lokalitě Národního parku a ctí historický výraz stávající chaty, která je doplněna transparentním hranolem v minimalistické formě. Přístavba je od rekonstruovaného objektu odtržena - tím vznikají dvě malá atria volně propojená s úbočím svahu, kde se nachází pata hlavní sjezdovky lyžařského areálu.
Interiér je navržen v souladu s konceptem kontrastu dvou hmot, tradiční a nové. V rekonstruovaném jsou použity tradiční materiály historických horských stavení (zejména dřevo, kámen, ruční omítky), včetně dominantních kachlových kamen. Do nového se propisuje strohé řešení podtrhující celkové vyznění domu. Prostory jsou provázány shodnými materiály, které se však odlišují rozdílným zpracováním či povrchovou úpravou. Například původní část má fasádu z opalovaného dřeva, které se opakuje na podhledu nové přístavby.
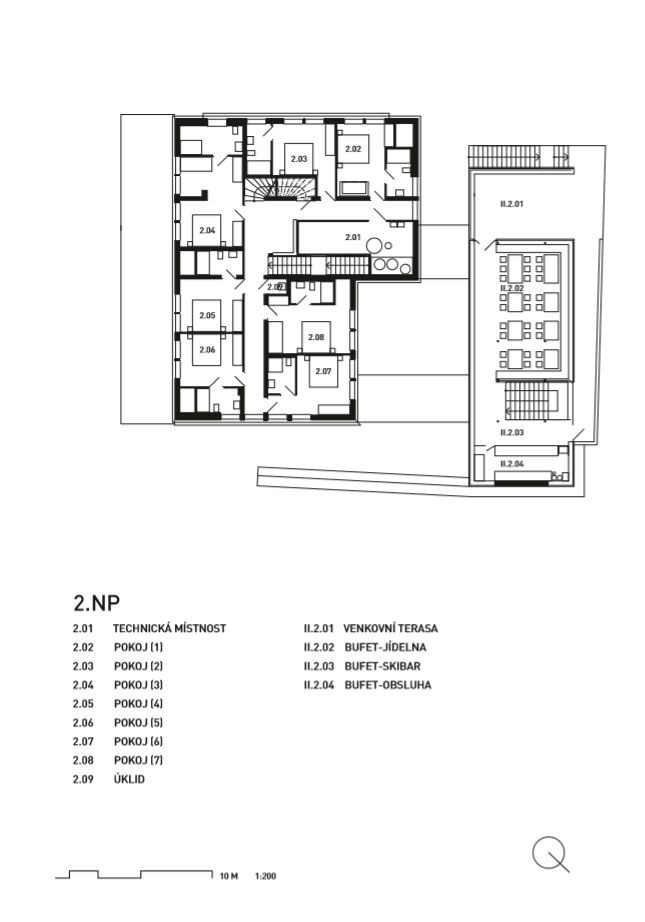
V přízemí původního objektu se nachází restaurace s italskou kuchyní, k čemuž náleží i pizza pec v hlavním prostoru. Ve druhém podlaží se nachází standardní pokoje pro hosty, v podkroví pak luxusní apartmány.
Přístavba skrývá v suterénu profesionální vinný sklep, v přízemí salonek, wellnes zónu a v patře „aprés-ski bar“ bezprostředně navazující na sjezdovku.
Projekt vznikl s využitím ARCHICADu.
- Autoři: Luděk Rýzner
- Ateliér: OK PLAN ARCHITECTS
- Spolupráce: Jiří Vincenc, Ondřej Vápeník
- Země: Česká republika
- Město: Horní Malá Úpa
- Realizace: 2018
- Užitná plocha: 930.00m2
- Zastavěná plocha: 526.00m2
Související projekty
Související architekti
Související ateliéry a firmy
Mohlo by vás zajímat





























