LOKALITA

Parcela se nachází v docházkové vzdálenosti (cca 10 minut) od centra Krakówa, asi 300 m od vnitřního zeleného okruhu města – bývalých městských hradeb. Lokalita je velice pestrým sousedstvím s bytovou zástavbou i plnou občanskou vybaveností, jíž dominuje areál blízké univerzity a onkologická nemocnice Marie Curie-Sklodowské. Z těchto důvodů, a také zjevně neutěšené situace parkování, je místo stiženo poměrně silnou automobilovou dopravou. Řidiči hystericky krouží a hledají parkovací stání, až jsou auta dočista na každém rohu i volném kousíčku země.

V blízkosti se nachází také klášter a církevní škola, fakultní knihovna, rehabilitační centrum a muzeum situované do budovy starého šplícharu.

HISTORIE

Historicky tato parcela nebyla nikdy zastavěna, vždy se jednalo o nevyužívaný plac. Původně patřil ke statkům šlechtické rodiny Jablonowskich, jakož i blízký šplíchar. Plac byl v ½ 20. stol. transformován do jakéhosi parčíku, což souviselo s výstavbou okolních bytových domů.

SOUČASNÝ STAV

V současnosti je tento plac plný množství krásných vzrostlých stromů, ty jsou ale bohužel vysázeny zcela ledabyle a to jak umístěním, tak i zvoleným druhem. Toto místo zcela postrádá jakýkoliv koncept nebo vizi.

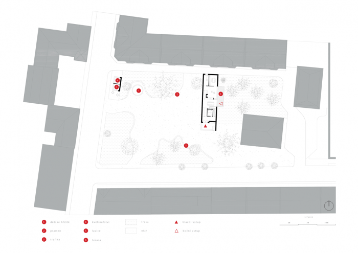
V parku najdeme lípy, javory, břízy, duby, buky i různé keře. Dále se tu nachází dětské hřiště, ozdravný pramen, trafika a květinářství. Velká část povrchu je z nepochopitelných důvodů vyasfaltována a obecně v nepříliš dobrém stavu. Parku neprospívá ani ohraničování jednotlivých částí nízkými plůtky, které tvoří faktickou i pocitovou bariéru. Park je navštěvován především pacienty blízké nemocnice, místními rezidenty a studenty. Jedná se spíše o park lokálního významu.

UMÍSTĚNÍ

V současném řešení parku jsem našla několik kvalitních míst, jejichž jedinečného charakteru bych ráda využila a podpořila jej – plac, pramen, dětské hřiště pod padajícím stromem a „zahradu“. Svým objektem se tedy snažím vůči těmto kvalitám vymezovat a umisťuji jej mezi ně.

HMOTA

Do parku umisťuji jednoduchý kvádr o maximálních (soutěžními podmínkami) povolených rozměrech, ze kterého postupně odkrajuji různé objemy. Tato práce s hmotou není z úrovně ulice příliš zjevná, ale ukazuje se až při vstupu do interiéru. Důvodem je štít blízkého rehabilitačního centra, vůči kterému by rozeklanější hmota nebyla patrně dostatečně uctivá. Dům se tedy chová trošku záhadně.

PROGRAM

Držím se programu daného soutěžními podmínkami:

recepční zóna společenská místnost kuchyňská a jídelní část soukromé diskrétní patio ošetřovna / místnost první pomoci konzultační místnost - obecná pomoc konzultační místnost - psychická podpora kancelář zaměstnanců zasedací místnost zaměstnanců servisní zázemí

Předpokládaná kapacita by měla být 10-15 návštěvníků a 3-5 zaměstnanců.

ROZVRŽENÍ

Ke komponování jednotlivých prostor používám jednoduché strategie inspirované typologií rodinného domu. Všechny návštěvníky nejvyužívanější prostory situuji do přízemí, které fungují de facto jako jedna velká společenská místnost pouze rozdělená do různých zón pomocí odlišných výškových úrovní nebo posuvných stěn (knihovna, ošetřovna). Celé toto podlaží je řešeno jako bezbariérové. Do patra pak umisťuji prostory, které vyžadují vyšší míru intimity a také nevyhnutelně nevyžadují bezbariérový přístup.

Sociální zázemí používám jako centrální sloup „točitého schodiště“ kolem něhož vinu obslužná schodiště i rampy, prostory pod nimi pak využívám jako servisní zázemí či úložné prostory.

Všechny místnosti či zóny se od sebe provozně i charakterově odlišují, odlišuji je tedy i architektonicky. K tomu používám práci s dimenzemi, a to jak v řezu, tak v půdorysu.

MATERIÁLY A KONSTRUKCE

Všimla jsem si, že pro Polsko je typické použití pálených cihel. Je to logické, Polsko má silně znečištěné ovzduší a cihla je tradičním způsobem řešení bezúdržbové fasády. Tento materiál teď u současné polské architektury hlásí ohromný comeback – 80% nových (především veřejných) staveb je obloženo cihlovým obkladem. Je to tak časté, až je to trochu otravné.

Místo cihly tedy volím další bezúdržbový materiál – probarvovaný pohledový beton. Přiznávám tak konstrukci domu, která je železobetonová s omítnutými zděnými příčkami. Vnitřní i venkovní podlahy jsou z dubového dřeva.

PERSPEKTIVA

Architekt by měl vždy počítat, že budova, kterou navrhuje nebude mít vždy stejný způsob využití, jelikož ekonomika i preference společnosti se stále vyvíjí. Je tedy nasnadě nabídnou náhled do možné budoucnosti domu.

S drobnými úpravami by objekt mohl sloužit například i jako ordinace / kancelářské prostory pro blízkou nemocnici. Sídlo společnosti, komunitní centrum, gastronomické zařízení i soukromá rezidence.

autorka: Barbora Slavíčková / 2. ročníkateliér: Suchomel / Šaml

  • Autoři: Barbora Slavíčková
  • Země: Polsko
  • Škola: FUA TUL – Ateliér Suchomel & Šaml
  • Město: Kraków
  • Ulice, číslo: Plac Generala Wladyslawa Sikorskiego
  • PSČ: 33-332
  • Datum projektu: 2016
Generální partner
Hlavní partneři