Pavel Hnilička Architects+Planners - Bydlení Újezd nad Lesy

Urbanistická koncepce
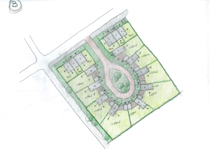
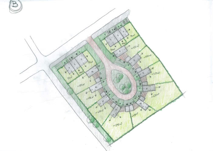
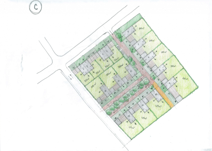
Návrh řeší nový obytný soubor v Újezdě nad Lesy, podél Staroújezdské ulice. Jedná se celkem o 12 nových rodinných domů, z toho 8 samostatných domů a 4 dvojdomy (tj. celkem 16 nových bytových jednotek). Dvojdomy tvoří uliční frontu podél Staroújezdské ulice. Samostatné domy umístěné jsou v druhém plánu a společně vytvářejí veřejné prostranství – moderní obdobu návsi. Jedná se o sdílený společný prostor, zároveň přístup k domům.
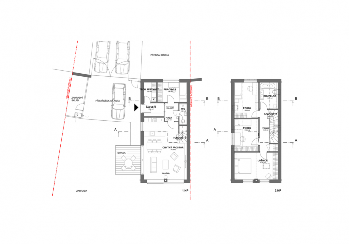
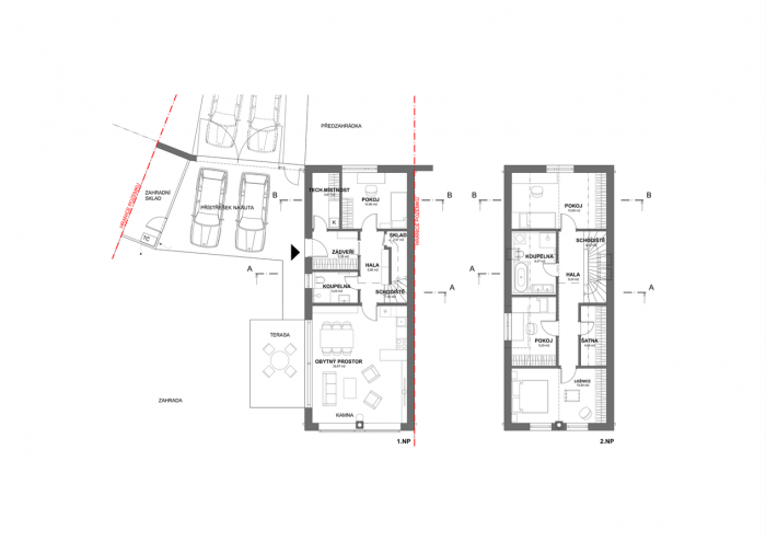
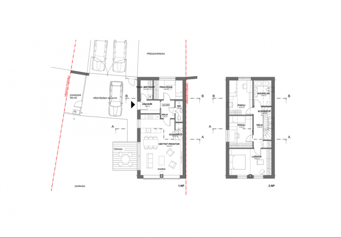
Domy jsou navrženy ve 3 rozměrových standardech – samostatné domy A, B a menší dvojdomy označené „C“.

Veřejné prostranství
Navržené veřejné prostranství bude řešeno jako obytná zóna – sdílený prostor bez vymezení odděleného chodníku a vozovky.
Příjezd ke každému domu je zajištěn z veřejného prostranství. Bude snaha předat společné komunikace do správy města (TSK). Samostatné domy budou mít ve dvoře v přístřešku 2 nezávislá parkovací místa vedle sebe a další 2 parkovací místa pro návštěvy ve vjezdu v předzahrádce. Dvojdomy budou mít ve dvoře 1 parkovací místo bez přístřešku a v předzahrádce 1 parkovací místo. V předzahrádce bude další 1 návštěvnické stání před vjezdem.
V prostoru návsi budou na komunikaci vyhrazena další parkovací místa pro případné návštěvy.


Mohlo by vás zajímat

















