Progres - Rodinný dům Litice

Na přání mladé rodiny jsme navrhli otevřený, prosluněný a vzdušný dům. Svou formou a dispozičním řešením využívá maximum z potenciálu místa, reaguje na morfologii terénu a orientaci ke světovým stranám. I přes nepříznivou orientaci pozemku splňuje přísná kritéria pasivního standardu.
Stavba je vzhledem k regulativům v území situována přibližně ve střední části pozemku a člení ho tak přirozeně na dva subprostory. Do ulice otevřené jižní předpolí domu s terasou – pozorovatelnou na ploše ze zatravněného pororoštu a intimnější část zahrady se stinnou dřevěnou terasou na severu.
Z hlavního objemu přízemí vystupuje v jihozápadní části hmota "slunečního trychtýře", který přes velkoformátové jižní okno umožňuje proslunit vnitřní dispozici až na sever do hloubi interieru.
Převýšený obytný prostor se maximálně otevírá na jih i sever – nechává domem proplynout světlo, vzduch, krajinu a maže tak rozdíl mezi exteriérem a interierem.
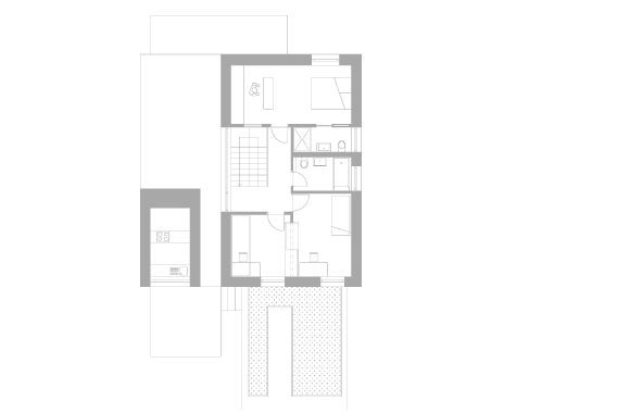
Nad východní polovinou vyrůstá hmota 2. podlaží jednoduchého obdélného tvaru se sklonem pultové střechy kopírujícím původní svah na pozemku. Dynamická střešní krajina v kontrastu s lapidárním půdorysem utváří silný výraz a svou členitostí dodává domu lidské měřítko.
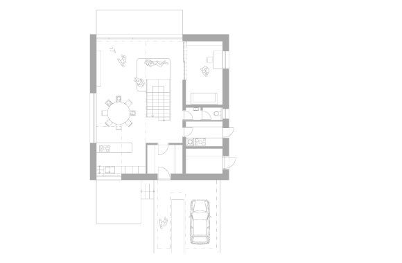
Přízemí domu je koncipováno jako velkorysý volně plynoucí obytný prostor. Jeho vnímání napomáhá velkoformátové prosklení i nosná konstrukce z dřevěných panelů bez potřeby podpor uvnitř půdorysu. Technické zázemí je komprimované na minimum a situováno při východní straně. Volně plovoucí objekt schodiště s knihovnou a posezením poskytuje další prostorový zážitek. Ze schodišťové haly ve 2. podlaží se pak vstupuje do dětských pokojů, koupelny a ložnice s vlastní minikoupelnou.
- Autoři: Vojtěch Kaas, Jan Kalivoda
- Ateliér: Progres architekti
- Země: Česká republika
- Město: Litice
- Realizace: 2017
- Užitná plocha: 159.00m2
- Zastavěná plocha: 130.00m2
Související projekty
Související architekti
Související ateliéry a firmy
Mohlo by vás zajímat





















