RD Černošice
S respektem k okolí
Pozemek se vzrostlou zelení se nachází ve starší, klidné obytné čtvrti Černošic. Rodinný dům pro čtyř až pětičlennou rodinu vytváří moderní prostředí pro bydlení a současně svou orientací a usazením v severozápadní části zahrady respektuje své okolí a nenarušuje charakter okolní zástavby.
Z důvodu zachování intimity interiéru a současně z respektu k soukromí sousedů navrhli autoři ze studia Prodesi dům ze třech stran prakticky uzavřený. Jihovýchodní stranou dům naopak otevírá všechny své obytné místnosti do zahrady. Dům se tak zcela přirozeně stává součástí zahrady, která volně přechází do domu skrze venkovní obytný prostor pod vykonzolovaným patrem.
Nápaditě řešený přesah střechy představuje výrazný prvek vytvářející architektonický výraz celého domu, který je však utajen všem kolemjdoucím, neboť uliční fasáda je řešena v hladké omítce v kombinaci s dřevem na úrovni přízemí. Hravý detail tvoří vstupní dveře provedené v odstínu tlumené červené. Vnější tvář domu směrem do ulice tak působí celkem nenápadným dojmem nijak nevybočujícím z architektury okolních staveb. Čelní plocha vykonzolovaného patra včetně bočních skosení je obložena střešní vláknocementovou krytinou Cembrit, jejíž grafitově šedá barva i struktura kontrastuje s dřevěným obkladem přízemí v medovém odstínu.
Interiér domu jako příběh
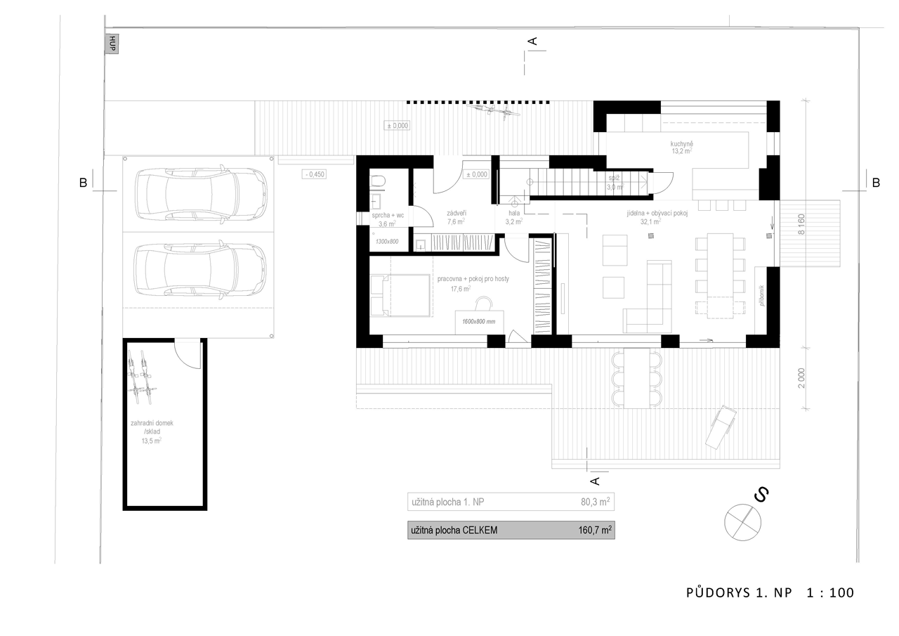
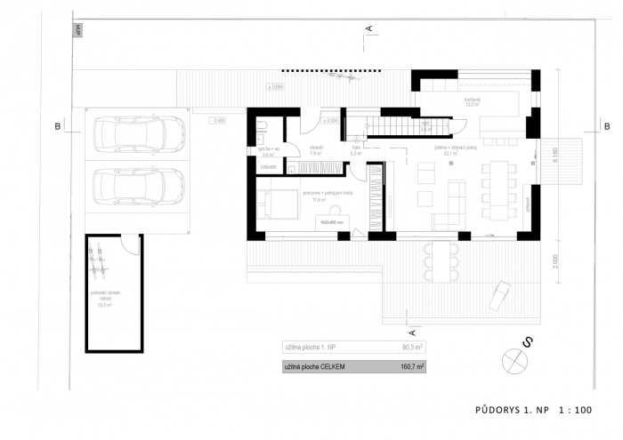
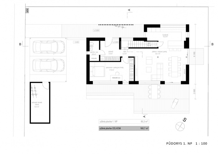
Dispozice domu vznikala jako příběh, který se utvářel na základě každodenního života stavebníka. Do domu se od ulice vstupuje po kryté „lávce“, na kterou dohlíží okno z kuchyně. Obyvatelé tak mohou jasně kontrolovat, kdo jde zrovna na návštěvu. Soukromí zahrady je chráněno zastřešeným stáním pro dvě auta a navazujícím dřevěným skladem.
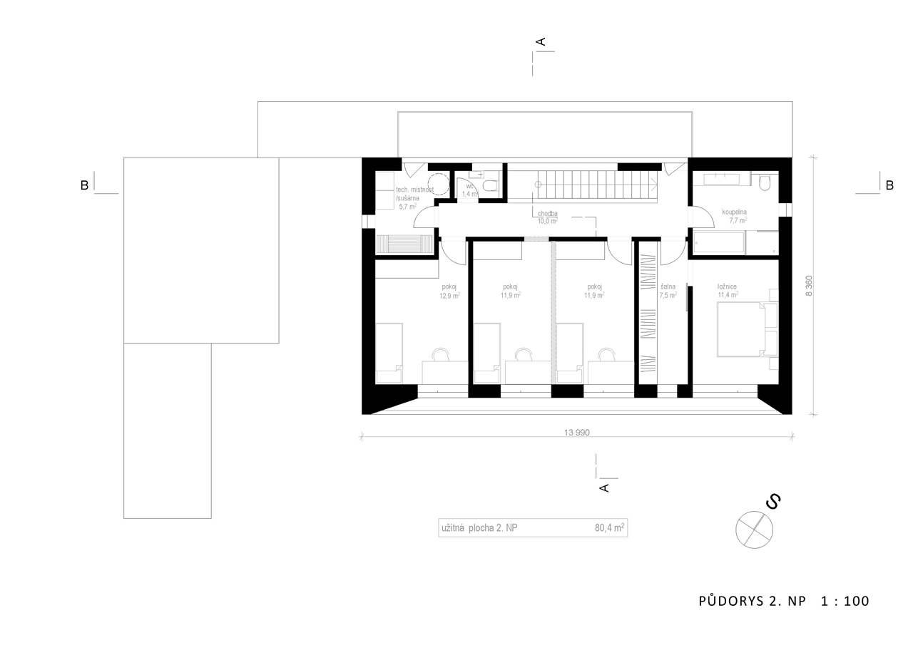
Zádveří plynule přechází do obytného prostoru přes halu, kterou je z obou stran možné oddělit posuvnými dveřmi a přidělit jí, stejně jako navazujícímu schodišti do patra, buď funkci obytnou, nebo spojovací. Přízemí vévodí velký obytný prostor s jídelnou, na nějž navazuje kuchyň se spíží a nalezneme zde i pokoj pro hosta, který je využívaný i jako pracovna.
Pokoje v patře jsou racionálně uspořádány podél jihovýchodní fasády domu a nabízí tak výhled do zahrady, čímž zajišťují svým obyvatelům nejen intimitu ale i výhled plný zeleně. Dispozice ložnicového patra je natolik prostorná, že se zde pohodlně vejdou tři dětské pokoje.
- Autoři: Pavel Horák, Klára Vratislavová
- Ateliér: Prodesi/ Domesi
- Země: Česká republika
- Město: Černošice
- Datum projektu: 2013
- Realizace: 2014
- Materiál: Skládaná střešní krytina - CEMBRIT
Související projekty
Související architekti
Související ateliéry a firmy
Mohlo by vás zajímat