RD Mikulovice I

KONTEXT
Obec Mikulovice, v jejímž katastru leží parcela, se nachází v rovinaté polabské krajině. Archeologické nálezy prokázaly přítomnost únětické kultury, počátky místního osídlení tedy lze datovat minimálně do doby před 4 tisíciletími. Parcelace jádra Mikulovic má gotické základy, dnes zde vzhledem k poloze (obec leží v půli cesty mezi Pardubicemi a Chrudimí) vzniká řada rodinných domů a obec o tisíci obyvatelích tak zažívá vzhledem ke svému měřítku znatelný stavební rozvoj.
Vlastní pozemek se nachází v malebné poloze pod barokním kostelem a poblíž lesního porostu. Stejně jako sousední parcely vznikl rekultivací bývalé skládky, náklady na založení objektu tak byly výrazně nadprůměrné, což investor vzhledem k celkové velkorysosti záměru akceptoval. Investor pracovně spolupracuje s místními architekty, nechal si od několika z nich vyhotovit studie, s žádnou se nedokázal ztotožnit natolik, aby se rozhodl pro realizaci. Dostatečný čas a získané podklady však vedly k ujasnění a zkonkrétnění stavebního záměru.
URBANISTICKÉ ŘEŠENÍ
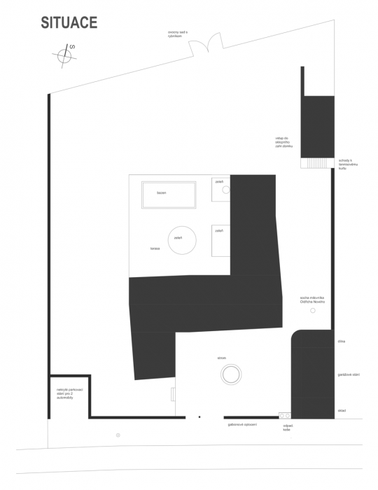
Jižní část pozemku přiléhá k místní komunikaci. S ní rovnoběžná je hlavní dvoupatrová hmota domu, z níž vybíhají v úhlopříčně opačných rozích dvě křídla a formují tak stavbu na půdoryse písmena „Z“. Hlavní hmota je od uliční čáry odsazena o 15 metrů, rozděluje tak pozemek na dvě části – vstupní část se zpevněnými plochami má poloveřejný charakter, soukromá severní část má přímou vizuální vazbu na les, který společně se stavbami na sousedních pozemcích zahradu opticky uzavírá, přitom je však v dostatečném odstupu, takže prostor nepůsobí sevřeně. Plochu mezi hlavní hmotou domu a severním křídlem tvoří terasa s bazénem a venkovní sprchou. Zbytek zadní zahrady je zatravněn a přirozeně tak přechází do krajiny za ním.
ARCHITEKTONICKÉ ŘEŠENÍ
Historii nemá smysl kopírovat, ale ani popírat. Lze v ní čerpat inspiraci, reinterpretovat současnými výrazovými prostředky ověřené kvality a funkce. V tomto ohledu je stavba koncipována jako současné vyjádření klasického vesnického domu. Ctí tradici lapidární hmoty se sedlovou střechou a její výsledný tvar reaguje na princip organického růstu aditivním přidáváním dalších hmot, který je zejména pro venkovská sídla charakteristický. Rozměrné okenní otvory posunuté do líce stěn zajišťují dostatečné proslunění a „opticky vtahují“ exteriér dovnitř. Titanzinková střešní krytina a provedení zaatikových žlabů patří k současnému architektonickému repertoáru.
Kosmetický odklon od důsledně pravoúhlého schématu zjemňuje poměrně značný objem domu, má význam z hlediska proslunění a v neposlední řadě působí v kontextu gotické parcelace jádra obce přirozeně. Má své opodstatnění i v interiérech – zužováním či rozšiřováním prostoru lze například naznačit hostům, které části domu jsou již soukromé, aniž by bylo třeba je pohledově oddělovat – vazba soukromých částí na velkoryse modelovaný hlavní obytný prostor je nenucená, přitom však snadno rozpoznatelná.
Zúžená škála použitých materiálů (dlažba z polské žuly, terasa z prken dřeva bangkirai, stěrková probarvená omítka, titanzinkový předzvětralý plech střechy) odpovídá určitému archetypu venkovské prostoty, přitom podtrhuje samotnou architekturu.
Do plotu z lámaných kamenných kvádrů, který ohraničuje pozemek ze tří stran, je z uliční části vsazeno otevřené stání pro dva automobily, uvnitř pozemku se k němu přimykají dvě hmoty: v zadní části je to sklepní zahradní domek, podél kterého vede schodiště k tenisovému kurtu, v předu pak v rámci jednoho objemu sklad, dvě garážová stání a dílna.
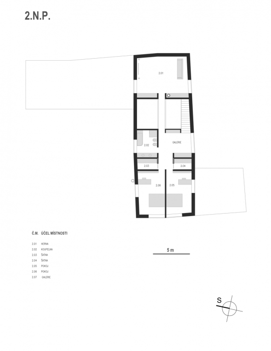
DISPOZIČNÍ ŘEŠENÍ
Hlavní vstup do objektu je umístěn v jižní fasádě v návaznosti na vstup a vjezd na pozemek. Přes vstupní halu lze pokračovat do hlavního obytného prostoru, do kuchyně, pohotovostního WC a do jižního křídla, v němž se nachází pracovna, šatna a prádelna. Tu je případně možno jednoduchým způsobem adaptovat na pokoj pro hosty či použít jako tradiční „vejminek“. Z kuchyně je přes chodbu přístupná technická místnost a venkovní kryté sezení, které je v zimním období možno uzavřít integrovaným roletovým systémem.
Hlavní obytný prostor je tvořen jídelní a obývací částí, které jsou od sebe symbolicky odděleny pouze minimalisticky pojatým krbovým tělesem. Na obývací část navazuje severní křídlo, v němž se nachází ložnice rodičů s vlastním zázemím.
Schodiště, pod nímž jsou umístěny šatní skříně, je otevřené do prostoru jídelny a vede do podkrovní haly. Z ní vedou vstupy do dvou dětských pokojů s šatnami, do koupelny a také do společenského prostoru domácího kina a atelieru. Ten je přístupný přes betonovou lávku překlenující otevřený prostor nad jídelní částí.
- Autoři: Zdeněk Balík
- Ateliér: ZETTE atelier
- Země: Česká republika
- Město: Mikulovice
- PSČ: 530 02
- Datum projektu: 2007
- Realizace: 2011
- Užitná plocha: 380.00m2
- Zastavěná plocha: 320.00m2
- Plocha pozemku: 3 000.00m2
Související projekty
Související architekti
Související ateliéry a firmy
Mohlo by vás zajímat




















