Rekonstrukce bytu Praha-Letná
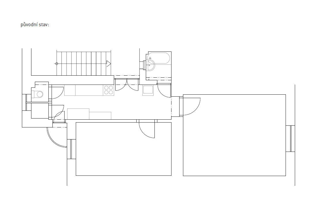
Původní stav bytu:
Původní byt byl po lehčí a ne zcela šťastné rekonstrukci (kuchyně v předsíni, plastová okna, linoleum na podlaze, průtokové čerpadlo nad vanou, veselé barvy na stěnách)
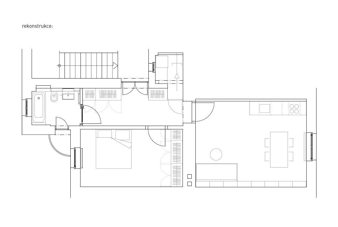
Rekonstrukce:
Záměrem bylo vytvořit světlé vzdušné bydlení. Byt prošel celkovou rekonstrukcí (nové podlahy, omítky, okna, dveře, TZB). Podařilo se zachovat jen rákosový strop s fabiony.
Dispozice bytu byla nepatrně upravena. Místo WC a komory vznikla koupelna prosvětlující celý byt. Z původní malé tmavé koupelny se stala technická místnost, která výborně slouží i jako sklad sportovních potřeb. Kuchyně se přestěhovala do obývacího pokoje, kterému dominuje stůl ze starého dřeva. Celému bytu vládne bílá barva doplněná o dřevěné solitéry.
Staré sváteční skleničky, nádobí a lampy po babičce a kamarádech znovu plní svoji funkci. Obytnou místnost zútulňuje ovčí tapeta. Výrazy protagonistů vedly k nejedné zajímavé diskuzi.
- Autoři: Hana Drdlová
- Ateliér: Ateliér Hana Drdlová - HADA
- Země: Česká republika
- Město: Praha
- Suma: 600 000.00
- Měna: CZK
- Realizace: 2013
- Užitná plocha: 57.00m2
Související architekti
Související ateliéry a firmy
Mohlo by vás zajímat