Rekonstrukce bytu v Šumavské ul.

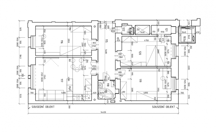
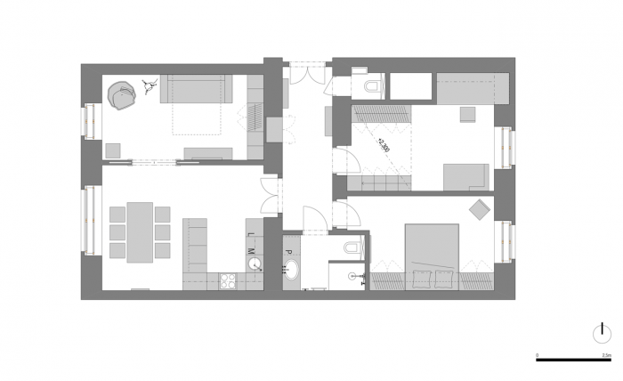
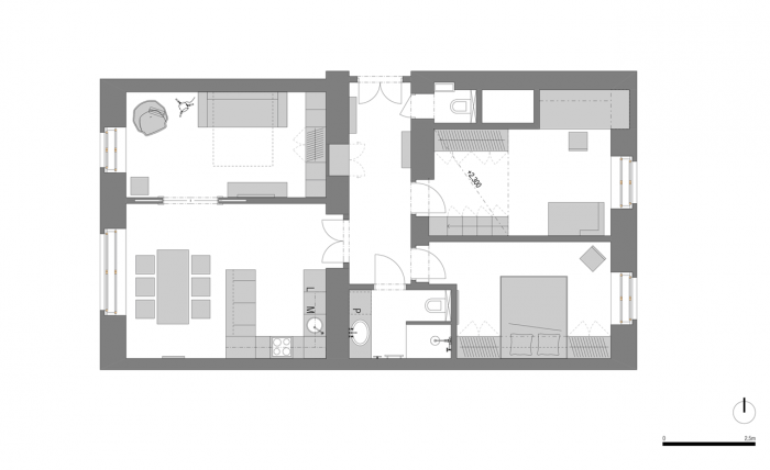
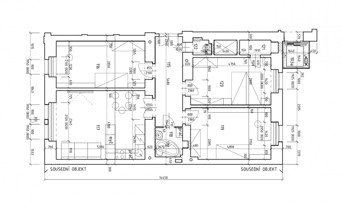
V původní dispozici bytu jsme navrhli dvě výraznější změny, a to propojení obývacího pokoje s pokojem sousedním a zazdění dveří z prostoru chodby. Dále bylo důležité zvětšit prostor koupelny, což se událo na úkor hlavní ložnice.
Nosným prvkem při celé rekonstrukci bylo zachování „původního ducha“ těchto prostor. To jsme podpořili renovací stávajících parketových podlah, špaletových oken a kazetových dveřích. Tyto výrazné prvky jsme doplnili o moderní kusy nábytku.
Obývací pokoj je rozdělen na dvě části, a to kuchyňskou a televizní místnost. Oba prostory jsou propojeny velkými posuvnými dveřmi, které při otevření umožní vizuální propojení mezi oběma pokoji. V televizní místnosti je navržena rozkládací sedací souprava a vestavěná stěna s šatní skříní a nikami na knihy či dekorace. To umožňuje pokoj využít jako plnohodnotnou ložnici.
Celý byt je barevně řešen v neutrálním duchu béžové a šedé barvy. Tento koncept je doplněn o barevné akcenty jednotlivých kusů nábytku.
- Autoři: Jana Šimánková
- Ateliér: Mio architects
- Spolupráce: Pavel Zezula
- Země: Česká republika
- Město: Praha 2 - Vinohrady
- Datum projektu: 2013
- Realizace: 2014
- Užitná plocha: 100.00m2
- Foto ©: Michal Červený
Související projekty
Související architekti
Související ateliéry a firmy
Mohlo by vás zajímat


















