Rekonstrukce prvorepublikové vily

Zatímco zašlá krása klasické prvorepublikové vily stačila zvenčí lehce oprášit, aby se vila vyjímala jako zamlada, dispozice a interiéry současnému bydlení vůbec neodpovídaly. Totalitním dědictvím bylo rozdělení vily po patrech na jednotlivé byty.
Od majitelů jsme dostali zadání na kompletní rekonstrukci až do posledního detailu, a tak jsme mohli vnést atmosféru první republiky i do moderního interiéru. Cílem byla nadčasovost, elegance a střídmost, kterou doplňoval i velmi praktický přístup paní majitelky.
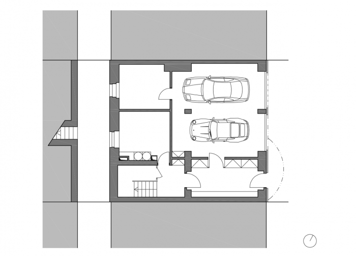
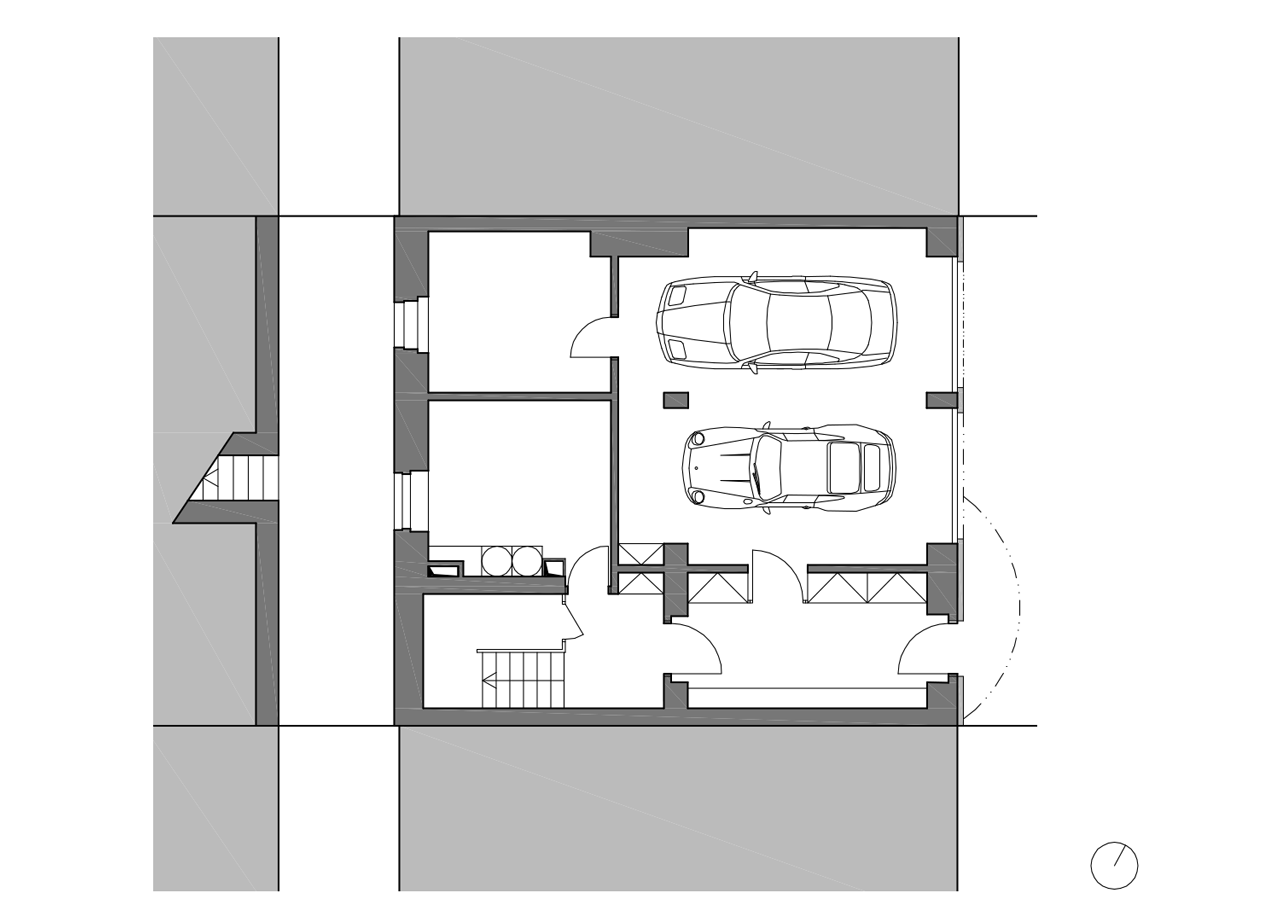
Vstupní podlaží bylo upraveno ke garážování dvou automobilů, zůstalo místo i na velké technické zázemí a sklad a hlavně důstojný vstup. Na podlaze vstupní haly je tradiční a praktické terrazzo. Vstupní hala je vybavena velkým množstvím úložných prostor v dýze amerického ořechu, která se objevuje i na zábradlí schodiště a navádí tak hosty do hlavní obytné místnosti v patře.
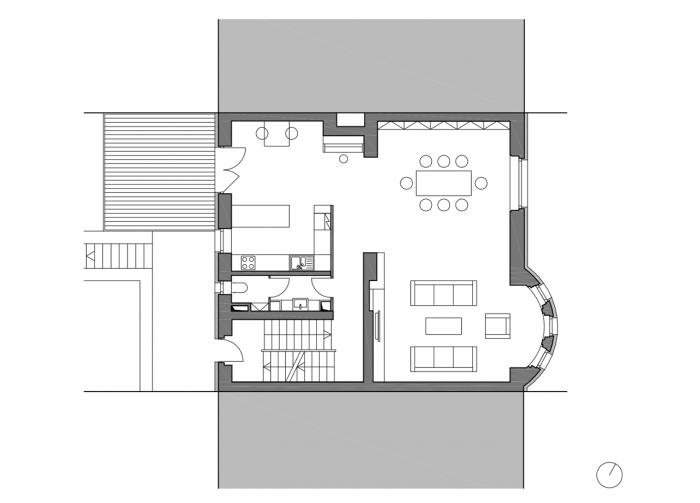
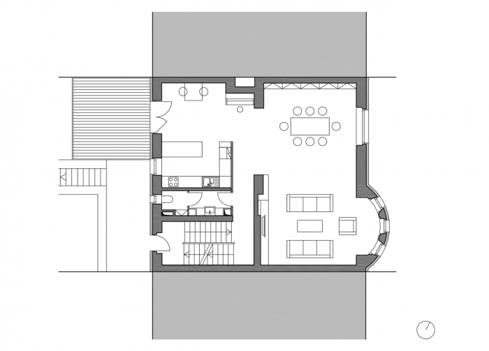
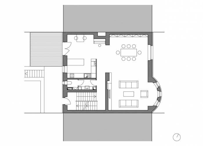
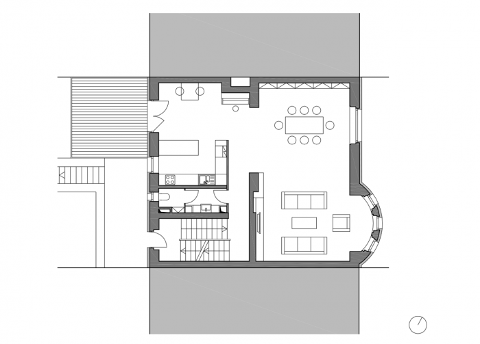
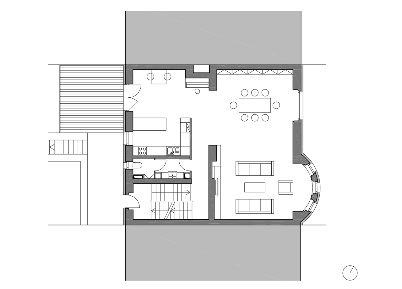
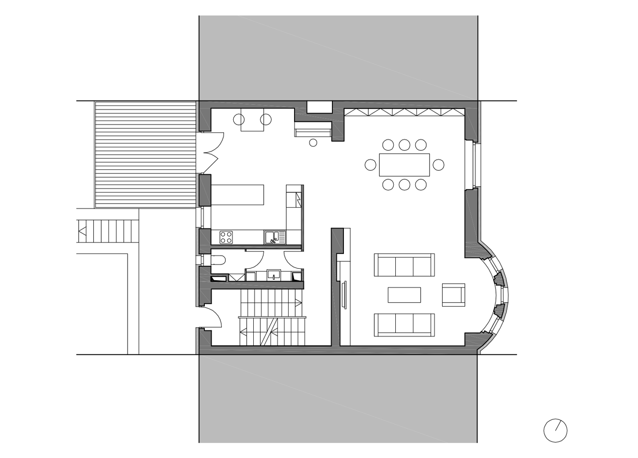
Hlavní obytné podlaží je díky usazení vily ve svahu na úrovni nově vybudované zahradní terasy a přitom o patro výše než je ulice. V rámci dispozičních úprav jsme odstranili všechny příčky, zůstala jen střední nosná zeď. Ta byla nakonec opatřena černým benátským štukem, který úplně potřel výraz zdi a vytvořil zvláštní kontrastní pozadí vestavěnému krbu v centru důstojného prostoru. Zeď se tak stala dominantním interiérovým prvkem. Vedle toho nábytek ze světlé břízy skrývá toaletu a odcloňuje kuchyňský kout. Dnes i před sto lety velmi moderní bílou lakovanou kuchyni doplňuje tradiční kámen - travertin.
Jídelní části vévodí na pozadí velké knihovny na míru vyrobený jednoduchý stůl pro 6 osob. Velmi jednoduše lze přisazením své menší poloviny, která většinu času slouží jako pracovní stůl u kuchyně, dosáhnout sezení až pro deset osob pro větší rodinné příležitosti a svátky. Kolem stolu stojí tradiční české židle TON v moderním designu ERA od designéra Reného Šulce.
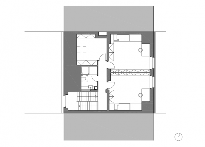
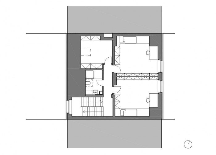
Další podlaží je navrženo jako ložnicové. Jsou zde dva dětské pokoje a hlavní ložnice s velkými šatnami. V dětské koupelně je hlavním prvkem skříňová stěna s vestavnými umyvadly ve veselé žlutozelené barvě. Velmi střídmě a elegantně pak působí šedo-bílo-černá koupelna rodičů.
Podkroví je využito jako pokoje pro hosty s vlastním zázemím.
- Autoři: Ján Stempel, Jan Jakub Tesař
- Země: Česká republika
- Město: Praha 6 - Dejvice
- Ulice, číslo: Fetrovská 890/35
- PSČ: 160 00
- Datum projektu: 2011
- Realizace: 2014
- Užitná plocha: 303.00m2
- Zastavěná plocha: 113.00m2
- Plocha pozemku: 215.00m2
Související projekty
Související architekti
Mohlo by vás zajímat















