Rodinný dům Karasy

Na místě rozpadlé stodoly v rámci staré usedlosti u Novozámeckého rybníku v Karasech u České Lípy se majitelé rozhodli postavit si rodinný dům. Z jižní strany je prudký břeh rybníka se vzrostlými listnatými stromy, přes jejichž koruny je z pozemku nádherný výhled na rybník.
Objem novostavby vychází z původní stodoly a obnovuje tak původní kompozici souboru staveb. Z elementárního objemu je pouze vykonzolována dřevěná terasa mezi koruny stromů, která plně čerpá z jedinečnosti místa. Částečné podsklepení bylo dáno již podsklepením stodoly, využil se tak již odtěžený prostor. Veškeré obytné místnosti jsou v přízemí, přičemž podkroví slouží jen pro příležitostné spaní dětí s vnoučaty.
Projekt vznikl s využitím ARCHICADu.
- Autoři: Ján Stempel, Jan Jakub Tesař
- Země: Česká republika
- Město: Zahrádky u České Lípy - Karasy
- Datum projektu: 2010
- Realizace: 2013
- Užitná plocha: 198.00m2
- Zastavěná plocha: 112.60m2
- Plocha pozemku: 2 062.00m2
Související projekty
Související architekti
Mohlo by vás zajímat

1/22

stempel & tesar architekti, Rodinný dům Karasy – foto
Foto: Svatopluk Dvořák
2/22

stempel & tesar architekti, Rodinný dům Karasy – foto
Foto: Svatopluk Dvořák
3/22

stempel & tesar architekti, Rodinný dům Karasy – foto
Foto: Svatopluk Dvořák
4/22

stempel & tesar architekti, Rodinný dům Karasy – foto
Foto: Svatopluk Dvořák
5/22

stempel & tesar architekti, Rodinný dům Karasy – foto
Foto: Svatopluk Dvořák
6/22

stempel & tesar architekti, Rodinný dům Karasy – foto
Foto: Svatopluk Dvořák
7/22

stempel & tesar architekti, Rodinný dům Karasy – foto
Foto: Svatopluk Dvořák
8/22

stempel & tesar architekti, Rodinný dům Karasy – foto
Foto: Fotes
9/22

stempel & tesar architekti, Rodinný dům Karasy – foto
Foto: Fotes
10/22

stempel & tesar architekti, Rodinný dům Karasy – foto
Foto: Fotes
11/22

stempel & tesar architekti, Rodinný dům Karasy – foto
Foto: Fotes
12/22

stempel & tesar architekti, Rodinný dům Karasy – foto
Foto: Fotes
13/22

stempel & tesar architekti, Rodinný dům Karasy – foto
Foto: Fotes
14/22

stempel & tesar architekti, Rodinný dům Karasy – foto
Foto: Fotes
15/22

stempel & tesar architekti, Rodinný dům Karasy – foto
Foto: Fotes
16/22

stempel & tesar architekti, Rodinný dům Karasy – foto
Foto: Svatopluk Dvořák
17/22

stempel & tesar architekti, Rodinný dům Karasy – foto
Foto: Svatopluk Dvořák
18/22

stempel & tesar architekti, Rodinný dům Karasy – foto
Foto: Svatopluk Dvořák
19/22

stempel & tesar architekti, Rodinný dům Karasy, situace – foto
Foto: archiv autorů
20/22

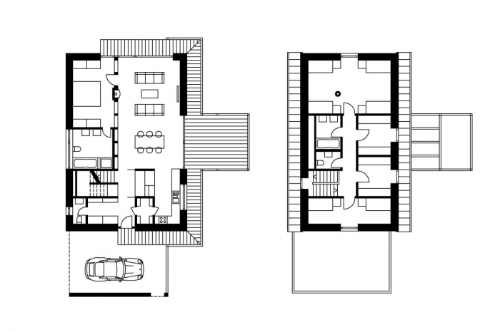
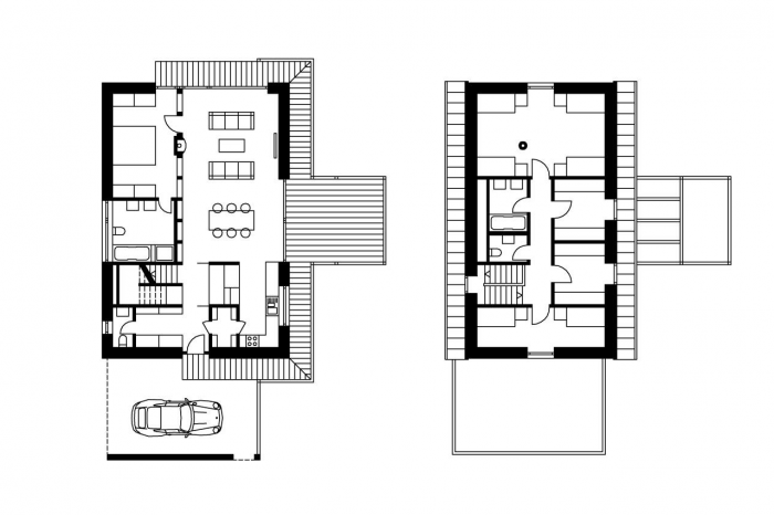
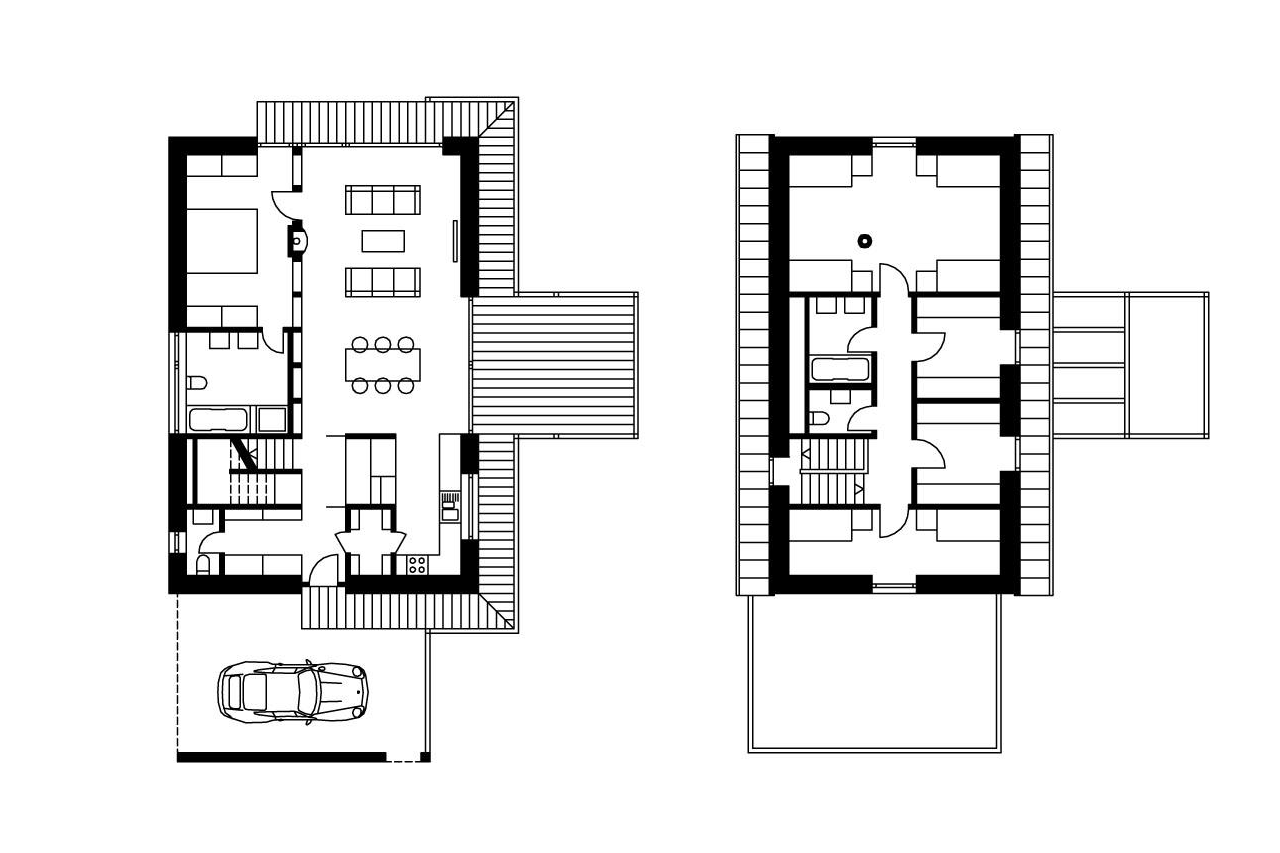
stempel & tesar architekti, Rodinný dům Karasy, půdorys 1. NP a 2. NP – foto
Foto: archiv autorů
21/22

stempel & tesar architekti, Rodinný dům Karasy, příčný řez – foto
Foto: archiv autorů
22/22