Rodinný dům Mělník

DISPOZICE

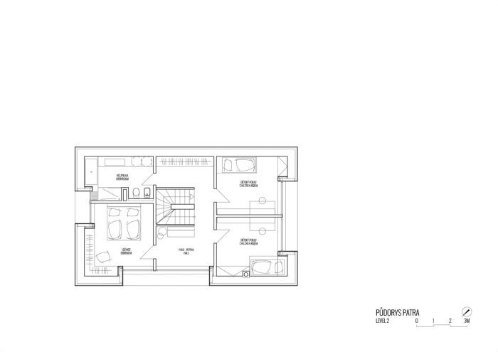
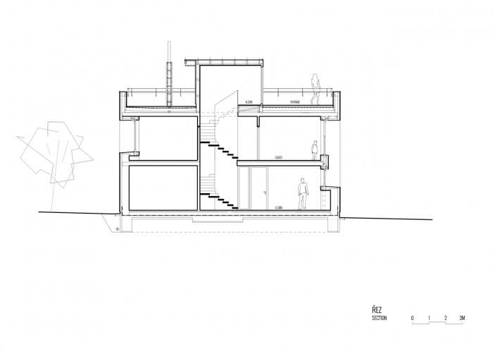
Jednogenerační rodinný dům o půdorysných rozměrech 13,3 × 8,3 m má dvě obytná podlaží, v přízemí jsou denní prostory, v patře soukromé ložnice. Hlavním prostorem je obývací pokoj s kuchyní v přízemí, orientovaný velkým oknem se vstupem do zahrady. V patře je ústředním prostorem ložnicové části hala, která slouží jako šatna před koupelnou a jako společná herna před ložnicemi dětí. Dřevěné schodiště prochází středem domu okolo železobetonového vřetene až do střešní nástavby s terasou, která nabízí další, odlišný obytný prostor.

Umístění domu ve středu nevelké parcely na okraji města opomíjí tradiční dělení zahrady a akcentuje propojení domu s charakteristickými výhledy do krajiny. V každé fasádě je zapuštěn jediný otvor, přičemž počet otvorů se rovná počtu unikátních výhledů do okolí, které rámují specifický a pro každou stranu odlišný výhled – panorama města, vinice a zahrady, poutní kostel Nejsvětější Trojice v Chloumku a panorama Řípu.

KONCEPT

Velikost, proporce a umístění okenních otvorů jsou určeny nasměrováním výhledů a orientací ke světovým stranám, tedy vztahem interiéru a venkovního prostředí. Velké francouzské okno vede na zahradu, okna s vyšším parapetem poskytují výhled na cestu, z cesty je však dovnitř obtížné nahlédnout. Nízký parapet v dětských pokojích a herně nebrání ve výhledech ani těm nejmenším.

Zapuštění oken chrání místnosti před ostrým slunečním světlem a nepřízni počasí. Hloubka zapuštění tvoří v interiéru při stěnách okolo oken 60 cm hluboké niky určené pro vestavbu nábytku. To poskytuje v místnostech dostatek prostoru pro úložné skříně a knihovny, které nezasahují do čistě obdélných půdorysů.

KONSTRUKCE

Obvodové zdivo a vnitřní příčky jsou vystavěny z cihelných bloků, z vnější strany zateplené kontaktním systémem. Konstrukce střešní nástavby a zapuštěných okenních nik je dřevěná montovaná s izolační výplní, tesařská konstrukce je složena z nosného rámu a pomocné kostry. Meziokenní panely a střešní nástavba jsou obloženy modřínovým dřevem. Základy a stropy jsou železobetonové monolitické, v interiéru přiznané jako pohledové.

Dům je optimalizován pro nízkoenergetický standard. Vytápění a ohřev vody zajišťuje peletkový kotel, v letních měsících je využíván systém solárního ohřevu. Místnosti v přízemí jsou vytápěny podlahovým topením a ložnice v patře radiátory. Větrání je přirozené. Kanalizace je svedena do domovní čističky odpadních vod, dešťová kanalizace je svedena drenážním systémem do vsaku.

ZAHRADA

V zahradě jsou vysázeny jedlé druhy rostlin a starých krajových odrůd ovocných dřevin namísto novodobých zahradních hybridů.

Generální partner
Hlavní partneři