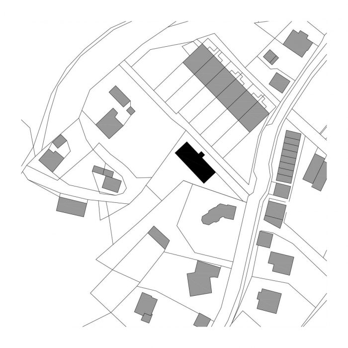
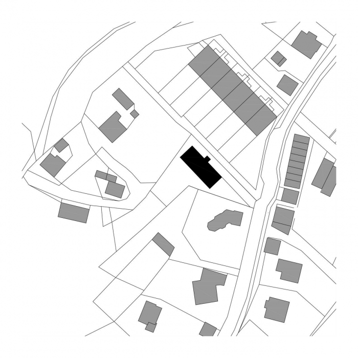
Rodinný dům Mšeno

Krásný výhled, přitom nedaleko centra města v klidné residenční čtvrti; na první pohled ideální pozemek, a přesto prázdný. I přes nízkou cenu odrazoval prudký spád pozemku, který neumožňoval stavbu běžného domu, případné zájemce.
Tento pozemek si vyhlédl člověk, který má rád výzvy, a vložil do nás veškerou důvěru. I přes naše utvrzení nečekal, že nakonec bude mít dům bez kompromisů, a přesto pozemek koupil. Klient, majitel stavební firmy, byl sám sobě stavitelem. Naši práci poznal při jedné z našich společných realizací, a tak se z typického trojúhelníku klient-stavitel-architekt stal úžasný dialog klient-architekt.
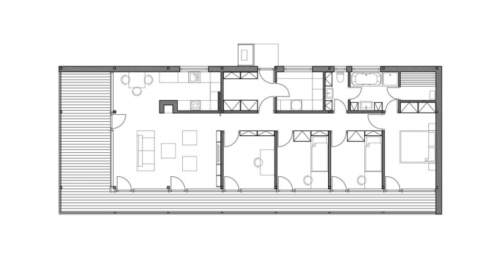
Jednoduchý objem stavby je vynesen přes dvoje čtyřnoží na ocelovém roštu do volného prostoru. Se svahem je rošt propojený v místě vstupu. Tyto tři pevné body udrží dřevostavbu o komfortní dispozici pro typickou rodinu.
Na první pohled efektní řešení skrývá spoustu efektivních výhod. Dům se nachází v Jizerských horách, kde by sníh (zejména jeho tání) při zapuštění domu do svahu přinášel neustálé komplikace. Poměrně jednoduché zakládání a úspora hydroizolací ušetřily spoustu financí na zbytek stavby.
I přání jednopodlažního domu, kterého se klient při koupi pozemku vnitřně vzdal, bylo splněno. Na jedné úrovni je dispozice s obývacím pokojem, jídelnou a kuchyní, třemi ložnicemi, pracovnou, technickým zázemím, koupelnou se saunou a samostatným WC. To vše bezbariérově přístupné z cesty u domu.
Přetažení střechy chrání velké prosklené plochy v létě před přehřátím, a přitom v zimě pustí do domu spoustu slunce. Z každé ložnice je výstup na terasu s výhledem do zahrady, na město a úpatí hor. Koruny stromů a terasa dokonale vynahradily přímý vstup na zahradu, která v našem případě připomíná černou sjezdovku. Chcete-li si však dům prohlédnout z těch nejatraktivnější pohledů, musíte tuto sjezdovku seběhnout kolem domu po vlastních nohou nebo sjet na lyžích.
- Autoři: Ján Stempel, Jan Jakub Tesař
- Země: Česká republika
- Město: Jablonec nad Nisou
- Datum projektu: 2011
- Realizace: 2013
- Zastavěná plocha: 178.00m2
- Plocha pozemku: 818.00m2
- Statika: Jan Hora / HH Statika, s. r. o.
Související projekty
Související architekti
Mohlo by vás zajímat

















