Rodinný dům v Lysé nad Labem
Velmi racionálně komponovaný rodinný dům do Lysé nad Labem je situován na poměrně stísněný pozemek na nově vznikajícím předměstí.
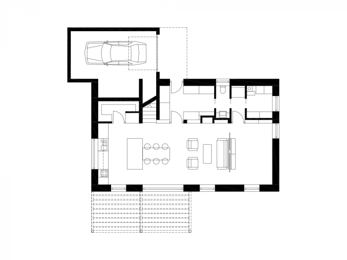
Klient nás oslovil na základě osobní návštěvy rodinného domu ve Vraném nad Vltavou. Zadání se skládalo zejména z požadavků na nenáročnou výstavbu, údržbu a umírněnou dispozici pro čtyřčlennou rodinu. Klient nezapřel své ekonomické vzdělání. Navržený rodinný dům měl být obrazem jeho jasného přístupu k bydlení: „Dům musí sloužit nám, nikoli my domu“. Expresivní členění jižní fasády odráží vnitřní uspořádání. Přísná dispozice je plně účelná a nabízí na velikost domu komfortní vnitřní prostory.

Objem domu je pomyslně rozdělen na tři části – kvádry. Dominuje obytná část, ke které je přisazená hmota garáže a dřevěná konstrukce pergoly nad terasou. Jednoduché konstrukční řešení i detaily stavby jsou řešeny tradičně.
Projekt vznikl s využitím ARCHICADu.
- Ateliér: Stempel Tesař architekti
- Autoři: Ján Stempel, Jan Jakub Tesař
- Země: Česká republika
- Město: Lysá nad Labem
- PSČ: 289 22
- Datum projektu: 2009
- Realizace: 2013
- Užitná plocha: 176.00m2
- Zastavěná plocha: 142.00m2
- Plocha pozemku: 736.00m2
Mohlo by vás zajímat