SENAA architekti - rekonstrukce chalupy v Jizerských horách
Chalupa se nachází na svažité mýtině uprostřed lesa na břehu potoka v obci Kořenov v CHKO Jizerské hory. Jedná se o novostavbu v půdoryse i objemu původní chalupy. Historicky zde proběhla rekonstrukce tehdejšího průmyslového objektu na horský penzion. Zadáním byla přestavba chalupy na moderní rekreační zařízení, které nabídne horské ubytování s odpočinkem a relaxací.
V průběhu rekonstrukce se objevily skryté statické poruchy nosné konstrukce a muselo dojít ke kompletní demolici stávajícího objektu. Nová chalupa zachovává původní tvar a umístění. K výchozímu obdélnému půdorysu chalupy je přidána nová přístavba v úrovni prvního podlaží, která viditelně odděluje historickou část domu a rozšiřuje hlavní obytný prostor. Dům je doplněn o střešní vikýře, které dostatečně osvětlují horní koupelny a schodiště.
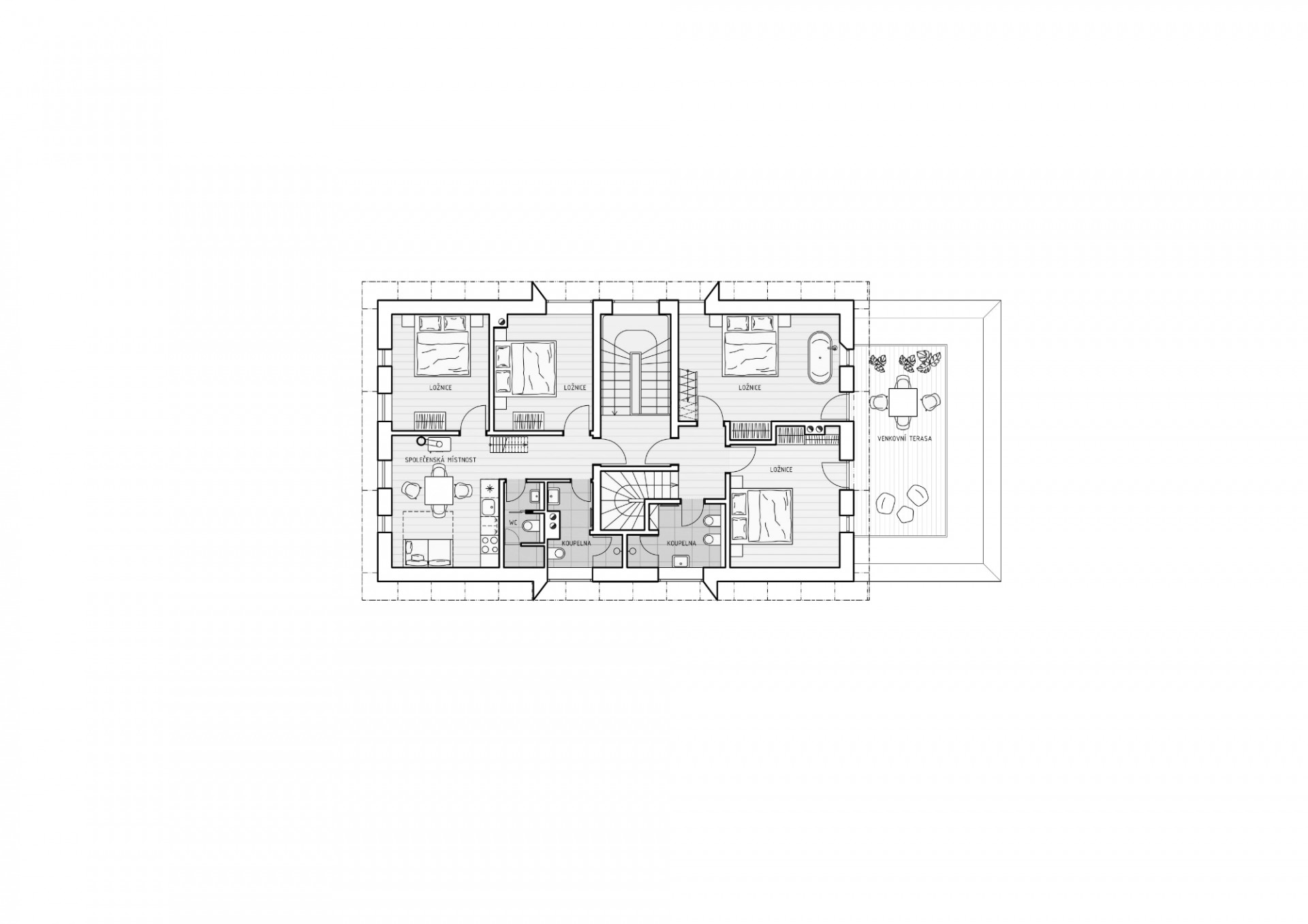
Chalupa je třípodlažní a nabízí tři samostatné apartmány se společným vstupem v suterénu, na který navazuje centrální schodiště. V přízemí je hlavní obytný prostor s privátním schodištěm do podkroví, kde jsou dvě soukromé ložnice a koupelna. Ve druhé polovině přízemí se nachází druhý apartmán 3+kk. Třetí apartmán 3+kk je umístěn do podkroví. V suterénu je společné wellness s finskou saunou a technickým zázemím.
Materiálové řešení vychází z tradičního kontextu CHKO Jizerských hor a ze stávajícího domu. Suterén je obložený kamenem a vytváří tak podnož celého domu. Jsou použity dřevěná okna, kamenné parapety a přírodní vápenná štuková omítka. Přístavba je obložena tradičním deštěním a na rozdíl od původní hmoty domu jsou zde použity velké formáty oken. Střecha je z falcovaného plechu.
- Autoři: Václav Navrátil, Jan Sedláček, Kateřina Zabadalová, Jan Gadziala
- Země: Česká republika
- Město: Kořenov
- Datum projektu: 2017
- Realizace: 2019
- Zastavěná plocha: 181.00m2
Související projekty
Související architekti
Mohlo by vás zajímat