Sportovní hala St. Martin

Rakouská jednoduchost
Tento zdánlivě jednoduchý měděný a skleněný kvádr v rakouském městě Villach je elegantní a sofistikovanou realizací typologie sportovní haly. Svůj oceněný projekt popisují Dietger Wissounig Architekten.
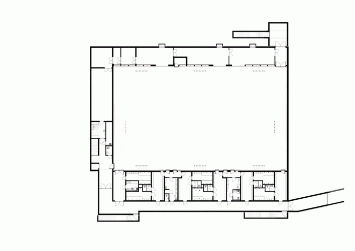
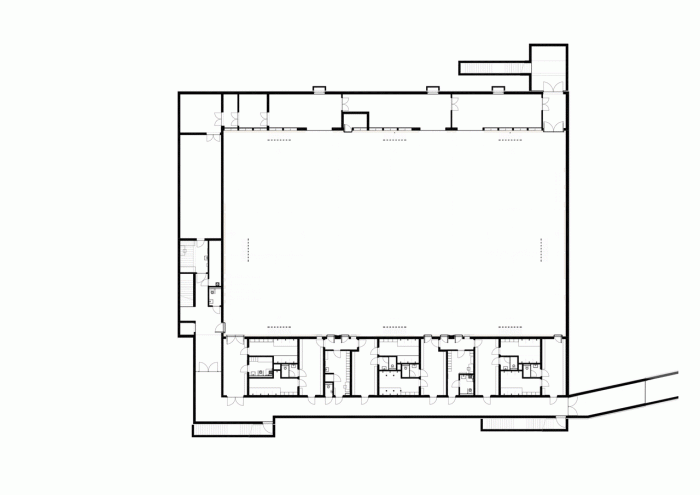
Tuto novou sportovní halu používá sousední střední škola i různé sportovní kluby a je také vhodná pro mezinárodní turnaje míčových her. Podlouhlá stavba vede téměř rovnoběžně s ulicí, což jí poskytuje silnou přítomnost na veřejnosti, chrání venkovní sportovní hřiště za ní a zachovává stávající parkovací místa na severozápadní straně.
V přední části budovy je hlavní vchod s malým nádvořím. Řada stromů a přidaných parkovacích míst slouží jako nárazníkové pásmo vůči rušné ulici. Třípodlažní budova je zanořena čtyři metry pod úroveň ulice, což umožnilo vytvoření přímého podzemního přístupu do školy a umožnilo to také realizaci hlavní haly s celkovou výškou 11,8 m ve formě, která splňuje požadavky rozvoje města.
SVĚTLÉ BARVY INTERIÉRU
V kontrastu s průhlednou měděnou fasádou na černém pozadí dominují interiéru světlé barvy: podlaha a stěny tělocvičny jsou z dubové palubovky, zatímco všechny ostatní povrchy - dokonce i podlahy - jsou krémově bílé. Vzniká tak příjemná atmosféra, kdy sportovní vybavení a osvětlení pod stropy zůstávají v pozadí. Celá technologie ventilace je integrována do stěn.
Geotermální předehřívání přiváděného vzduchu zajišťuje společně s rekuperací tepla ventilačním systémem a odpovídající izolací vysokou úroveň energetické účinnosti, takže roční spotřeba tepla na vytápění je jen 16,9 kWh/m².
- Země: Rakousko
- Město: Villach
- Ulice, číslo: St. Martiner Straße 11
- PSČ: 9500
- Užitná plocha: 3 170.00m2
- Materiál: měď
Mohlo by vás zajímat
















