Stomatologická ordinace v Braníku

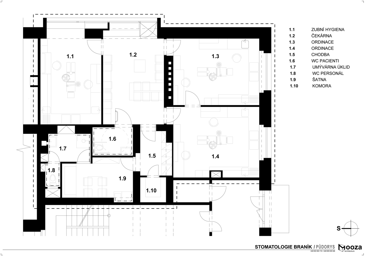
Zadáním mladého zubního lékaře Víta Olšovského bylo navrhnout kompletní rekonstrukci nových prostor jeho firmy Doktor OLS. Výčet prostor zahrnoval vstupní čekárnu, navazující tři ordinace a také zázemí pro lékaře.
Celým návrhem prostupuje snaha vytvořit atmosféru, která by na první pohled paradoxně neměla připomínat lékařské prostředí s typickou sterilní čekárnou. Hned při vstupu nás tak uvítá prostor, kde nelze přehlédnout dominující překližkové desky s výraznou kresbou dřeva. Tvoří i podklad pro typizované sedáky různých dekorů. Mezi těmito sedáky může být místo pro odložení tašek, šál a klobouků. Konzolové řešení sedáků usnadňuje úklid. Na stropě se opakuje stylizovaná kresba dřeva tentokrát v ruční malbě. Místy přechází na stěny a tvoří tak část navigačního systému v místnosti. Do překližkového květináče ve výloze lze umístit libovolné pokojové květiny, které doplňují přírodní ráz čekárny.
Samotné ordinace jsou pak řešené s důrazem na funkčnost, s převládající bílou barvou navozující pocit čistoty. Jedinými akcenty jsou pak zubařské křeslo spolu s dekoracemi, které odrážejí osobitost praktikujícího lékaře. Pro tyto osobní dekorace jsou osazeny jednoduché překližkové police, které se nacházejí nad pracovní plochou.
Dalším oříškem pro nás byla denní místnost lékařů s malou kuchyňkou, která má sloužit k odpočinku a ke stravování. Jelikož pro mi byla zvolena místnost ve středu dispozice s chybějícím oknem, rozhodli jsme se zde pokusit o malý vtip a iluzi – obraz okna s výhledem do zeleně. Jedná se o klasický plakát s nalepenou dřevěnou lištou, která simuluje rám.
- Autoři: Petra Bíšková, Klára Císařovská, Štěpán Svejkovský, Markéta Knobová
- Ateliér: Mooza architecture
- Země: Česká republika
- Město: Praha 4 - Braník
- Ulice, číslo: Branická 1241/34
- PSČ: 147 00
- Realizace: 2015
- Užitná plocha: 150.00m2
- Poznámka: Foto © Kristýna Šilhavá
Související projekty
Související architekti
Související ateliéry a firmy
Mohlo by vás zajímat


















