Studio acht - Areál Ponávka
Pro město Brno je typické, že se v bezprostřední blízkosti historického centra nacházela oblast s těžkým průmyslem – v tomto případě areál škrobáren a jatek provázaný hustou železniční dopravou. V roce 2007, kdy jsme k projektu konverze této oblasti přistoupili, využívaly rozpadající se objekty náhodné firmy pro jejich jediný benefit – blízkou polohu vůči centru. Řeka Ponávka protékající tímto „ocelovým městem“ se nacházela v katastrofálním stavu a připomínala spíše stoku.
Naším urbanistickým konceptem bylo rozvázat území po obou březích Ponávky, efektivně jej využít z hlediska podlažních ploch a dopravy, vypořádat se s ekologickou zátěží a zároveň nechat rozvinout přírodní charakter vodního toku.
V první etapě revitalizace jsme navázali na zvyklost přítomnosti skladů, drobné výroby a velkoobchodu. Vyvinuli jsme proto nový produkt – lehký CT Box, snadno sestavitelný i rozložitelný blok tvořící halu o 800 m2, který nahradil zdemolované průmyslové objekty z 80. let doposavad tvořící těžkotonážní komplex jatek při Masné ulici.
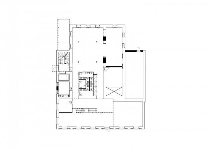
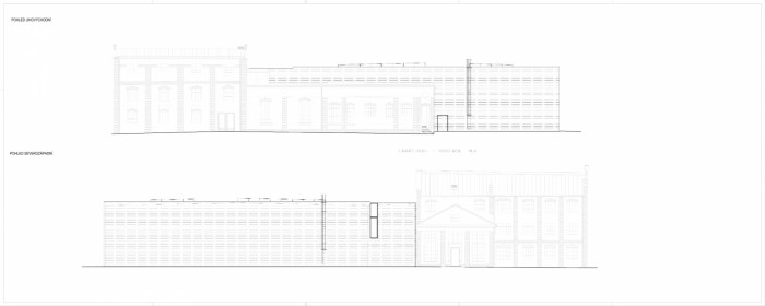
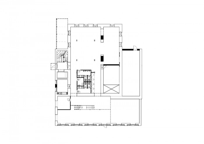
Naším ambiciózním záměrem bylo proměnit Masnou ulici na městskou třídu. Zvolili jsme proto takovou velikost bloků, která evokuje měřítko bočních ulic ve sponu kolem 70 metrů. Vzniklý ortogonální systém umožňoval průhledy z ulice Masné až k Ponávce a původní historické industriální zástavbě. Po tomto jejím otevření a zklidnění přišel zájem o umístění kancelářských ploch – vznikl koncept CT Office Box s vnitřními „dvoranami“, opláštěný režnými cihlami a velkými průmyslovými okny.
Nové kancelářské prostory přilákaly do oblasti zajímavé IT firmy, jejichž vývojová centra zaměstnávají mezinárodní pracovníky. Brzy vznikla poptávka po kvalitním ubytování s veškerým servisem v docházkové vzdálenosti. Tomuto požadavku na jsme vyšli vstříc v podobě plně vybavené koleje Domeq. Kromě studentů si jej oblíbili právě nájemníci z řad young professionals.
Pro neutuchající poptávku po bydlení v dnes již transformovaném brownfieldu vznikají v současnosti další dva bytové domy. S nimi přichází do území i navazující maloobchod a služby – jedna funkce podporuje druhou.
Rozvoj těchto stávajících i nových funkcí je plánován i v některých původních historických budovách, které druhá fáze konverze čeká, případně jí právě procházejí (objekty C8, C3 – retail, objekt C5 – office). Polyfunkční objekt A4 pak představuje rezervu pro budoucí vývoj celého území a svou velikostí by měl představovat pomyslné dokončení objemové kompozice nejen ulice Masné, ale celého areálu.
Paralelně se všemi etapami výstavby probíhala v areálu rekultivace parteru a současně i krajinné úpravy, zejména vodního toku. Pro chystanou druhou etapu revitalizace řeky Ponávky se počítá s ještě větším přiblížením se přírodnímu charakteru jejích břehů. S tím souvisí i plánované prodloužení cyklostezky podél řeky a zatraktivnění pěší dosažitelnosti areálu, který byl po celou dobu konverze průchozí směrem k historickému centru města.
- Autoři: Václav Hlaváček
- Ateliér: Studio acht
- Země: Česká republika
- Stavebník: CTP Invest
- Město: Brno
- Datum projektu: 2010
Související projekty
Související architekti
Související ateliéry a firmy
Mohlo by vás zajímat