TYIN - Chata Skardsøya
Typologie chalup a venkovských domů má v současné norské kultuře své nezastupitelné místo. Předchozí generace se živily především zemědělstvím, rybolovem či lesnictvím – tedy odvětvími, které přímo vyžadují velmi úzký vztah s přírodou. Dnes, kdy většina lidí žije ve městech, podobné objekty tento specifický vztah přímo ztělesňují. Skromná velikost této konkrétní chaty o výměře 60 metrů čtverečních zaručuje udržitelné nakládání jak s materiálem, tak i samotnými energiemi.
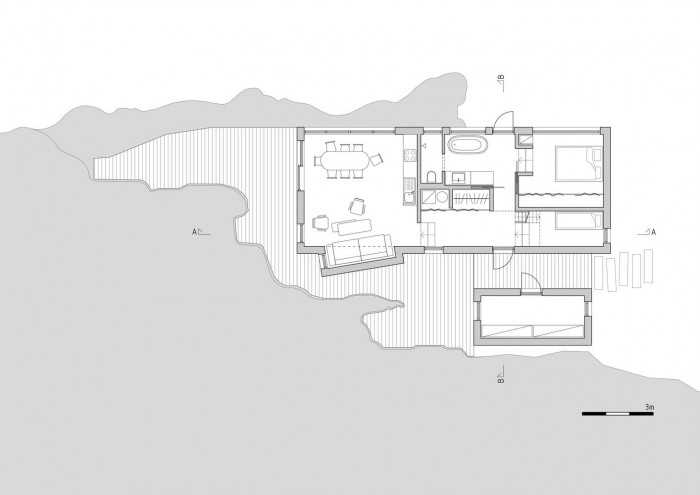
Budova se nachází na místě obklopeném mokřinami, pobřežními skalisky a řídkými jehličnatými lesy. Právě tato vazba k okolnímu terénu hrála v projektu velmi důležitou roli. Chata leží 21 metrů nad mořskou hladinou, přičemž vzdálenost domu od pobřeží je pouhých 100 metrů. Před samotnou výstavbou muselo dojít k odhalení skalního podloží vysušením několika mokřin, což zlepšilo integraci chaty s terénem.
Skelet konstrukce hlavní budovy s trámovými stropy leží na betonových základech. Hlavní budova je založena ve třech různých výškových úrovních, což snižuje její výšku a zdůrazňuje vztah mezi interiérem chaty a okolním prostředím. Přístupové místo se nachází na západní straně pozemku, o něco málo níže než samotná chata. Vizuální účinek výrazně závisí na perspektivě. Ze západu se chata jeví vyšší, zatímco z východu vypadá nižší a nenápadnější. Zastřešený vstup do hlavní budovy je situován vedle sousední přístavby s technickým zázemím.
Klienti vykonali většinu stavebních prací svépomocí. Takový přístup je velmi vzácný a pohled na osobní vklad klientů do podoby domu nás velmi těšil. Fasáda domu je obložena ze smrkového dřeva vytěženého z klientova vlastního lesa. Neošetřené latě rychle stárnou, blednou a tím získávají lehký stříbřitý odstín.
Mohlo by vás zajímat