Vavrica architekti - Zahradné vily

Záhradné vily svojím názvom, zachránenými vzrastlými stromami a novou výsadbou reflektujú génia loci bývalej opustenej záhradkárskej kolónie, ktorá sa nachádzala v tejto lokalite.
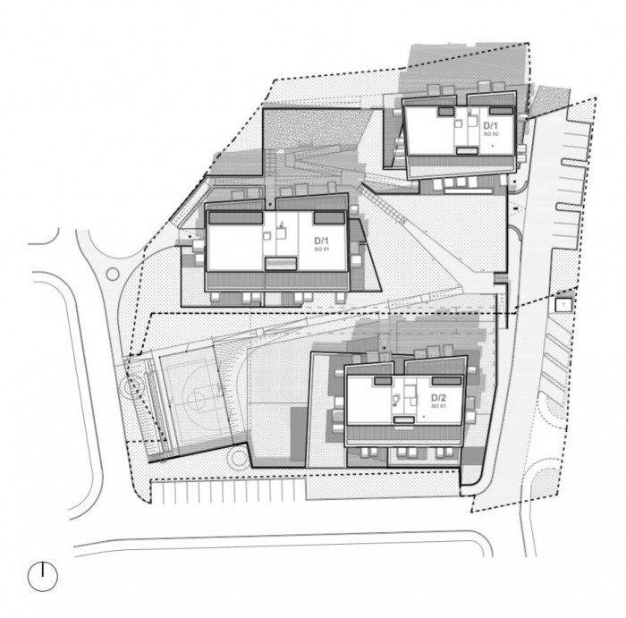
Svahovitý pozemok na okraji zástavby v najsevernejšej časti Dúbravky umožnil rozvinúť urbanistický koncept troch samostatne stojacich objektov vzájomne prepojených podzemnou garážou. Na streche garáže sme rozvinuli poloverejný priestor s výsadbou, s detským ihriskom, s malým multifunkčným športoviskom a privátnymi predzáhradkami bytov umiestnené v partery.
Každý obytný dom má samostatný hlavný vstup z poloverejného priestoru párteru, pričom všetky objekty sú vzájomne prepojené podzemnou garážou. Dispozične sú byty s predzáhradkami odlišne riešené od bytov na typickom podlaží.
Architektúra záhradných víl spočíva v jednoduchej členenej forme nepravidelného lichobežníkového tvaru s betónovým parterom, šachovnicovou fasádou typických podlaží končiaci penthousovými bytmi na streche s drevenou rastrovanou fasádou. Betónová fasádna stierka oddeľuje byty na prízemí s predzáhradkami od dominantnej šachovnicovej fasády s typickými podlažiami.
Typické podlažia tvorí biela fasádna omietka so šachovnicovo rozmiestnenými oknami v štyroch šírkach. Pre vytvorenie svetlých interiérov sme znížili parapety všetkých okien na minimum a tiež sme použili francúzke okná s nulovým parapetom. Po dodržaní predpísaných vertikálnych a horizontálnych požiarnych pásov sme okná na šachovnicovej fasáde opticky zvýšili priznaným nadokenným kastlíkom pre žalúzie vo farbe rámu okien. Koncept šachovnicovo rozostavených okien nie je samoúčelný, využili sme ho, pretože nám umožnil väčšie vyloženia obnažených betónových balkónov bez nepriaznivého ovplyvnenia svetlotechniky bytov na nižších podlažiach, najväčšie vyloženia balkónov majú od 2 do 2,5 m. Jednotlivé balkóny, sú vytvorené pomocou skladačky, spodná doska je odlievaná na stavbe a betónové prefa boky sú k nej primontované. Čelá balkónov sme ponechali sklenené aby sme zachovali prizodzený nádherný výhľad z francúzkych okien do átrií medzi budovami a tiež okolitej krajiny s peknými výhľadmi.
Penthousové byty so veľkými strešnými terasami sú oddelené od typického podlažia s použitím vertikálne rastrovaného dreveného fasádneho obkladu s termoborovíc, čím tvoria tvoria tak samostatne stojace objekty na streche bytového domu. Z čelnej strany penthousových bytov sme umiestnili preskenné výklady, čím sme prepojili obytné priestory s exteriérom.
Konštrukčný systém bytových domov je v podzemných podlažiach kombinovaný zo železobetónových stĺpov a stien. Nadzemné podlažia sú vytvorené so železobetónových stien. Jednotlivé konštrukcie v bytoch sú navrhnuté tak aby neprekážali prípadným dispozičným zmenám.
Väčšina bytov v záhradných vilách je striktne oddelená na dennú a nočnú časť. Vstupujeme do zádveria, z ktorého je prístupné wc s malým umývadlom, nasleduje obývacia izba prepojená s kuchyňou. Na dennú zónu je napojená predsieň, resp. malá chodba, z ktorej sú prístupné izby a kúpeľňa. Kúpeľňu tvorí štandardne druhé wc, vaňa, umývadlo a priestor pre práčku.
- Autoři: Peter Vavrica, Marek Lohinský, Robert Janega, Jozef Čižmár, Branislav Hantabal
- Spolupráce: Rastislav Navrátil, Martin Vodrážka, Miroslav Lackovič, Tomáš Papp
- Země: Slovensko
- Město: Bratislava - Dúbravka
- Ulice, číslo: Martina Granca
- Datum projektu: 2014
- Realizace: 2018
Související architekti
Mohlo by vás zajímat




















