Architektura
/
rodinné domy
Alpské déjà vu
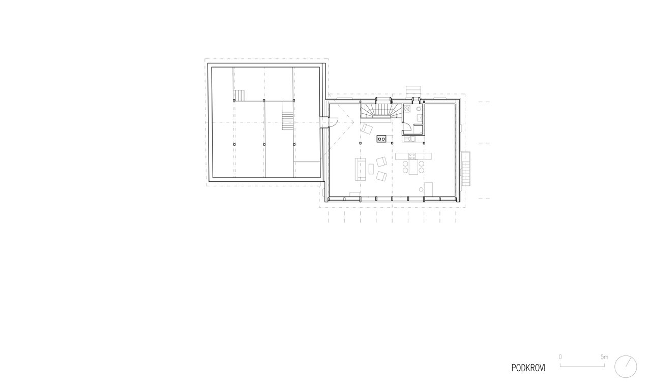
Ač práce českého ateliéru, najdeme ji ve Švýcarsku. Zadáním bylo vytvořit současný víceúčelový dům pro širší rodinu. Novostavba nahrazuje vyhořelou usedlost (na místě zůstala poue stodola) v alpském kantonu Appenzell a soudobými architektonickými prostředky interpretuje obraz tradiční architektury. Objekt se tak nesnaží za každou cenu odlišit, detaily však odhalují vlastní jedinečnost.
SKUPINA , 1. 8. 2016
Více k tématu
- Autoři: Marcela Steinbachová, Martin Rusina
- Ateliér: SKUPINA
- Spolupráce: Linda Kolomazníková, Robert Marte
- Země: Švýcarsko
- Realizace: 2014
- Město: Mohren
- Suma: 800 000.00
- Měna: EUR
- Datum projektu: 2012
- Realizace: 2014
- Zastavěná plocha: 111.00m2
- Poznámka: Foto © Filip Šlapal