Areál vysokoškolských kolejí od studia 51N4E nabízí klidné nádvoří se zahradami
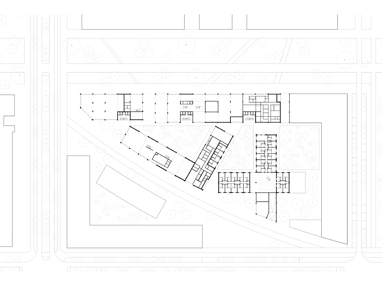
V roce 2013 zvítězilo belgické studio 51N4E v architektonické soutěži na areál vysokoškolských kolejí ve městě Palaiseau nedaleko Paříže. Architekti svůj návrh pojali jako kombinaci několikapatrových a přízemních budov, mezi kterými vznikly klidné dvory a zahrady.
David Seidler , 6. 11. 2019
Architektonické studio 51N4E architects se sídlem v Bruselu založili roku 1998 architekti Johan Anrys a Freek Persyn. Svou tvorbu popisují jako zájem o architekturu, rozvíjení konceptů a strategických prostorových plánů. Renomé si získali projekty konverzí a revitalizací veřejných prostor, návrhy velkých urbanistických měřítek i zpracováním několika rezidenčních projektů.
Před dvěma lety studio dokončilo realizaci studentského bydlení jihozápadně od Paříže, v univerzitním městě Palaiseau. Severozápadní část, Plateau de Saclay, je oblastí s dlouhou zemědělskou tradicí. Po druhé světové válce se začala proměňovat v univerzitní a výzkumné centrum, dnes známé jako evropské Sillicon Valey. Projekt vznikl na základě vyzvané architektonické soutěže z roku 2013 a je součástí plánu na proměnu zeleného pásu okolo města zpracovaného ateliéry XDGA a MDP.
Více k tématu

Architekti z 51N4E ve spolupráci s Bourbouze & Graindorge navrhli jeden z definovaných bloků. Tři pozemky tvůrci uchopili jako jeden celek. Hranici potvrdili pravoúhlými budovami ve tvaru písmene „L“ s možností zkrácení cesty skrz vnitroblok. Šestipatrové domy na obvodu bloku přecházejí v patrové budovy definující vnitřní dvory a zahrady. Intimnější prostředí obklopují vřelé prostory neformálního charakteru.
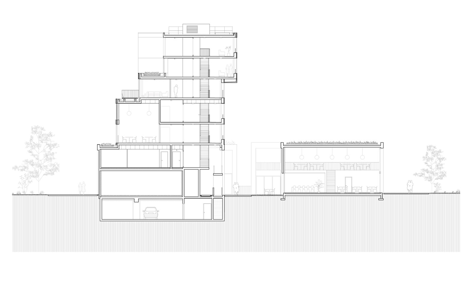
Konstrukce je betonová prefabrikovaná, v přízemí a patře z červeně probarveného betonu. V ostatních patrech ze světle růžových hladkých dílů. Objekt je na severní straně podsklepený s parkováním, uvnitř bloku leží domy na terén.

Projekt se zabývá spojením metropolitního měřítka s menšími objemy bydlení. Ambicí bylo v různých úrovních namíchat sdílené bydlení okolo společných prostor studovny, prádelny, venkovních teras, univerzitní kantýny, etc. Na zastavěné ploše 11 200 metrů čtverečních architekti pracovali se společnými prostory o dvoupatrové výšce, prosvětlením chodby přirozeným světlem a velkými otvory pro dostatek světla v místnostech.

Se studiem 51N4E se můžete seznámit na přednášce architekta Dietera Leyssena “Politika přítomnosti” ve čtvrtek 7. listopadu od 19:30 v CAMPu, ve které představí proměnu brutalistních věžáků ze 70. a 80. let v centru Bruselu. Přednáška je součástí cyklu Belgická inspirace, který pořádá spolek KRUH.


Tento článek vznikl za podpory společnosti Českomoravský beton v rámci popularizace tématu "Beton v architektuře".
Českomoravský beton, a. s., je holdingovou společností, která prostřednictvím vlastních betonáren a dceřiných společností dodává transportbeton v široké škále pevnostních tříd a druhů na území České republiky a Slovenska. Skupina, jejíž vznik spadá do počátku 90. let minulého století, v současné době provozuje 85 nově postavených nebo zrekonstruovaných betonáren, které mají zavedený systém managementu kvality, systém managementu hospodaření s energií a splňují nejpřísnější ekologická kritéria. Celá skupina – holdingová společnost a její dceřiné společnosti, historicky označované ve svém názvu TBG – vystupuje na trhu ČR pod jednou společnou obchodní značkou Českomoravský beton.
- Ateliér: 51N4E
- Země: Francie
- Město: Palaiseau
- Suma: 430 000 000.00
- Měna: CZK
- Datum projektu: 2013
- Realizace: 2017
- Užitná plocha: 11 200.00m2
- Plocha pozemku: 7 067.00m2