
Ateliéry, skatepark, tanec. Proměna opuštěné továrny na kulturní a sportovní centrum
Jak nakládat s opuštěnými industriálními komplexy, které se rozprostírají na okrajích většiny západoevropských měst? Jednu z možných odpovědí nabízí projekt GAME Streetmekka v dánském městě Viborg od studia EFFEKT, které vdechlo nevyužívanému industriálnímu objektu zcela nový život.
Vojtěch Eliáš , 5. 3. 2023
Budova v průmyslové části čtyřicetitisícového města Viborg dříve sloužila k výrobě větrných mlýnů. Po jejím vyřazení z provozu se dlouho přemýšlelo, jak s areálem naložit. Přestože objekt nemá vysokou architektonickou hodnotu a v poslední době svému okolí prakticky nic nepřinášel, došlo místo demolice k jeho kompletní transformaci na kulturní a sportovní centrum GAME Streetmekka Viborg.
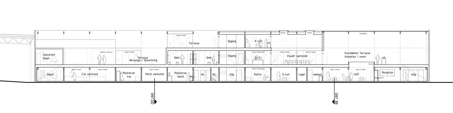
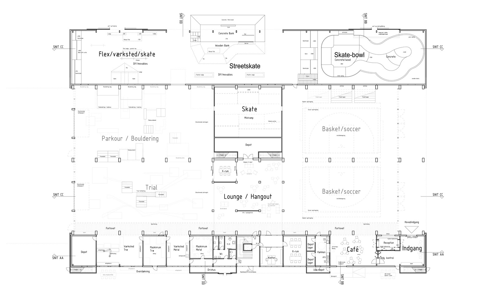
Z původní budovy zachovali architekti z kodaňské architektonické kanceláře EFFEKT pouze jednoduchý skelet umožňující svobodnou variaci prostorů, které se z velké části otevírají do svého okolí. Původní plechovou fasádu nahradily průsvitné polykarbonátové panely, které vnitřek budovy prosvětlují a zároveň přinášejí do okolní změti šedých skladovacích hal nový impuls. K centrálnímu otevřenému prostoru pak architekti přidali další dvě boční přístavby: první slouží k zastřešení skateparku, druhá obsahuje všechna studia, místnosti a skladovací místnosti, tak aby centrální část mohla zůstat maximálně otevřená.
Více k tématu

Jednotlivé části budovy využívají různé tepelné a světelné podmínky v závislosti na typu provozované činnosti. Architekti přitom vycházeli přímo z městského prostředí, aby poznali, jaké podmínky se hodí pro konkrétní volnočasové aktivity. V přístavbě s teplotou jednadvacet stupňů se proto nacházejí ateliéry, kavárna, nahrávací studio a další místnosti. V centrální části objektu, kde zůstává teplota okolo patnácti stupňů, je umístěno basketbalové hřiště, parkourová dráha, a dráha pro horská kola. Tento prostor zároveň postupně přechází do druhé přístavby bez vytápění, která slouží skateparku. Poslední zóna pak zůstává otevřená do exteriéru, který je upraven tak, aby mohla většina aktivit probíhat i venku mimo budovy - od dráhy pro horská kola přes parkour, další basketbalová hřiště, graffiti zeď až po odpočinková místa.
Na celkové ploše 10 000 metrů čtverečních tak vznikl inspirativní prostor určený převážně mladší generaci, který zvyšuje kvalitu okolí nejen po stránce estetické, ale především co se týče nabídky kulturního a sportovního zázemí pro místní obyvatele. Z projektu, kde je jedním z hlavních investorů místní městská část, by si mohla vzít příklad také mnohá česká města.


- Země: Dánsko
- Město: Viborg
- Ulice, číslo: 8800
- Realizace: 2018
- Užitná plocha: 3 170.00m2