Architektura / občanské stavby

BOD architekti zvítězili v soutěži na nový polyfunkční dům v Praze-Slivenci

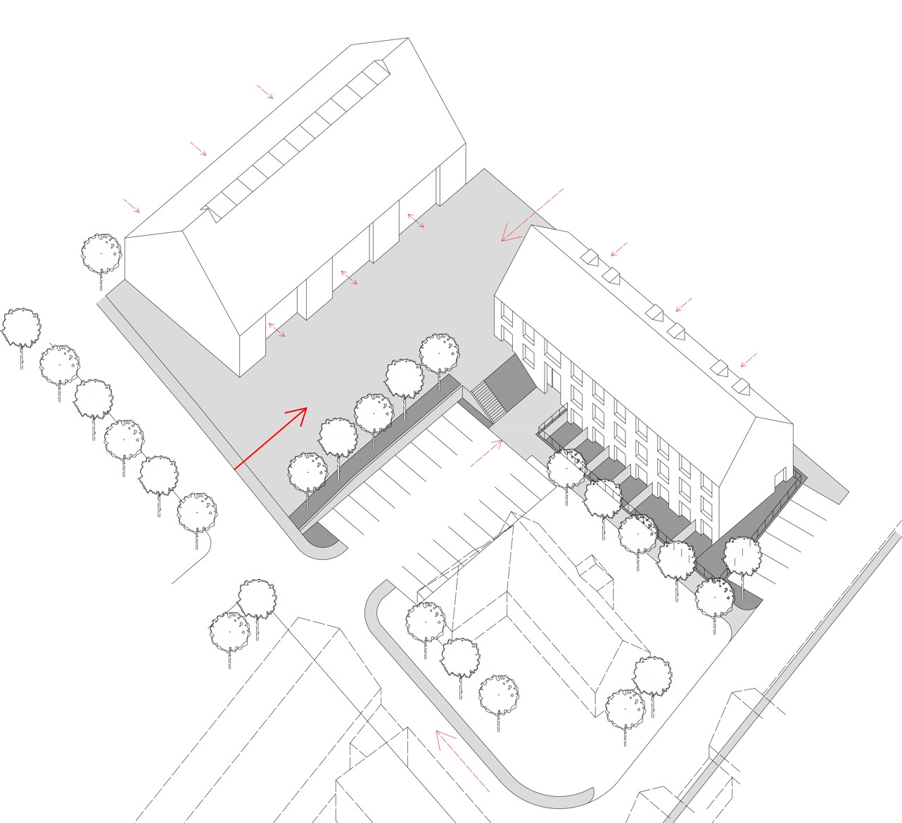
V září minulého roku vyhlásila městská část Praha-Slivenec architektonickou soutěž na návrh nového polyfunkčního domu, který by přispěl ke kulturnímu a společenskému životu obce. Náplní objektu měla být knihovna, společenský sál a malometrážní byty určené seniorům, mladým rodinám či zaměstnancům obce. V konkurenci šesti vyzvaných účastníků zvítězilo studio BOD architekti, jehož návrh hmotově i materiálově vychází z původní hospodářské zástavby v okolí. Na druhé pozici se umístil projekt architekta Martina Matisky, jako třetí skončil návrh studia 3+1 architekti. Soutěž organizovala českobudějovická platforma CBArchitektura.

bod architekti , 12. 3. 2019

bod architekti
  • autor: bod architekti *
  • publikováno: * 12. 3. 2019
  • zdroj: * Autorská zpráva

Nabídky práce

Mohlo by vás zajímat

Generální partner
Hlavní partneři