Břidlicový kostel
Rozdíly mezi exteriérem a interiérem se neprojevují pouze v materiálech, kontrast lze nalézt i ve struktuře povrchu a jeho členění. Střecha a stěny kostela jsou pokryty čtvercovými plátky španělské břidlice. Vstupní detaily jsou naopak z mědi a dřeva, které budově dávají pocit tepla a lidské měřítko. Další primární vnější povrchy jsou z finské žuly.
EARCH.CZ , 30. 6. 2017
Dřevo, převážně finský smrk, hraje v interiérech nenahraditelnou roli, jsou z něho vyrobeny jak podlahy, tak i strop a obložení na stěnách. Vytváří příjemné prostředí a jejich struktura – tvořená léty a suky – propůjčuje velkým plochám menší rozměr. Skořepina kostela je kombinací lepených dřevěných rámů a dřevěné mřížové konstrukce, která prostor sakrální stavby sdružuje do jediné entity. Tvar vnitřního roštu, upevněný na primárních konstrukcích, odkazuje na gotické katedrály.
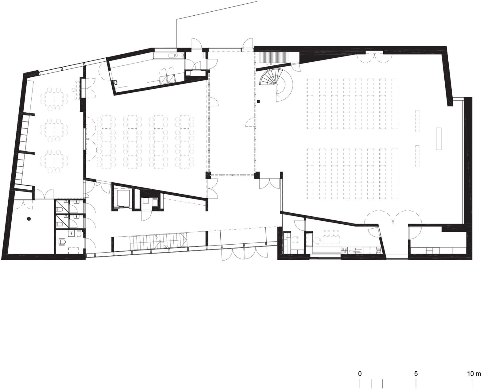
Dispozice kostela je variabilní. Farní sál se může s hlavní lodí spojit v jeden velký chrámový prostor. V galerii mezi sály se nacházejí varhany a kanceláře. Sakrální prostory byly umístěny do středu, což je možná trochu klišé, ale svůj praktický účel to plní. Méně významné místnosti jsou pak okolo. Jedná se například o sakristii, skladovací prostory a kuchyň.
- Autoři: Anssi Lassila, Jani Jansson, Teemu Hirvilammi
- Ateliér: OOPEAA Office for Peripheral Architecture
- Země: Finsko
- Realizace: 2010
- Město: Jyväskylä
- Datum projektu: 2006
- Realizace: 2010
- Užitná plocha: 1 250.00m2
- Materiál: dřevo
- Foto ©: © Jussi Tiainen