
Buddhistické centrum uzavřené do okolní přírody
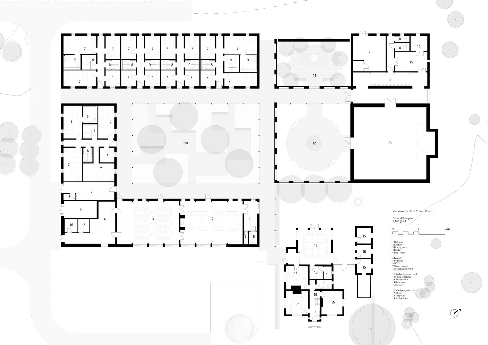
Meditační centrum od Walters & Cohen Architects se nachází uprostřed hrabství Suffolk na východě Anglie. I když většina hlavních částí centra směřuje k centrálnímu nádvoří, objekt je celkově propojen s okolní přírodou. Trochu tak připomíná klášterní osadu.
EARCH.CZ , 26. 10. 2017
V podstatě jde o uspořádání několika nádvoří a místností, ve kterých byla využitá široká paleta jemných materiálů. Každodenní obytné prostory jsou obložené dřevem a nachází se ze všech stran nádherně upraveného nádvoří. To je určeno k výuce, meditaci a relaxaci. Chodníkem je nádvoří spojeno s klidnějšími částmi objektu i okolní krajinou.
Několik klidných dvorků, které jsou odděleny tmavou mřížovou zdí, obchází hlavní svatyni. Betonové prvky jsou využity hlavně na orámování prostor, ať už jde o portálové rámy do společných prostor nebo kolonády vedoucí ke dvorům.
Kompletní soubor pokojů, dvorů a materiálů vyvolává pocit lehkosti a citlivosti. Celý areál vznikl úzkou spoluprací mezi klientem a architektem s cílem vytvořit co nejpříjemnější místo pro návštěvníky.
- Ateliér: Walters & Cohen Architects
- Země: Velká Británie
- Město: Suffolk