
Bydlení pro střední třídu, spousta zeleně i nová galerie. Poblíž Londýna stojí (skoro) ideální město
Moderní byty, ústřední topení, otevřený prostor všude kolem. S takovými ideály se v 60. let postavilo město Milton Keynes v Anglii – podobně jako československá sídliště. Něco z toho snu má v sobě i nová galerie MK Gallery od ateliéru 6a architects. Příchozí vítá zářícím srdcem.
Karolína Vránková , 4. 12. 2023
Galerie je pokrytá stříbrným fasádním pláštěm, díky kterému se jinak leskne přes den, jinak za západu slunce a jinak v noci – „jako batikované tričko,“ říká architekt Tom Emerson z ateliéru 6a, který o galerii (a další své práci) nedávno přednášel v Praze.
O batice mluví, protože byla v módě na přelomu 60. a 70. let, tedy v době vzniku města Milton Keynes. Také barvy v interiéru jsou dobové. Celkově je galerie „blyštivý chrám miltonkeyneské mytologie,“ píše v recenzi The Guardian. Hlavní prvky této mytologie je sociální spravedlnost a všem přístupná moderní krása. Taková je i nová galerie.
Více k tématu
Zlatá šedesátá proti bytové krizi
Milton Keynes je srozumitelná legenda, stejný sen o moderním bydlení v zeleni snili v té době i modernističtí plánovači na různých místech zeměkoule a ostatně i architekti československých sídlišť. Také Milton Keynes byl projekt finančně podporovaný státem, město postavené pro spravedlivé řešení bytové nouze, opak stísněného života ve starých čtvrtích.
V anglickém podání vypadá ovšem jinak než česká sídliště. Město vyrostlo v zemědělské oblasti v hrabství Buckinghamshire přibližně 80 km od Londýna. Jeho urbanistická koncepce je založena na rastru vzájemně se křížících silnic pro auta. Pěší a cyklistické trasy jsou vedené pod nimi. V každém poli mřížky se nachází okrsek většinou řadových rodinných domů. Na projektování jednotlivých částí se podíleli architekti, tehdy začínající, dnes slavní jako například Norman Foster, Sir Richard MacCormac, Henning Larsen nebo Ralph Erskine.

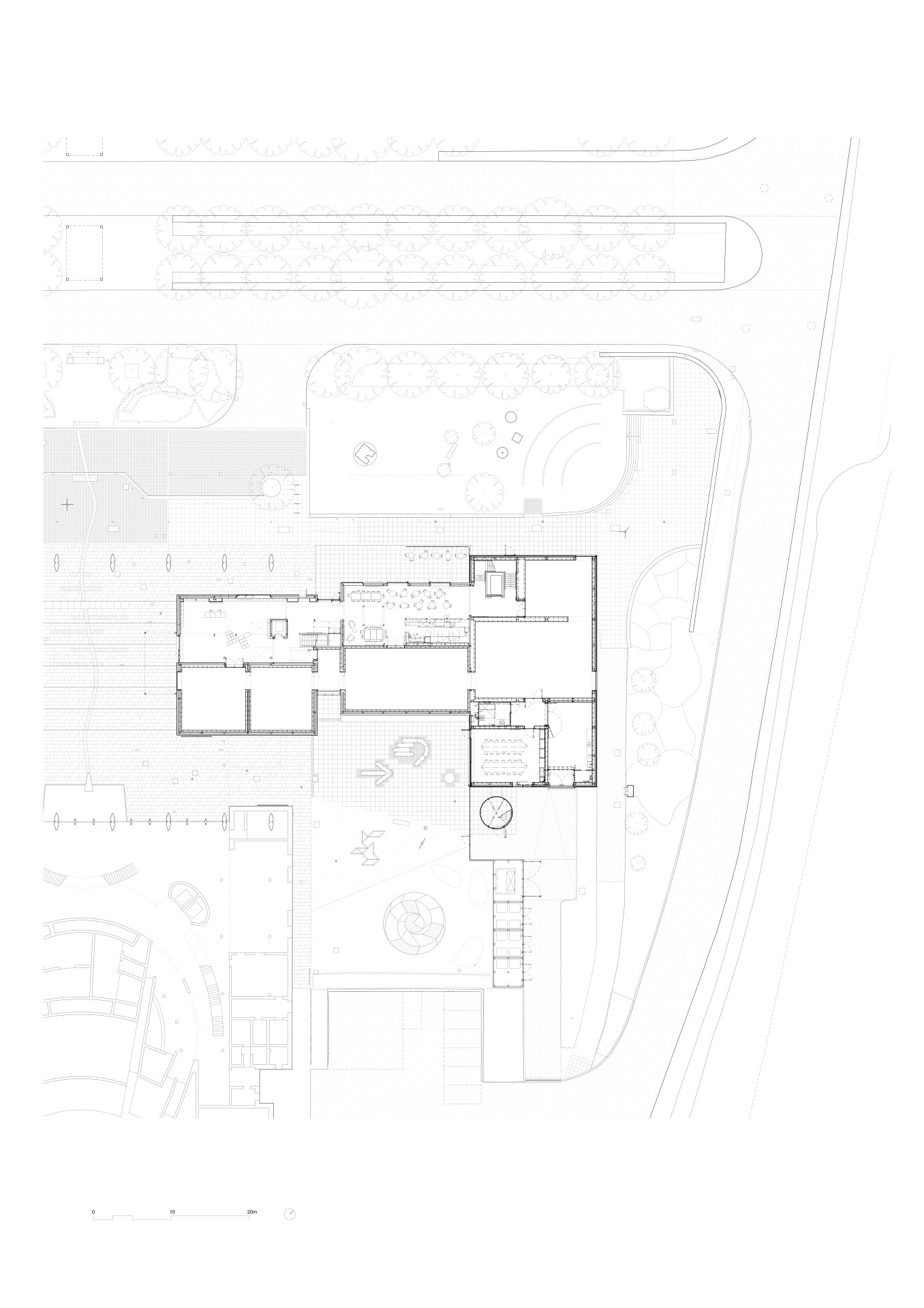
Náměstí tu není, centrem je rozlehlá, rovná a dlouhá třída Midsummer Boulvard, podél níž se nacházejí služby a obchody – zejména elegantní „miesovsky“ prosklené nákupní centrum od architekta Dereka Walkera otevřené v roce 1979; v 80. letech to byl největší „shopping mall“ v zemi. Je tu také elegantní kvádr nádraží, kde se natáčel Superman 4. A v neposlední řadě taky nová galerie.
Peprmintová a čokoládová
Galerie byla v Milton Keynes vybudovaná už v 90. letech, ale nová přístavba je mnohem nápadnější a nápaditější. Na mnoho způsobů odkazuje na minulost MK. Vstupuje se kolem neonového srdce, což je transformace loga, které mělo do nového města nalákat obyvatele. Uvnitř jsou použity současné materiály jako překližka a beton, ale také oranžové, hnědé a zelené odstíny pečlivě vybrané z katalogu nábytkové firmy Habitat z roku 1978.

Červeno-žluté vybavení kavárny zase odkazuje na interiér futuristické kanceláře, kde seděli a rýsovali plánovači nového města. Také grafický design nebo hřiště před galerií je insiprované jejich myšlenkami a dobovou estetikou.
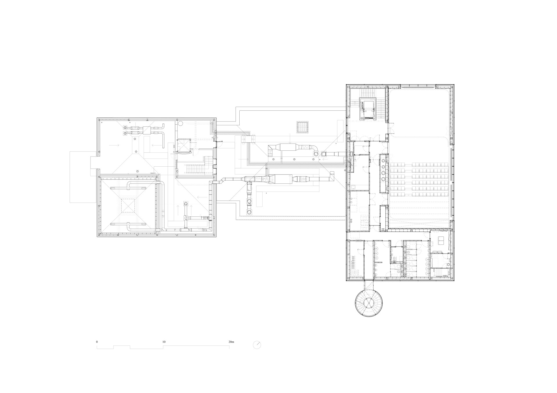
Uvnitř jsou výstavní prostory, místnosti určené pro vzdělávání zmíněná kavárna a také Sky Room, přednáškový sál s velkým půlkulatým oknem, které vyhlíží do přilehlého parku, a hledištěm pro 200 osob.
Se stavbou Milton Keynes se začalo v roce 1967 – tedy zhruba v době, kdy se rozjížděla výstavba sídlišť v Československu. Milton Keynes vychází ze stejných ideálů a má i podobné problémy. Rozhodně to není město krátkých vzdáleností a rastr silnic spíše vybízí k používání aut. Řídké osídlení bez jasného centra nepodporuje komunitní a občanský život. Rozlehlé zelené plochy jsou nákladné na údržbu. 0onotónnost a monofunkčnost obytných okrsků se jeví poněkud nudná a nezáživná. A nyní město odolává náporu developerů, kteří zahušťují a narušují původní urbanistické schéma různou, často nekvalitní a nekontextuální zástavbou.
Milton Keynes tedy rozhodně není ideální město. Je to však památník idealismu 60. let a dosud také relativně dostupné bydlení pro čtvrt milionu lidí. Chybí tu ovšem věci, které k dobrému bydlení a životu také patří: komunita, kultura, vědomí vlastní identity. To vše by mohla podpořit právě MK Gallery, která se dívá do zeleně jako budoucnosti.
- Ateliér: 6a architects
- Země: Velká Británie
- Město: Milton Keynes
- Adresa:: 900 Midsummer Boulevard, Milton Keynes, United Kingdom
- Realizace: 2019
- Investor: MK Gallery
- Krajinářská architektura: jcla