
Bydlet mezi rostlinami. Rodinný dům v Malajsii tvoří betonové květináče
Do homogenní rezidenční zástavby hlavního města Malajsie Kuala Lumpur navrhl místní ateliér FORMZERO po všech stránkách netradiční rodinný dům. Obytné místnosti ukryly architekti za terasovitou kompozici betonových kvádrů, které slouží jako květináče pro bujnou vegetaci. Podle autorů představuje projekt „Planter Box“ současné pojetí bydlení v tropech, které reaguje na soběstačný a udržitelný životní styl.
Tereza Hůrská , 20. 3. 2019
Malajský architekt Cherng Yih Lee založil v roce 2012 ateliér FORMZERO s jasnou myšlenkou – přinést do městského prostředí více přírody. Své projekty tak nechává bohatě prostupovat zelení, přičemž stále přichází s novými variantami vztahu mezi architekturou a přírodou. Zaměření ateliéru se nevymyká ani rodinný dům v malajské metropoli Kuala Lumpur, který architekt navrhl pro starší manželský pár vášnivých pěstitelů rostlin.
V rezidenční zástavbě představuje projekt „Planter box“ nepřehlédnutelný objekt. Oproti ostatním domům je řešen jako třípodlažní stavba, která se zcela vymyká standardu okolních budov. Spíše než rodinný dům totiž připomíná vertikální zahradu – konstrukci porostlou bujnou vegetací, jež dokonale ukrývá jakékoliv dění uvnitř objektu.
Více k tématu

Výraznou uliční fasádu tvoří kaskádovitá kompozice různě velkých betonových kvádrů sloužících jako prostorné květináče až pro čtyřicet druhů rostlin. Kromě prostoru pro pěstování rostliny plní zároveň každý květináč funkci zavlažovací a retenční nádrže pro zadržování srážkové vody. Všechny betonové boxy jsou pak napojeny na společný systém kontrolující hladinu vody v každém z nich. Betonovou obálku získal také stávající vzrostlý jasmín před domem, představující přechod mezi konstrukcí domu a městským mobiliářem a zároveň propojení mezi uživateli domu a jeho okolím.
Při tvorbě návrhu architekti vycházeli z principů tradičních tropických obydlí, což se vedle pěstování rostlin nebo například využití přirozeného větrání projevilo i na samotném vzhledu betonu. Ten byl odléván do bambusového bednění, které výsledné konstrukci dalo hrubý „nedokonalý“ výraz.

Oproti uzavřenému a mohutnému dojmu, který dům vzbuzuje při pohledu z ulice, je jeho interiér řešen jako maximálně otevřený a vzdušný prostor. Beton obvodových stěn se střídá s velkorysým prosklením zajišťujícím interiéru dostatečný přístup denního světla a kontakt s rostlinami v exteriérových květináčích. Vedle zeleně, betonu a skla se do atmosféry vnitřních prostor výrazně propisuje také černý kov použitý na minimalistické konstrukci schodiště.
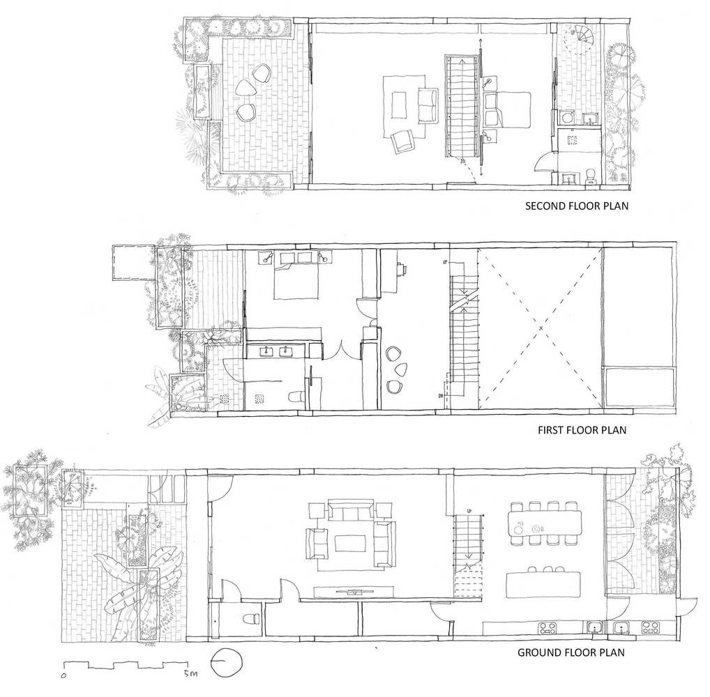
V přízemí se nachází hlavní obytný prostor s jídelnou a kuchyní, v horních podlažích jsou pak umístěny soukromější prostory jako jsou ložnice, koupelna či pracovna. V každém patře navazují obytné místnosti na venkovní terasy, střešní terasa s výhledem na město je přístupna po točitém schodišti.


Tento článek vznikl za podpory společnosti Českomoravský beton v rámci popularizace tématu "Beton v architektuře".
Českomoravský beton, a. s., je holdingovou společností, která prostřednictvím vlastních betonáren a dceřiných společností dodává transportbeton v široké škále pevnostních tříd a druhů na území České republiky a Slovenska. Skupina, jejíž vznik spadá do počátku 90. let minulého století, v současné době provozuje 85 nově postavených nebo zrekonstruovaných betonáren, které mají zavedený systém managementu kvality, systém managementu hospodaření s energií a splňují nejpřísnější ekologická kritéria. Celá skupina – holdingová společnost a její dceřiné společnosti, historicky označované ve svém názvu TBG – vystupuje na trhu ČR pod jednou společnou obchodní značkou Českomoravský beton.
- Autoři: Cherng Yih Lee
- Země: Malajsie
- Město: Kuala Lumpur
- Datum projektu: 2017
- Užitná plocha: 340.00m2
- Materiál: beton