
Cesta z města
Při návratu z města zpět na rodnou hroudu nejde vždy jen o potřebu většího klidu, přírodu, příbuzné, zahradu, možnost postavení rodinného domku a staré kamarády. Většinou ale ano. Jednoduchý dřevěný rodinný dům je tak místem, kde lze spokojeně žít a všech těchto benefitů užívat.
Endemit , 16. 1. 2017
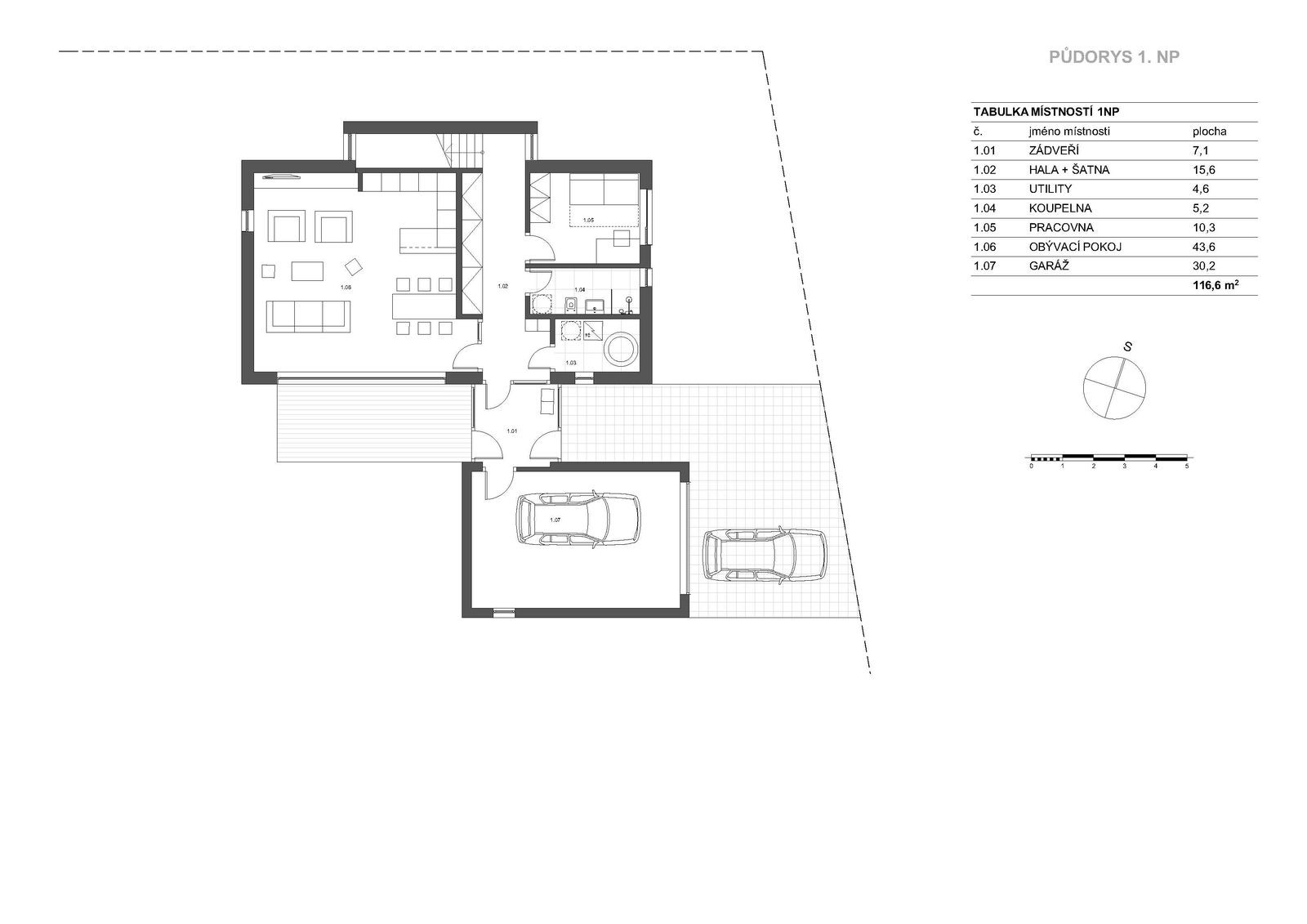
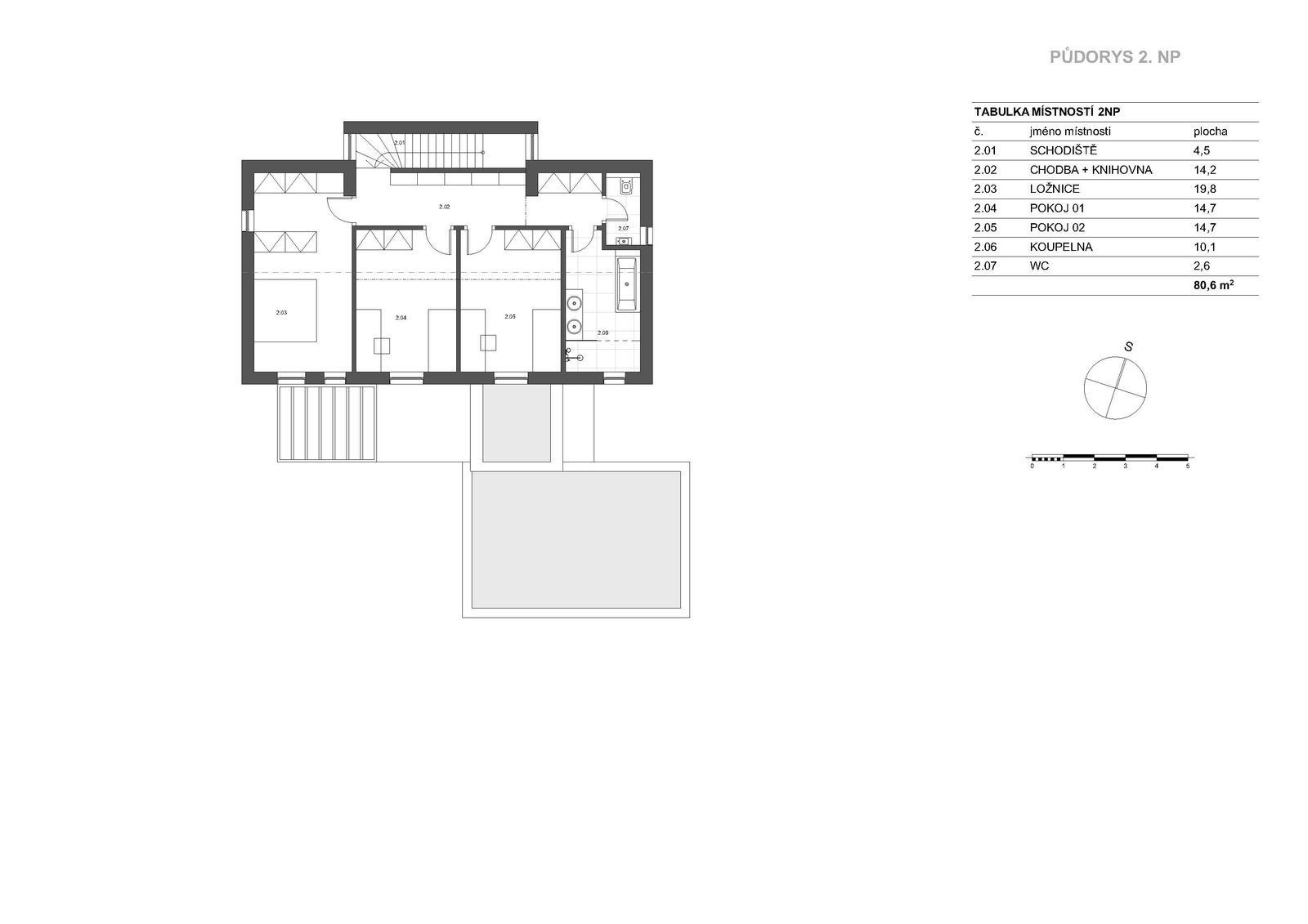
Dům v Doubravě jsme navrhovali pro mladé manžele, kteří se po mnohaletém působení v Praze rozhodli vrátit se svou rozrůstající se rodinou do rodného kraje. Pro výstavbu nového příbytku zvolili parcelu s krásným výhledem na skály a les na okraji vesničky poblíž Turnova, na prahu Českého ráje. Stavba je koncipována jako dům vesnického charakteru pro čtyřčlennou rodinu. Šikmou střechou a obdélným půdorysem navazuje na okolní zástavbu, zatímco moderním řešením detailů a kompozicí okenních otvorů získává soudobý charakter. Garáž je postavena samostatně bez požadavku na vytápění a vzhledem ke komfortnějšímu užívání je propojena proskleným zádveřím s vlastní hmotou domu. Pozice garáže také přirozeně chrání soukromí uživatelů domu na zahradě a odděluje soukromou část zahrady od komunikace.
Všechny obytné pokoje orientujeme na slunný jihozápad, schodiště a provozní zázemí na sever. Důraz byl kladen na propojení hlavního obytného prostoru se zahradou velkými prosklenými otvory. Konstrukčně jsou dům i garáž řešeny jako lehká dřevostavba v systému two by four. Pro vnější obklad jsme zvolili kombinaci neošetřených modřínových prken na obytný dům a cementovláknitých desek na objekt garáže a hmotu schodiště. Vnější vzhled domu nepopírá, ale naopak podtrhuje použití dřeva v konstrukčním systému a ukazuje jeho přirozenou krásu.
Více k tématu
- Autoři: Blanka Johanisová, Viktor Johanis
- Ateliér: Endemit
- Země: Česká republika
- Město: Doubrava u Turnova
- Suma: 4 500 000.00
- Měna: CZK
- Realizace: 2014
- Užitná plocha: 197.00m2
- Zastavěná plocha: 147.00m2
- Materiál: dřevo