
Citlivá rekonstrukce propojila historický dům v Sušici s devadesátkovou přístavbou
Historický dům s pozdější přístavbou v městské památkové zóně Sušice vyžadoval po letech chátrání kompletní rekonstrukci. Architekti obě stavby funkčně provázali a architektonicky sjednotili, aby lépe zapadaly do svého prostředí.
EARCH.CZ , 3. 12. 2021
Západočeské Sušici se vzhledem k její poloze přezdívá „brána Šumavy“. Historické jádro města jasně vymezují středověké hradby táhnoucí se po celém jeho obvodu. K těmto hradbám se přimyká také historický řadový dům, který v 90. letech rozšířila nová přístavba – ta však až do příchodu architektů před pár lety zůstala ve fázi hrubé stavby.
Záměrem majitelky, místní rodačky žijící v zahraničí, byla kompletní přestavba obou objektů, tak aby v nich mohly vzniknout dva samostatné byty. S projektem se obrátila na pražské architekty ze studia NEUHÄUSL HUNAL, kteří tak řešili úpravy jak exteriéru, tak i interiérů domů.
Více k tématu
Architekti David Neuhäusl a Matěj Hunal svým návrhem podtrhli charakter obou staveb a zároveň je funkčně provázali do jednoho celku. „Hlavní myšlenkou návrhu je funkční sjednocení a zároveň odlišení nového a starého. Rekonstrukce původního objektu respektuje jeho ráz, zatímco přístavba byla jemně aktualizována. Obojí se odehrává v rámci stávajících hmot bez jakýchkoli externích doplňků,“ přibližují svůj přístup autoři.

Odlišení staveb se projevuje barevností fasád i pojetím oken. Historický dům získal klasická dvoukřídlá okna usazená v líci fasády, zatímco okenní otvory v novější přístavbě mají seříznuté pravé ostění. Na proběhlou rekonstrukci pak upozorňují také dvě fixní zasklení – jedno v místě dřívějšího vstupu, druhé nahradilo původní malý otvor přerušující římsu starého domu.

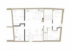
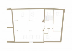
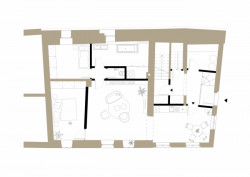
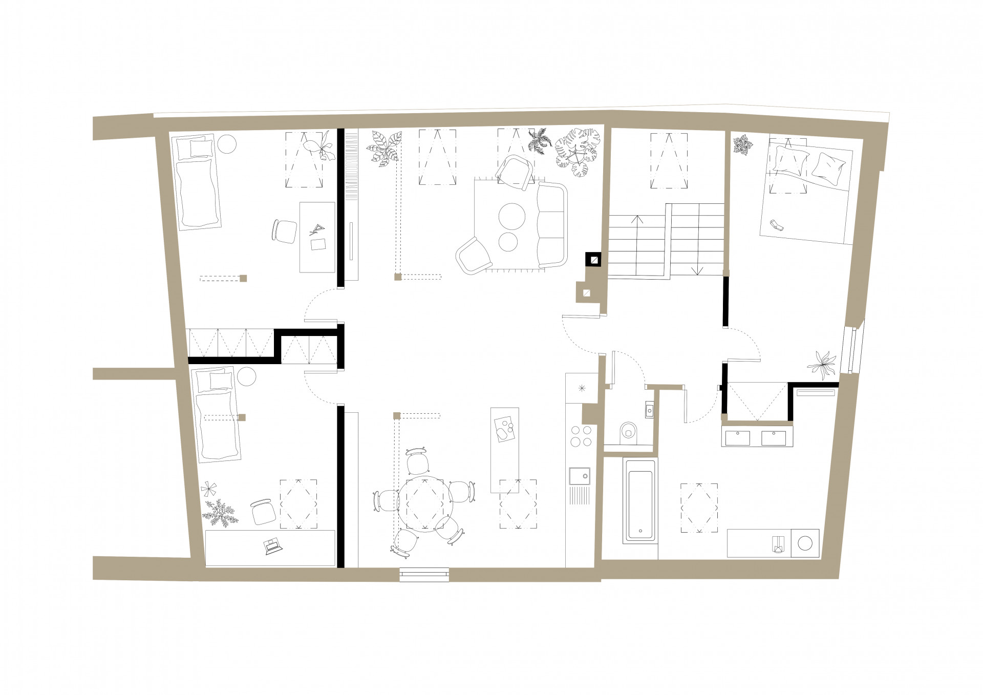
Aby v dvojdomě mohly vzniknout dva oddělené byty, bylo potřeba kompletně přepracovat dispoziční řešení domů. „Princip provozního rozdělení se proto změnil z horizontálního (podle objektu) na vertikální (podle podlaží),“ vysvětlují architekti. Byty mají společný vchod ze štítové stěny, přičemž v přízemí vznikl menší třípokojový byt s kamny a v podkroví stometrový byt s velkorysým obytným prostorem, kde zůstaly přiznané původní dřevěné konstrukce.

- Autoři: David Neuhäusl, Matěj Hunal
- Ateliér: Neuhäusl Hunal
- Město: Sušice
- Ulice, číslo: Příkopy 19
- Projekt: 2018
- Realizace: 2020
- Hlavní inženýr: Jan Vošalík
- Kameník: Martin Beránek
- Investorka: Petra Beránková