Historickou budovu muzea v centru Kolína doplnila po rekonstrukci skleněná přístavba
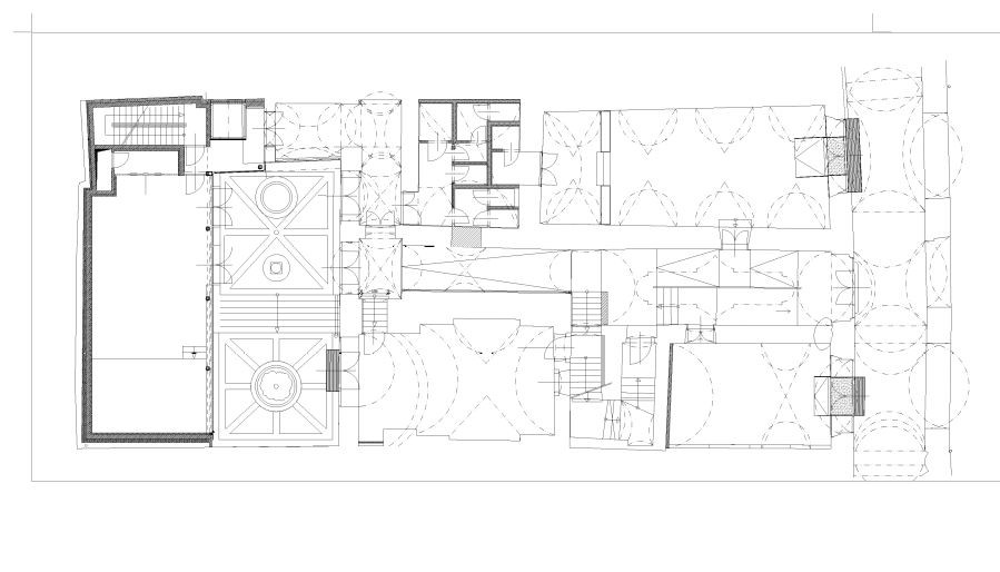
Při pohledu z kolínského Karlova náměstí se tzv. Viegertovský dům, v němž sídlí místní Regionální muzeum, od sousedních budov ničím neliší. Historická budova však v posledních letech prošla komplexní rekonstrukcí, během níž byla k původnímu objemu přidána i nápadná novostavba sloužící jako muzejní depozitář. Památkově chráněný objekt doplnila architektka Irena Hrabincová přístavbou s opláštěním z průsvitného profilovaného skla, které rozehrává nepravidelné uspořádání okenních otvorů.
IHARCH s.r.o. , 27. 3. 2019
- Autoři: Irena Hrabincová
 - Spolupráce: Iveta Chitovová, Petr Gucfa, Jakub Sedlák, Eva Faberová
 - Země: Česká republika
 - Realizace: 2018
 - Město: Kolín
 - Ulice, číslo: Karlovo náměstí, 8
 - Datum projektu: 2012
 - Realizace: 2018
 - Užitná plocha: 2 105.00m2
 - Zastavěná plocha: 610.00m2