Industriální areál cínové huti v Hamburku doplnila po rekonstrukci měděná přístavba
Hamburskou cínovou huť z druhé poloviny 19. století doplnila během celkové rekonstrukce areálu přístavba od místního ateliéru LRW Architekten. Architekti v návrhu navázali na kvality industriálních budov, současně se však nebáli experimentovat a obalit novou stavbu do netradičního pláště. K původnímu objektu z režného zdiva tak přibyla novostavba s měděným pláštěm.
EARCH.CZ , 26. 9. 2018
Cínová huť vznikla v Hamburku jako součást bývalé společnosti Hamburger Gummi-Waaren Compagnie okolo roku 1876. Během své existence prošla budova několika přestavbami a byla také rozmanitě využívána, například jako kulturní centrum.
V rámci koncepce obnovy rekonstruovaného prostoru v Hamburské čtvrti Barmbek-Nord bylo rozhodnuto o výstavbě nového městského muzea, které by podpořilo kulturní dění v dané oblasti. Cínová huť měla být přestavěna a rozšířena přidáním nové budovy s cílem rozšířit kulturní prostor a zároveň vytvořit nový veřejný prostor. Za tímto účelem byla v roce 2010 vyhlášena architektonická soutěž, v níž zvítězil hamburský ateliér LRW Architekten.
Více k tématu

Nová budova tvarově navazuje na stávající objekt cínové hutě, materiálově se ale obě stavby rozcházejí. Starší cihlová budova nyní kontrastuje s novou přístavbou, kterou pokrývají pláty tmavě hnědé mědi. Měděný plech obaluje střechu i fasádu nové budovy a zároveň ji propojuje s charakterem industriálního prostředí.
Obě části objektu jsou propojeny lehkou skleněnou konstrukcí, čímž vzniká jednotný celek, zároveň však průhlednost mezilehlého „skleníku“ umožňuje vnímat obě části budovy jako samostatné stavby. Centrální prosklená část navíc umožňuje průchod a vizuální propojení mezi jižním a severním nádvořím.
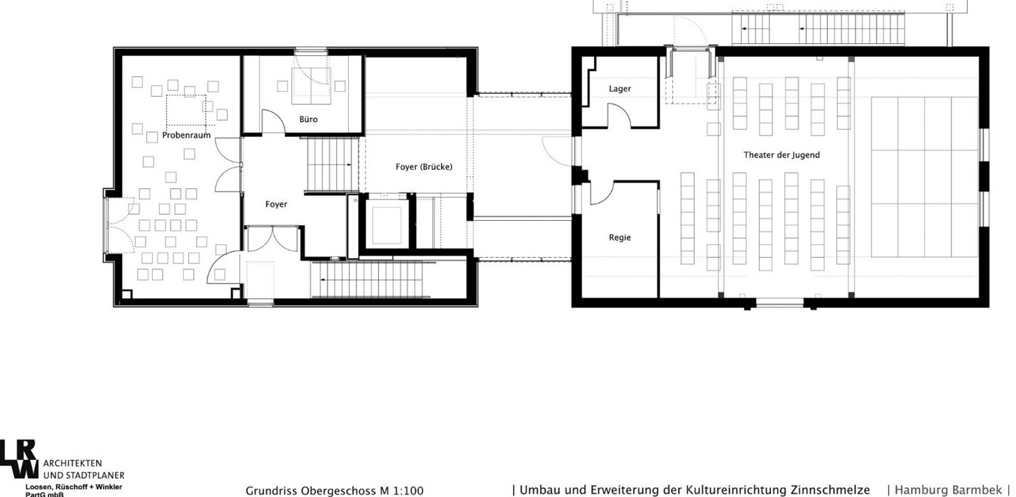
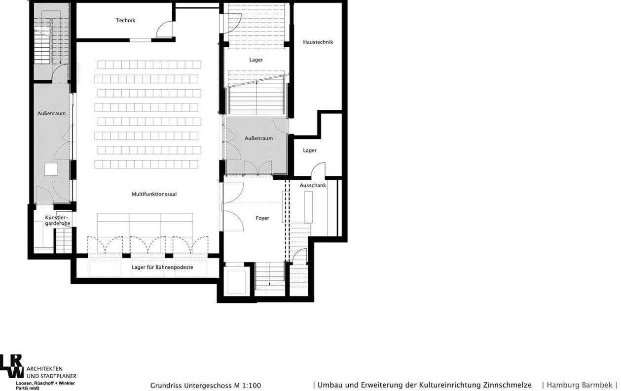
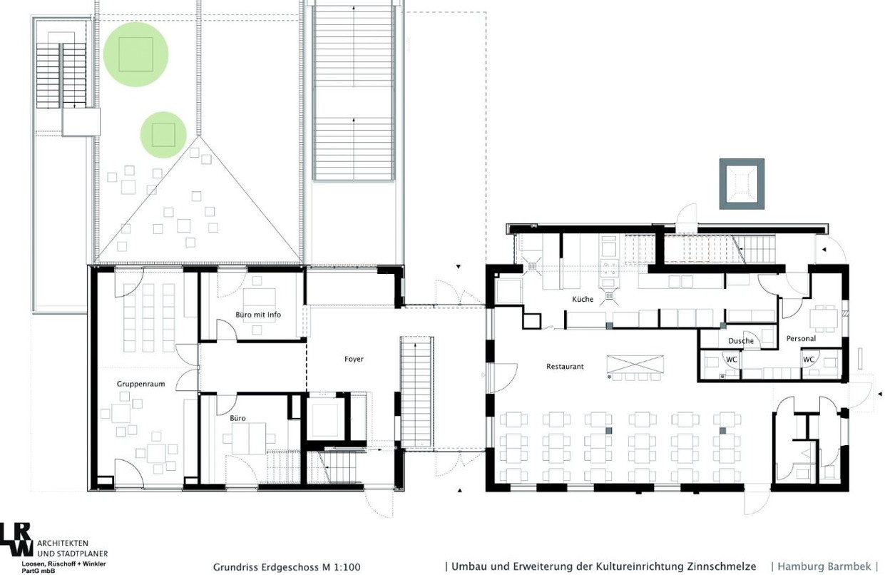
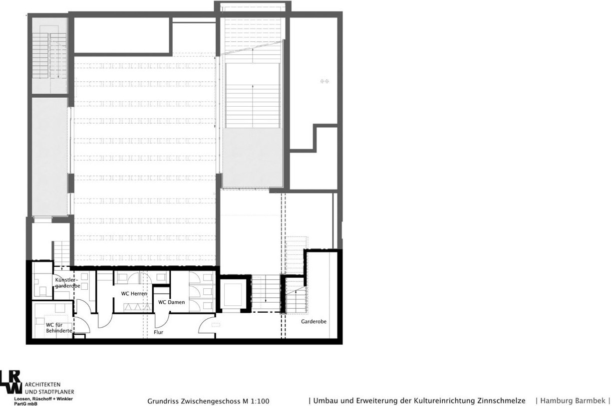
Kvůli rozšíření kulturního zařízení „Tin SmMelter“ byla stávající budova zásadně přestavěna a prostorově reorganizována. Srdcem nové budovy je multifunkční sál se 150 místy v dolním patře budovy, který je z nádvoří přístupné velkým samostatně stojícím schodištěm. Ve spojovací části se nachází foyer a výstavní plochy. V horním patře staré budovy je navíc umístěn divadelní sál, který byl doplněn o novou zkušebnu.
- Země: Německo
- Město: Hamburg - Barmbek
- Realizace: 2015
- Materiál: měď
