Interiér velkorysého loftu od CMC architects odráží industriální charakter bývalého pivovaru v Holešovicích
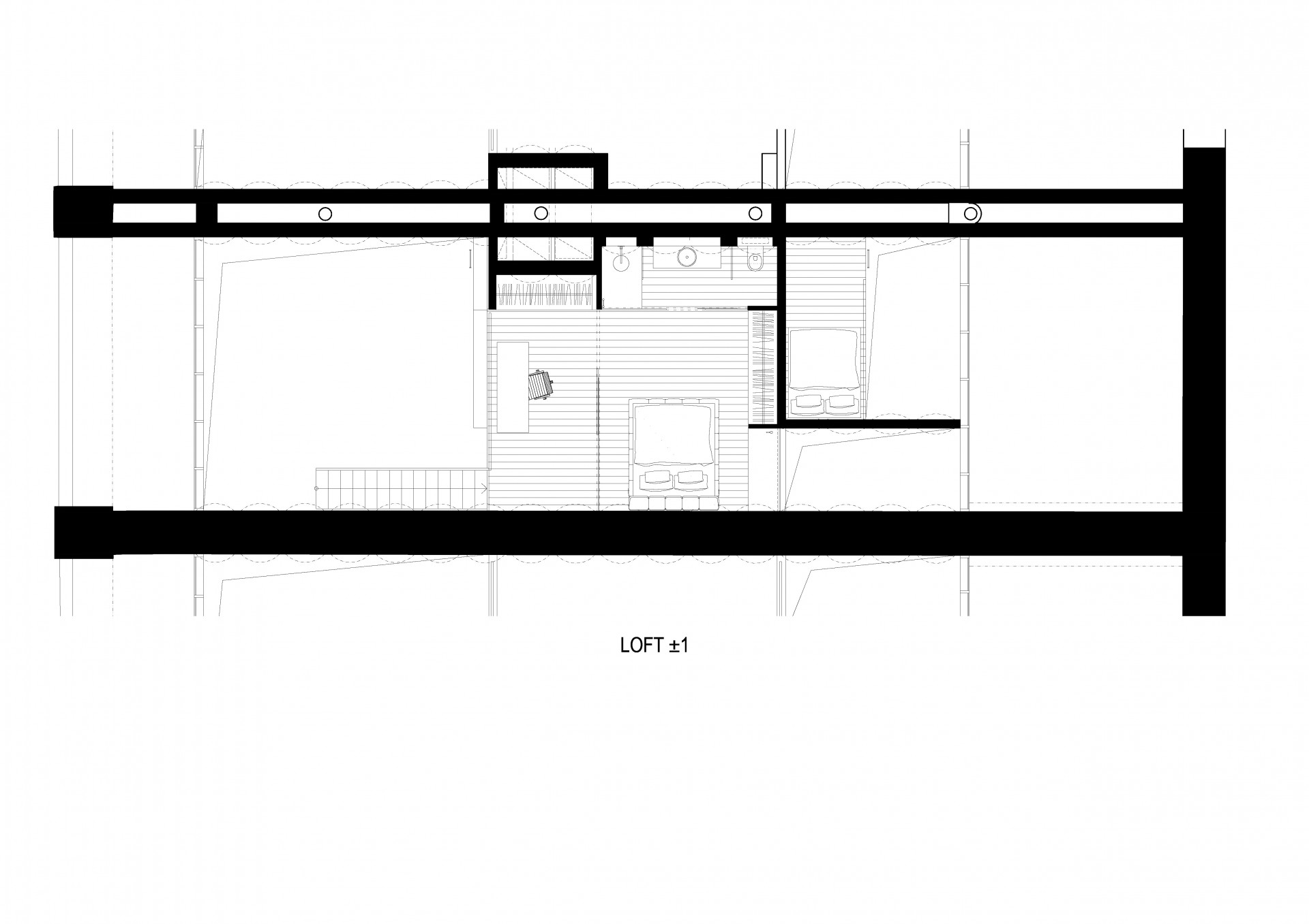
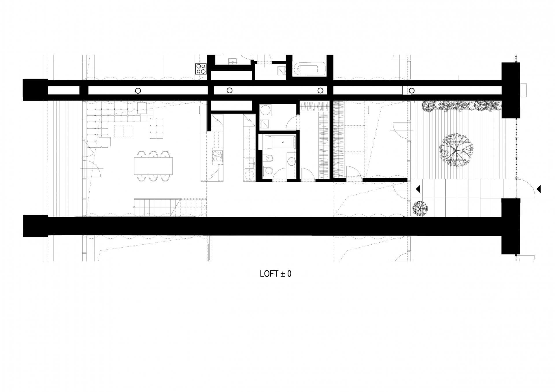
Před deseti lety dokončili architekti z kanceláře CMC architects David R. Chisholm a Vít Máslo rozsáhlou konverzi budovy Prvního Měšťanského Pivovaru v pražských Holešovicích. V objektu vzniklo celkem čtyřicet loftů - jeden z těch, které se nacházejí v původních pivovarských skladech, nyní stejní autoři navrhli na míru novému majiteli. Interiér loftu o výšce šesti metrů zcela jasně odkazuje k industriálnímu dědictví místa. Luxusně pojatý byt tak v tomto směru definuje odhalená cihlová zeď, mnoho prvků z černé oceli nebo třeba betonová podlaha.
CMC ARCHITECTS , 25. 11. 2019
- Autoři: Vít Máslo, David Richard Chisholm
- Ateliér: CMC ARCHITECTS
- Spolupráce: Evžen Dub, Gabriela Sekyrová, Nela Niederle
- Země: Česká republika
- Realizace: 2019
- Město: Praha 7 - Holešovice
- Ulice, číslo: Jankovcova 1037/49
- Datum projektu: 2018
- Realizace: 2019
- Užitná plocha: 120.00m2