Architektura / rodinné domy

Josef Pleskot navrhl vilu vklíněnou do svahu nad Prahou

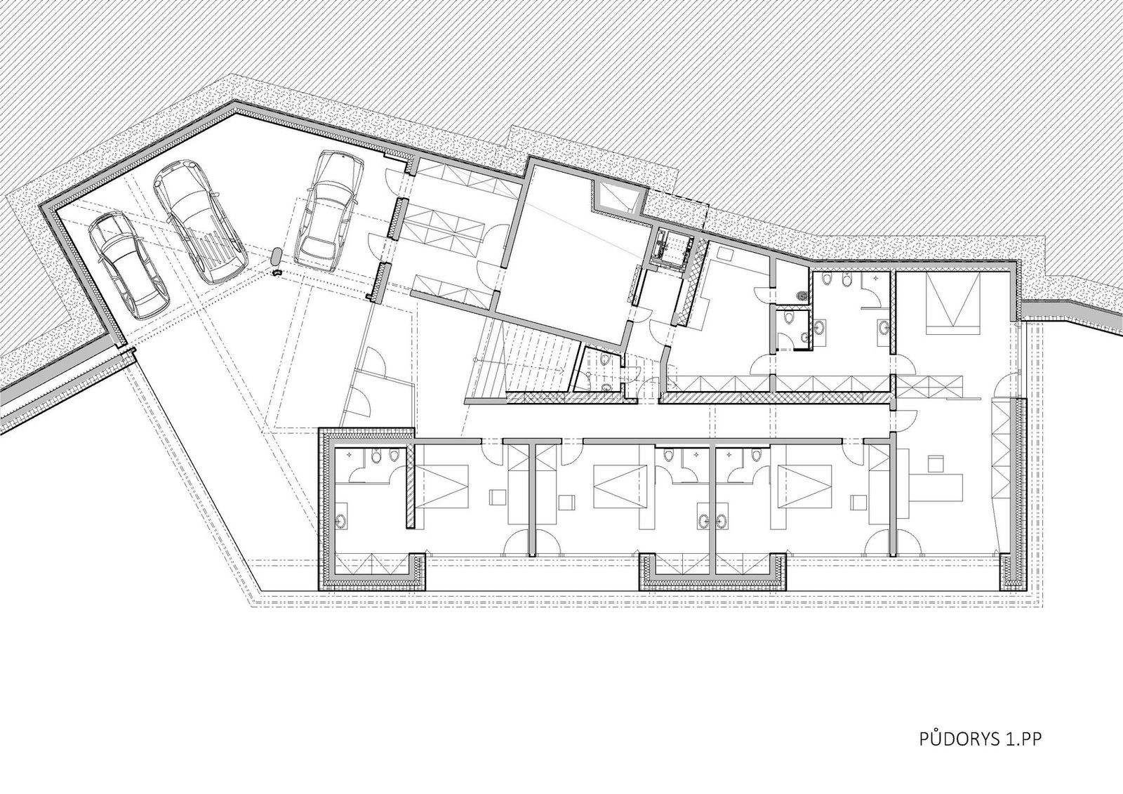
Vila ve svahu s horizontálními liniemi, kamenným obkladem a franzouzskými okny splývá s terénem, čemuž napomáhají také zelené střechy. Otevřené dispoziční řešení umožňuje daleké výhledy do okolí.

AP ATELIER , 20. 12. 2017

  • Autoři: Josef Pleskot
  • Ateliér: AP ATELIER
  • Země: Česká republika
  • Realizace: 2016
  • Město: Praha 6 - Dejvice
  • Datum projektu: 2012
  • Realizace: 2016
  • Užitná plocha: 474.00m2
  • autor: AP ATELIER *
  • publikováno: * 20. 12. 2017
  • zdroj: * Autorská zpráva

Mohlo by vás zajímat

Generální partner
Hlavní partneři