Když obec myslí i na teenagery. Jeneč má nový „plácek“ pro skejťáky a všechny ostatní
Malá obec Jeneč nedaleko Prahy otevřela nový skatepark podle návrhu U/U studia. Dala na dlouholeté přání místních teenagerů, kteří doposud neměli oficiální skejtovací plácek. Podobný si podle autorů zaslouží každá menší obec.
Jan Bureš , 3. 10. 2023
„Většina českých obcí má opravenou kanalizaci, vodovody i chodníky, má dětské hřiště, soukromé sportoviště jako tenisové kurty, halu nebo ‚atleťák‘. Ale něco, co by bylo pro místní teenagery a zadarmo, často chybí. A tak mládež svůj čas často tráví na autobusových zastávkách,“ říká spoluautor návrhu a skejťák Martin Hrouda.
Martin společně se svým kamarádem Jirkou Kotalem založili U/U studio, které se navrhováním podobných prostranství zabývá. A jelikož jde o architekty a skejťáky v jednom, patří v tomto odvětví ke špičce, která má za sebou řadu povedených realizací jako například proměnu prvního i druhého podchodu na Vltavské nebo skatepark a volnočasový areál v Řeporyjích.
Více k tématu
„Hlavní kouzlo tohoto projektu pro mě je, že opravdu každá malá obec může mít podobný plácek pro volnočasové aktivity,“ dodává Martin Hrouda. Jeneč je s 1300 obyvateli skutečně malou obcí, i tak však má vlastní komunitu skejťáků a jezdců na koloběžkách a BMX. Ti měli doposud k dispozici pouze plochu s vlastnoručně vyrobenými překážkami za nádražím, a tak usilovali o nový oficiální plácek.

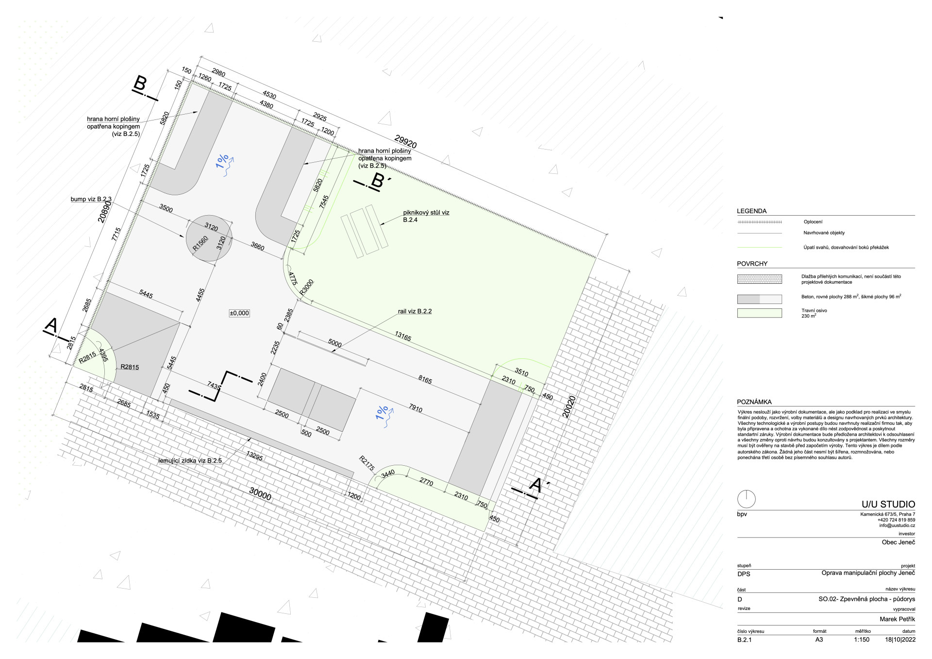
Starosta obce jejich přání nakonec vyslyšel a oslovil U/U studio k vypracování návrhu na místě staré manipulační plochy, která fungovala jako autobazar a následně jako odkladiště a deponie materiálu. Odkaz k autobazaru areálu autoři připomněli jeho starou cedulí, kterou zrecyklovali a v podobném duchu přetřeli nápisem „Skatepark Jeneč“.
U/U nelenili a jelikož nejlepší návrhy vznikají v úzkém kontaktu s budoucími uživateli, rychle se spojili přímo s „lokály“ (slang pro místní jezdce), aby jejich budoucí plácek obsahoval vše, co by si přáli. Skatepark nakonec navrhli tak, aby obsahoval různé typy překážek a své útočiště si zde našli jak začátečníci, tak zkušení jezdci.
Hlavním limitem pozemku byly dráty nízkého napětí, které vedou přes část pozemku. A aby do nich náhodou někdo z jezdců při triku „nenaletěl“, vytvořili zde autoři pobytovou zeleň jako „chillout“ zónu pro samotné uživatele, nebo návštěvníky, kteří se zastaví na chvíli posedět a pozorovat vyznavače kolečkových sportů v akci.

Během realizace pak museli autoři přesvědčit starostu a technický dozor o smyslu určitých opatření. Jednalo se především o sundání plotu směrem k parkovišti, aby prostor nebyl oddělen bariérou, ale naopak otevřen okolí nebo vytvoření pítka, které uživatelé ocení především v letních měsících.
A jak lépe někoho přesvědčit nežli mu ukázat již fungující příklad postavený na podobných principech. A tak namísto zdlouhavého vysvětlování vzali autoři starostu a dozor na výlet do Řeporyjí, kde se místní areál podle jejich návrhu, bez plotů a pro všechny, stal brzy po svém otevření oblíbeným místem.
A zafungovalo to: „Na dalším kontrolním dnu byli úplně nadšení a říkali, že jsme je tam měli poslat hned na začátku projektu,“ doplňuje Martin Hrouda. Starosta tak po svém výletu odsouhlasil zrušení plotu i pítko, které se v areálu brzy objeví.
Výlet do Řeporyjí starostu dokonce okouzlil natolik, že začal uvažovat i o expanzi skateparku do míst zelené plochy, až se dráty nízkého napětí zakopou pod zem. V budoucnu by zde mohl vzniknout pumptrack či oragnická rampa, označovaná skejťáckou terminologií jako „bazén.“.

Skatepark je proveden z hladkého železobetonu, po kterém kolečka krásně a tiše sviští. Akcenty zelené a žluté oživují jinak monotónní betonovou plochu a celý areál je doplněn několika břečťany, typickou dřevinou lokality, které po pár letech vytvoří v letních měsících v areálu příjemné ostrovy stínů.
Namísto přeplácání malé plochy spoustou překážek, jak tomu u podobných areálů často bývá, jdou autoři spíše opačným směrem. Podle motta „méně je více“ s rozmyslem umísťují každou překážku tak, aby kolem ní bylo dostatek prostoru a člověk si jí mohl naplno vychutnat. Tato filosofie navrhování, kterou má za následek propojení architektury a vášně pro skateboarding, je jedním z důvodů, proč si projekty U/U studia u uživatelů získávají nemalou oblibu.

Autorům se tak povedlo dokončit další realizaci, která poskytla útočiště místním teenagerům, na které se často zapomíná. A to za velmi přijatelný rozpočet, pohybující se okolo dvou miliónů korun. Dost možná tento projekt nepřispěje pouze obci Jeneč, ale třeba na něj narazí další starosta, který se rozhodne zrealizovat podobný projekt – místa pro svobodné a neorganizované aktivity mladších ročníků chybí ještě v mnoha obcích.
- Ateliér: U / U studio
- Země: Česká republika
- Město: Jeneč
- Projekt: 2022
- Realizace: 2023
- Grafika: Jakub Karlík
- Zhotovitel: Bonidee skatepark
- Jezdec: Tonda Záhorka