Knesl + Kynčl navrhli nájemní bydlení v centru Prostějova
Novostavba bytového domu se nachází v těsné blízkosti centra Prostějova, na jedné z historických cest – ulici Žeranovské. Pozemek je součástí rostlého bloku tvořeného převážně vícepodlažní zástavbou městského charakteru. Na západní straně sousedí s prolukou, na východě navazuje na jednopodlažní rodinný dům venkovského charakteru, který bude výhledově odstraněn a nahrazen vícepodlažní bytovkou. Oba domy budou provozně i esteticky provázány.
knesl kynčl architekti , 9. 7. 2018
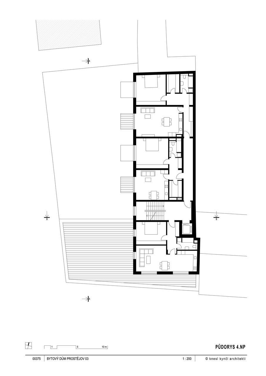
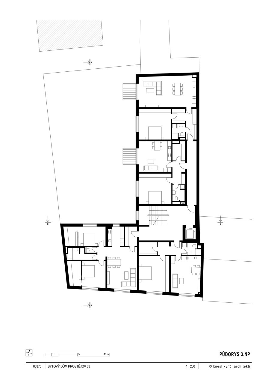
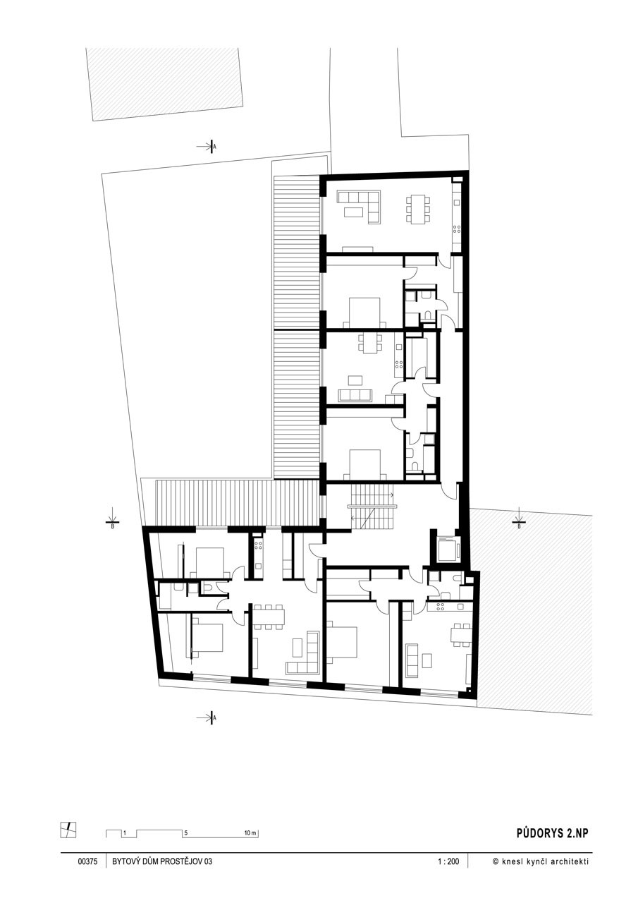
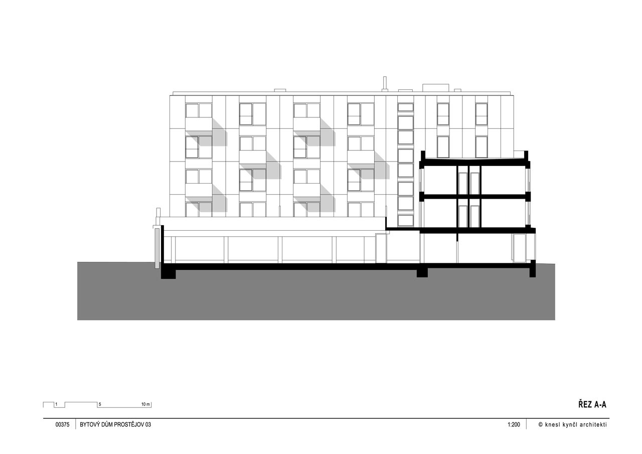
Dům je navržen na půdorysu tvaru písmene L a je složen ze dvou částí: třípodlažní hmota s mírně zapuštěnou vstupní částí definuje uliční frontu, kolmá pětipodlažní hmota, orientovaná do klidného vnitrobloku, ustupuje od uliční čáry, a odlehčuje tak celkové měřítko domu. Obě části jsou sjednoceny fasádou z vláknocementových desek v dvojí barevnosti – přírodní a antracitové. Uliční fasáda je členěna horizontálními římsami a pravidelným rastrem oken, dvorní část je oživena rytmickou hrou velkoryse předsazených balkonů.
Uliční fasáda směřuje na jih a kombinuje světlý a tmavý obklad Cembrit Patina; tmavá barva se uplatňuje zejména v částečně zapuštěné vstupní části a dále ve formě horizontálních říms, okenních parapetů a nadpraží.
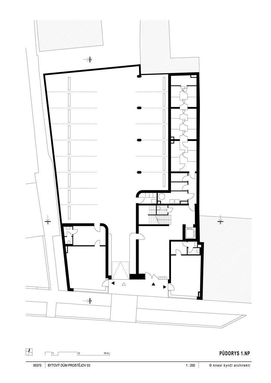
Všechny obytné místnosti v dvorní části domu jsou orientovány na západ; jednotlivé byty jsou doplněny balkony, byty v 1. NP mají prostorné terasy; parkování je řešeno částečně pod objektem, částečně v otevřeném vnitrobloku.
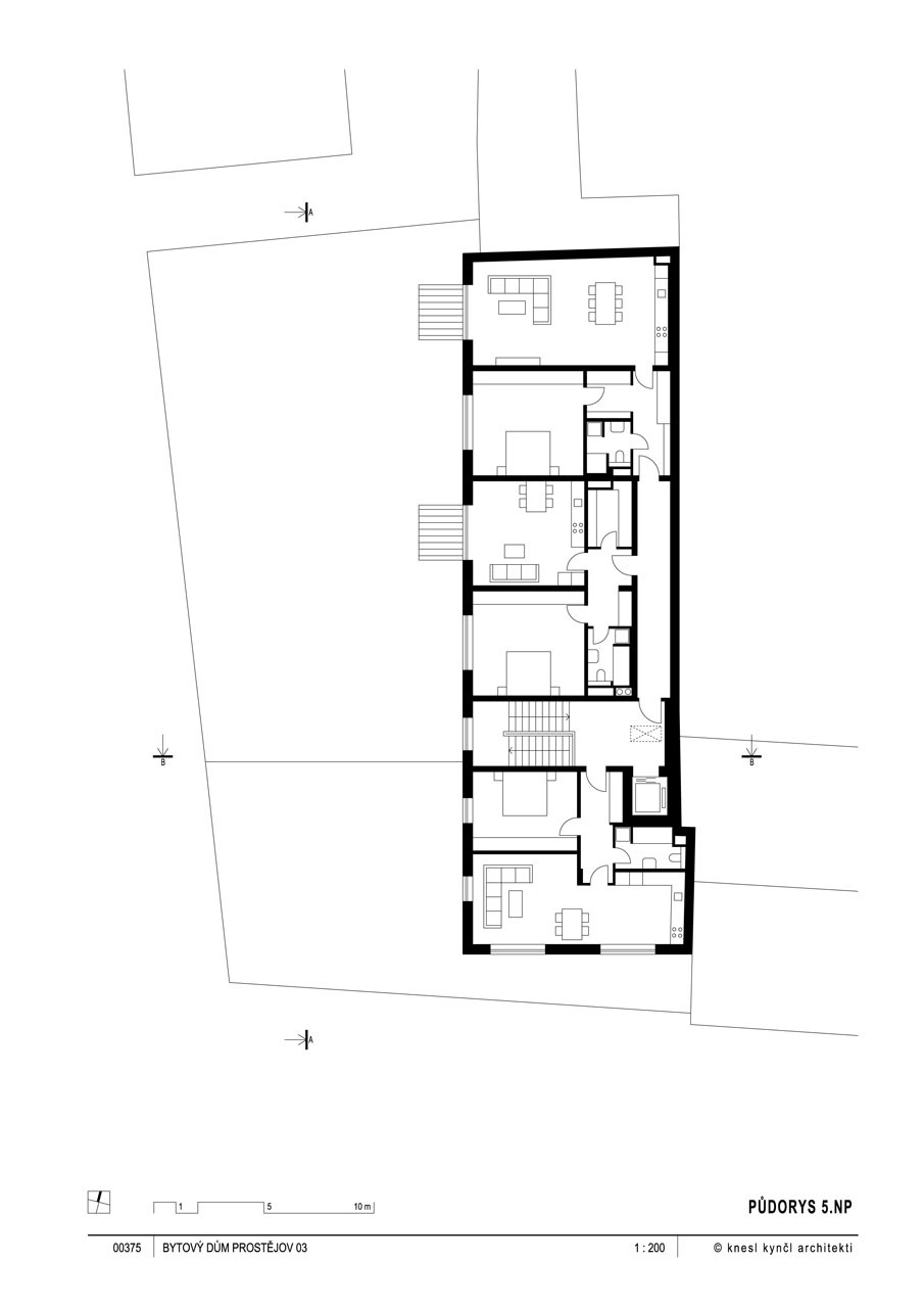
Dům byl původně koncipován jako bydlení pro seniory s 26 upravitelnými jednotkami. V průběhu výstavby však investor změnil náplň a dům byl realizován se 14 nájemními bytovými jednotkami o velikostech 2+kk a 3+kk, které jsou umístěny v 2. až 5. NP a jsou přístupné ze společné schodišťové haly s výtahem. Většina bytů je doplněna balkonem, střecha nad uliční částí domu slouží jako pobytová terasa náležející k bytu ve 4. NP. V přízemí jsou situovány dvě pronajímatelné obchodní jednotky s prosklenými výkladci směrem do ulice a zázemí domu. Nezastavěný prostor vnitrobloku je upraven pro parkování.
V návrhu byl kladen důraz na řešení vstupních prostor, které jsou sice prostorově skromné, ale díky použití zrcadlového podhledu vzniká překvapivý optický klam inspirovaný vzpomínkou na pravidelné dětské výlety do Prahy a s nimi spojené návštěvy zrcadlového bludiště na Petříně.
Použití zrcadlového podhledu ve vstupní hale násobí pocit prostoru; celkový dojem umocňuje černobílá barevnost.
Článek byl převzat z časopisu ERA21 #02 2018 Politika bydlení
- Ateliér: knesl kynčl architekti
- Autoři: Jiří Knesl, Jakub Kynčl, Martin Trčka
- Země: Česká republika
- Město: Prostějov
- Ulice, číslo: Žeranovská 14
- PSČ: 79601
- Datum projektu: 2016
- Realizace: 2017
- Užitná plocha: 1 566.00m2
- Zastavěná plocha: 696.00m2
- Plocha pozemku: 790.00m2
- Materiál: Fasádní desky - CEMBRIT
- Poznámka: Foto © Radek Brunecký


