Architektura / interiér

Kolem jádra

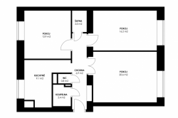
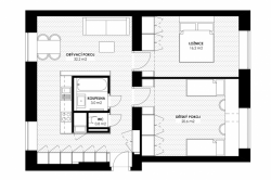
Dvojice architektů stála před zdánlivě nekomplikovaným zadáním – rekonstruovat byt 3+1 v Plzni na Borech pro mladou rodinu s malými dětmi. Cílem bylo hlavně byt prosvětlit a opticky propojit, a to při zachování dostatečného množství úložných prostorů. Když v létě 2015 navrhovali studii interiéru, ještě netušili, že zhruba rok poté bude projekt dokončen a že dopadne přesně tak, jak zamýšleli.

Zábran Nová architekti , 28. 11. 2016

  • Autoři: Tereza Nová, Jiří Zábran
  • Ateliér: Zábran Nová architekti
  • Země: Česká republika
  • Realizace: 2016
  • Město: Plzeň - Bory
  • PSČ: 301 00
  • Datum projektu: 2015
  • Realizace: 2016
  • Užitná plocha: 72.80m2
  • Materiál: překližka
  • Foto ©: Petr Jehlík

Mohlo by vás zajímat

Generální partner
Hlavní partneři