
Architektura
/
rodinné domy
Kulatý pohled na svět
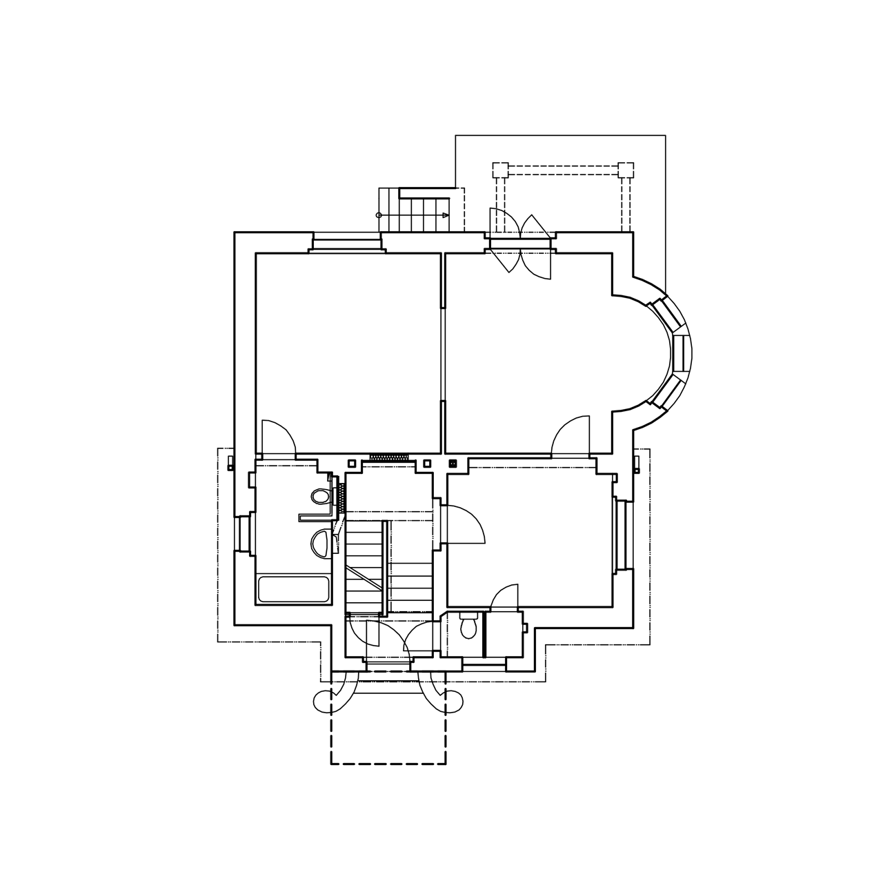
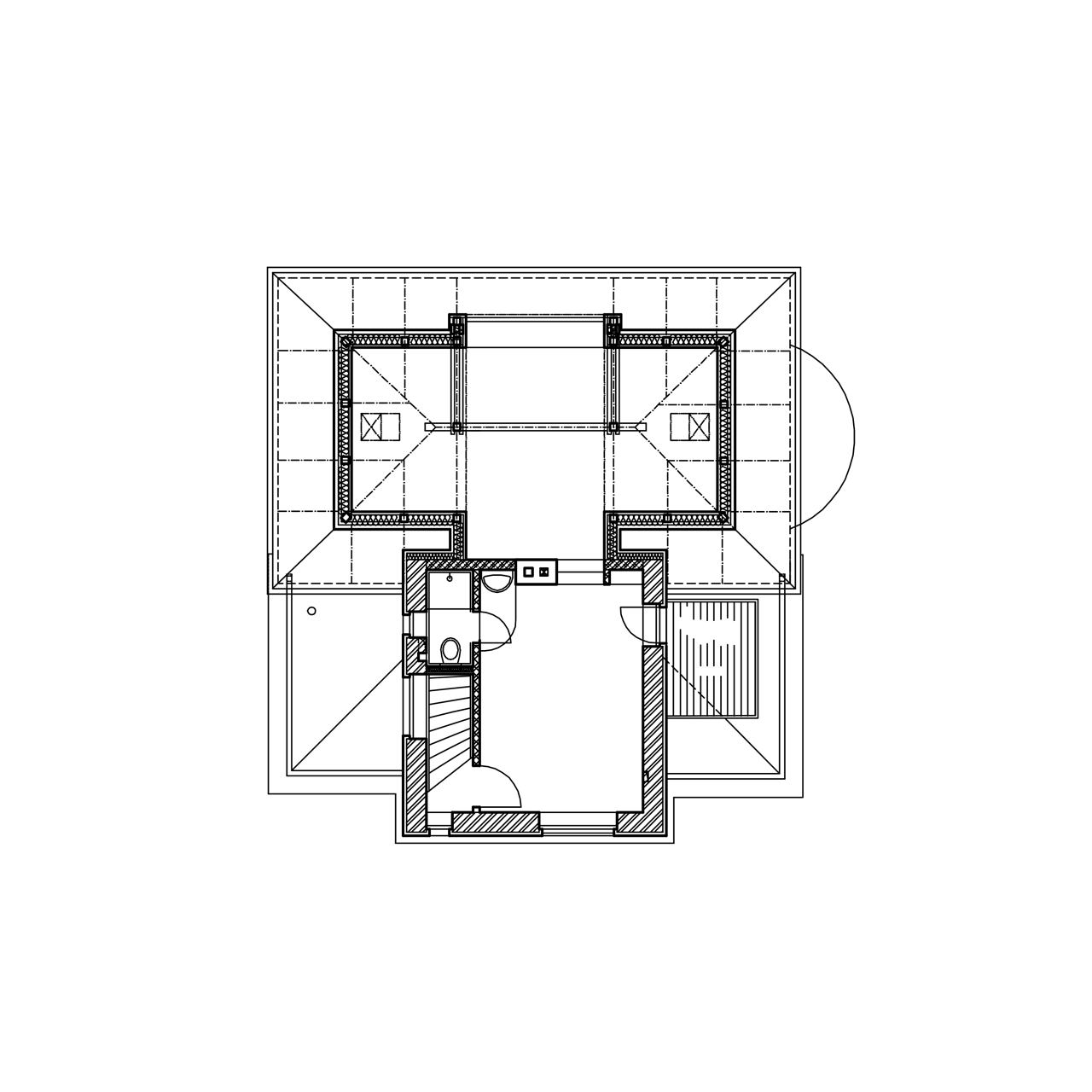
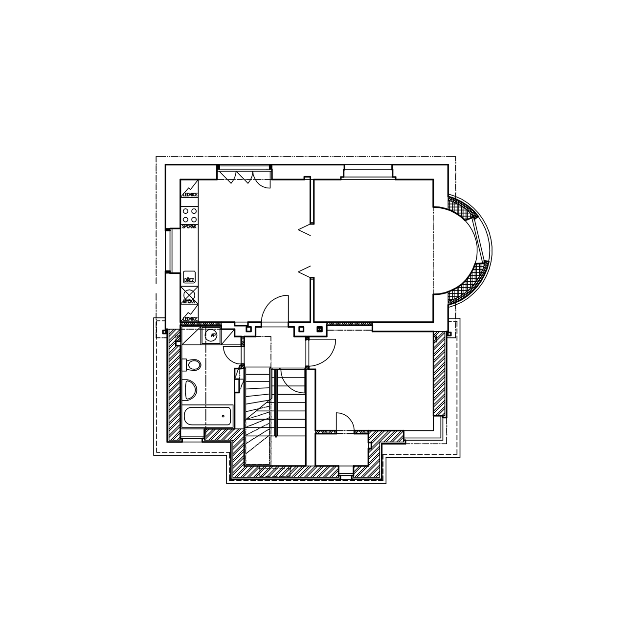
Jak zvětšit kapacitu u rodinného domu ze 30. let? V Říčanech na to šli nástavbou a výsledkem jsou dva byty. Celý objekt také prošel rekonstrukcí se snahou zachovat co nejvíc původních prvků. Ty jsou vhodně doplněny novými částmi, třeba kulatým oknem, odkud se lze dobře rozhlížet.
třiarchitekti , 30. 8. 2016
Více k tématu
- Autoři: David Mareš, Petr Šťovíček
- Ateliér: třiarchitekti
- Země: Česká republika
- Generální dodavatel: Sanace Vape s. r. o.
- Město: Říčany
- Ulice, číslo: Bachmačská 960
- PSČ: 251 00
- Datum projektu: 2010
- Realizace: 2012
- Užitná plocha: 205.00m2
- Zastavěná plocha: 98.00m2
- Plocha pozemku: 1 250.00m2
- Foto ©: Petr Neubert