Malá chatka ze surové oceli se rozhlíží do panenské přírody Olympijského poloostrova
Na odlehlém místě jednoho z mála deštných pralesů mírného pásu stojí malá chatka, kterou pro vášnivého rybáře navrhli architekti ze studia Olson Kundig. Chatka ze surové oceli stojí kvůli místnímu podnebí na vysokých nohách.
EARCH.CZ , 5. 1. 2021
Americká architektonická kancelář Olson Kundig zaměstnávající přes 150 lidí má na kontě od svého založení v roce 2000 desítky a desítky realizací. Mezi bytovými domy, muzei, kancelářskými budovami a dokonce i kostely najdeme v jejich portfoliu hned několik chatek, tzv. cabins, umístěných ve volné krajině.
Více k tématu

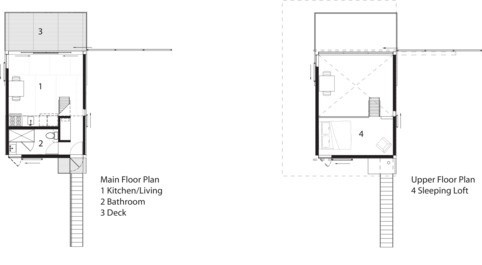
Jednu z těch nejoriginálnějších představuje velmi malá chatka stojící na odlehlém místě u řeky Sol Duc v západoamerickém státě Washingtonu. Oblast Olympijského poloostrova je jedním z malá deštných pralesů mírného pásu. Na specifické místní klima reaguje návrh vyzdvižením chatky na čtyřech subtilních nohách, neboť zde dochází k pravidelným záplavám. Díky vyvýšení stavby mají majitelé zároveň lepší výhled do panenské přírody.

„Nemyslím si, že bych někdy dokázal navrhnout něco tak krásného, jako to, co už tady je. Naším záměrem bylo krajinu „zarámovat“ a zprostředkovat klientům co možná nejlepší zážitek z tohoto místa,“ říká hlavní architekt projektu a zároveň spoluzakladatel studia Tom Kundig k práci s místní krajinou.

Aby nedošlo k přílišnému narušení terénu, rozhodli se architekti využít ocelovou prefabrikovanou konstrukci. Chatka tak byla dopravena na své místo už částečně zařízená. Vzhledem k odlehlosti místa navrhli architekti chatku tak, aby ji bylo možné kompletně a bezpečně uzavřít. K tomu slouží posuvné ocelové panely a okenice. Vzhledem k oceli jakožto hlavnímu materiálu je tak chatka prakticky nezničitelná – podle Kundiga je materiál přímou odpovědí na okolní divočinu.

V interiéru najdeme mnoho dřevěných prvků včetně podlahy a obkladu stěn i stropu. Dřevo totiž celý prostor výrazně zútulňuje. Spací patro pak vzniklo přímo na staveništi technikou two by four z dřevěných sloupků, které měl klient na pozemku chatky.

- Ateliér: Olson Kundig Architects
- Země: Spojené státy americké
- Město: Beaver
- Realizace: 2011
- Užitná plocha: 35.00m2