
Modulární chatky z dřevěných CLT panelů slouží na principu Plug & Play
V zalesněných horách jihozápadní Brazílie najdeme dvě malé dřevěné chaty, které zaujmou svým čistým designem a propracovanými detaily. Za jejich návrhem stojí jihoameričtí architekti, kteří se přes deset let věnují vývoji prefabrikovaných modulárních staveb.
EARCH.CZ , 15. 11. 2022
První prototyp chatek nazvaných MINIMOD vytvořilo architektonické studio MAPA působící primárně v Brazílii a Uruguayi před 12 lety a od té doby neustále pracuje na jejich vývoji a zdokonalování. MAPA pro tento systém využívá moderní průmyslové technologie – chatky totiž vznikají jako prefabrikáty vyráběné v továrnách.
Více k tématu

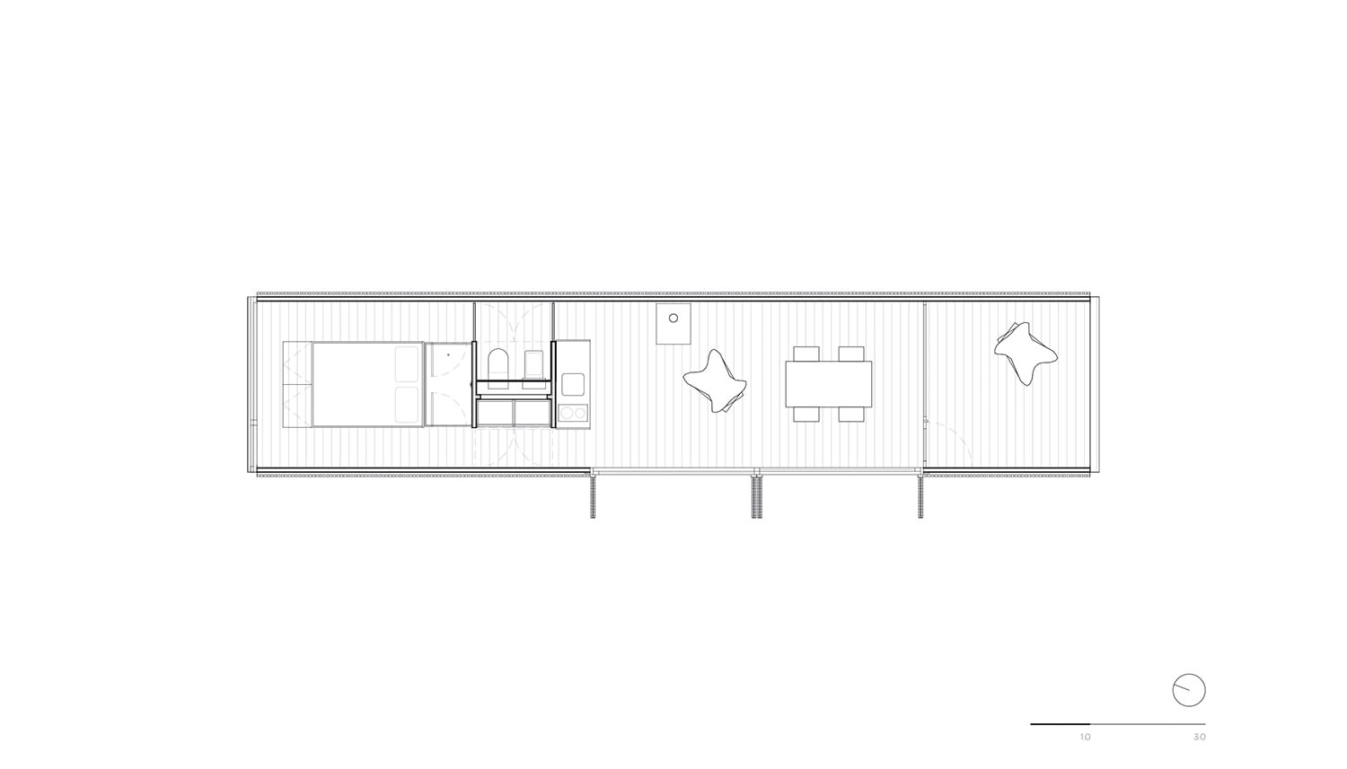
Architekti dosud zrealizovali celou řadu chatek postavených na systému MINIMOD. Základ konstrukce chatky představuje modul výhradně z dřevěných CLT panelů. Ve všech případech architekti využívají především přírodní materiály. Moduly jsou prefabrikované a na pozemek se dají poté snadno přepravit – ve smyslu konceptu PLUG & PLAY.

Tyto moduly pak lze snadno sestavovat do různých prostorových sestav přesně podle potřeb a specifik konkrétního projektu. To dokazují dvě chatky nacházející se v horách brazilské oblasti Catuçaba severně od Sao Paula nedaleko pobřeží s Atlantikem.

Jedna z nich má podélný tvar, nachází se totiž ve svahu a zády se otáčí k příjezdové cestě. Všechny místnosti jsou tak orientované jedním směrem. Druhá stojí na vrcholu kopce, odkud se otevírají výhledy různými směry do okolí. Architekti pro ni tedy zvolili půdorysný tvar kříže, díky čemuž jednotlivé místnosti nabízejí pohledy jak na všechny světové strany a díky tomu si mohou hosté užívat různou atmosféru během celého dne přímo z pohodlí objektu.

Chaty si lze pronajmout přes Airbnb. Každá ubytuje až 4 lidi a jedna noc v chatce vyjde zhruba na 6 300 korun. Elektřinu generují solární panely, kuchyňský sporák je na plyn. Obě chaty přitom nabízejí plochu o 42 metrech čtverečních.


- Ateliér: MAPA Architects
- Země: Brazílie
- Město: Catuçaba
- Realizace: 2015
- Užitná plocha: 42.00m2