Tiny houses jsou trendem posledních let. Jedno z řešení představili i madridští architekti ze studia studio delaVegaCanolasso
Již na začátku pandemické krize COVID-19 představili madridští architekti rychlé řešení pro nerušený home-office i odpočinek. Modulární kabina, která se umí přizpůsobit a jež může sloužit stejně dobře home-officu i rekreaci, si lze objednat online a domů vám přijede již plně vybavená chatka. Stačí si jen vybrat vlastní design a během dvou měsíců bude domek připraven k instalaci na vybraném pozemku. Jedná se tak o řešení, které najde své uplatnění i v dnešních dnech, kdy lidé častěji využívají možnosti práce z domova.
Tereza Staňková , 12. 5. 2023
JAKO NIKE
Španělské architektonické studio delaVegaCanolasso vyvinulo během pandemické krize zbrusu nový design prefabrikovaných kancelářských prostorů nazvaných Tini. Návrh přišel zčistajasna, když ateliér oslovil klient s přáním přesunout pár svých zaměstnanců z domácí kanceláře na dvorek. V návrhu hrál roli zejména čas, jednoduchá montáž a flexibilita.
Více k tématu

„Dnes je vše založené na rychlosti – ovšem kromě architektury, takže mnoho lidí ani nepomyslí na to, že by si mohli postavit vlastní bydlení. Nabízíme možnost přizpůsobení kabiny Tini podle individuálních preferencí, jako by šlo o pár tenisek od Nike a zároveň máte od první minuty přehled o konečné ceně,“ představuje projekt architekt Ignacio De la Vega.

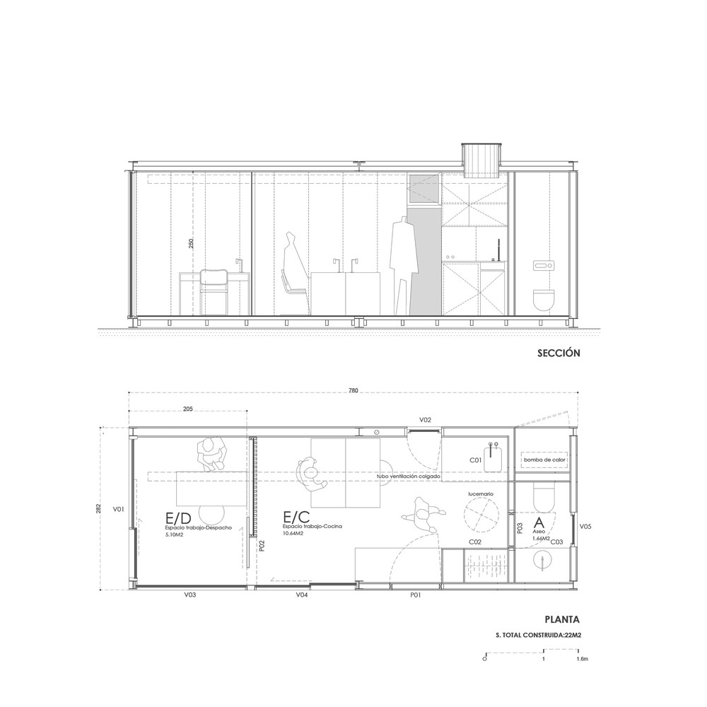
Během šedesáti dní byla plně vybavená kabina o 22 metrech čtverečních dodána na klientovu zahradu. Kvůli vzrostlým dubům a výhledu do krajiny se architekti rozhodli zvětšit prosklené plochy na maximum od podlahy ke stropu. Rám kabiny tvoří prefabrikovaný modul vyrobený z pozinkované oceli a obložený OSB deskami. Izolaci zvolili architekti z recyklovatelné bavlny.

DO 2 měsíců
Při volbě materiálů v interiéru zvítězilo lokální topolové dřevo. Desky kancelářských stolů pak byly vyrobeny na zakázku z borovice ze severního Španělska. Vybavení prostoru doplnily i židle od dr. Cato, španělského návrháře nábytku a přítele studia, které vedou architekti Ignacio de la Vega a Pillar Cano-Lasso. Stěny zdobí abstraktní umělecké dílo složené ze strojové prošitých historických látek, tzv. Delavegacanolasso.

Zakázka drobné zahradní kanceláře architekty inspirovala k návrhům dalších malých kabin. Zatímco jeden modul lze využít pro home-office nebo rekreaci, kombinací více objektů může vzniknout plnohodnotný domek s možností připojení na sítě nebo využitím solárních panelů, vlastním septikem a zásobníkem vody. Domky si lze objednat online, zájemce si může vybrat z různých materiálů a barev a chatku bude mít doma do dvou měsíců.

